Eladó Ház- házrész
Hirdetéskód: 9251625
Fővállalkozó Balla és Balla Kft
Felújításhoz személyi kölcsönt keres? Kalkuláljon itt! →
Ez a hirdetés megfelelhet a FIX 3%-os programnak.
Tudj meg többet a részletekről itt.
188.00 m2
ALAPTERÜLET5
SZOBASZÁMnincs megadva
ÉPÍTÉSElektromos
FŰTÉS- CSOK igénybe vehető nem
- Tetőtér beépíthető nem
- Építés éve 1970
- Fűtés Elektromos
- Klíma nem
- Szigetelt nem
A+++
A++
A+
A
B
C
D
E
F
G
H
I
Az ingatlan leírása
Nagy családnak, összeköltözőknek vagy vállalkozóknak kínálom ezt a kétszintes kertes, jó állapotú házat Kispest központi részén, családi házas környezetben. A 300 nm-es telken a lakóépületen kívül egy kétállásos garázs is található.
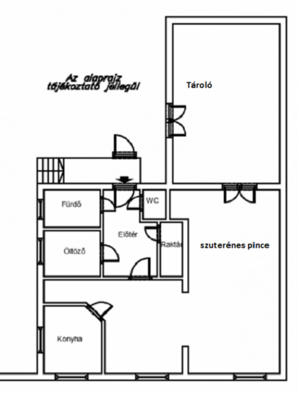
A FÖLDSZINT az udvar szintjén található, ugyanakkor az utca felé csak kis ablakai vannak, teljesen felújítandó, jelenleg raktárnak használt nagy épületrész, ami vállalkozás kialakításra is alkalmas.
AZ EMELET-et a tulajdonos felújította: A 3 szobás, külön bejáratú lakórészben a villanyvezetékeketkicserélték, új fürdőszobát alakítottak ki. A belső falak lebontásával egy tágas amerikai konyhás nappalit valósítottak meg, szép új burkolattal. Emellett két külön bejáratú tágas, világos szoba kényelmes életteret biztosít a családnak. Az otthon melegét klímák a meleg vizet villanybojler biztosítja.
A közlekedés remek: 42-es villamos, 268-as busz, S1 vonat megállói a közelben. A Köki vagy a Határ úti metrómegálló ( M3) 15 perc alatt elérhető.
A környéken a parkolás ingyenes.
Várom megtisztelő hívását, akár hétvégén is.
A FÖLDSZINT az udvar szintjén található, ugyanakkor az utca felé csak kis ablakai vannak, teljesen felújítandó, jelenleg raktárnak használt nagy épületrész, ami vállalkozás kialakításra is alkalmas.
AZ EMELET-et a tulajdonos felújította: A 3 szobás, külön bejáratú lakórészben a villanyvezetékeketkicserélték, új fürdőszobát alakítottak ki. A belső falak lebontásával egy tágas amerikai konyhás nappalit valósítottak meg, szép új burkolattal. Emellett két külön bejáratú tágas, világos szoba kényelmes életteret biztosít a családnak. Az otthon melegét klímák a meleg vizet villanybojler biztosítja.
A közlekedés remek: 42-es villamos, 268-as busz, S1 vonat megállói a közelben. A Köki vagy a Határ úti metrómegálló ( M3) 15 perc alatt elérhető.
A környéken a parkolás ingyenes.
Várom megtisztelő hívását, akár hétvégén is.