Eladó Ház- házrész
Hirdetéskód: 9228641
Fővállalkozó Balla és Balla Kft
Ez a hirdetés megfelelhet a FIX 3%-os programnak.
Tudj meg többet a részletekről itt.
82.00 m2
ALAPTERÜLET3
SZOBASZÁMnincs megadva
ÉPÍTÉSnincs megadva
FŰTÉS- CSOK igénybe vehető nem
- Tetőtér beépíthető nem
- Építés éve 1940
- Klíma nem
- Szigetelt nem
A+++
A++
A+
A
B
C
D
E
F
G
H
I
Az ingatlan leírása
Év végi lehetőség: kiváló adottságú telek Kispest kedvelt részén, még idén, csükkentett áron!
Eladó földszintes családi ház Kispest Óvárosában - csendes mellékutcában, kiváló közlekedéssel
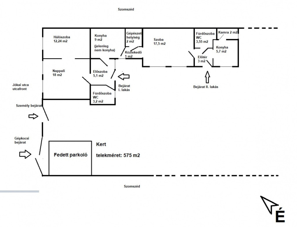
Kispest Óváros kerületrészében, a Jókai utcában kínálunk megvételre egy földszintes, téglafalazatú családi házat, amely élhető, kisvárosi környezetben, forgalommentes mellékutcában helyezkedik el. A környék hangulata barátságos, kertvárosias: rendezett házak, zöld kertek és nyugodt utcák jellemzik, miközben a főváros közelsége minden kényelmet biztosít.
Telek és kert
• Telek mérete: 575 m², 15 m széles utcafronttal
• Beépíthetőség: 30%
• Gépjárművel bejárható a telek végéig
• Fedett gépkocsi-beálló: belső szélessége 330 cm, belső magassága 250 cm
• Különálló tároló: 8 m², elektromos közművel, 250 cm belmagassággal
• Kerti kút: ásott, betongyűrűs, bőséges vízhozammal, ideális öntözéshez tavasszal és nyáron
Ház és lakrészek
Az ingatlan a földhivatali nyilvántartás szerint kétlakásos, külön bejárattal. Jelenleg a lakrészek össze vannak nyitva, de igény szerint visszaállíthatók. A terhelhető, szigetelt födém lehetőséget ad tetőtér-beépítésre.
• Nagyobb lakrész:
◦ 50,5 m², kétszobás
◦ Belmagasság: 315 cm
◦ Szobák az utcafront (nyugati oldal) felé néznek
◦ Szobák egymásba nyílók, de külön bejárat kialakítható
◦ Légkondicionáló: hűtő-fűtő típusú
• Kisebb lakrész:
◦ 31,5 m², egyszobás
◦ Belmagasság: 245 cm
◦ 90-es években épült, betonfödémes
Fűtés és energiaellátás
• Fűtés és melegvíz: napkollektoros rendszer + kondenzációs gázkazán
• Kiegészítő fűtés: fatüzelésű cserépkályha a kétszobás lakrészben
• Gazdaságos üzemeltetés: gázfogyasztás havi átlagban 14.000 Ft alatt tartható
• Elektromos betáplálás: 3×16A nappali, 1×25A vezérelt (éjszakai) áram
• Internet: optikai kábel (Telekom)
Közlekedés és környezet
A ház elhelyezkedése fővárosi viszonylatban kiemelkedően jó közlekedést biztosít:
• Villamos: 42-es
• Busz: 68-as, 268-as
• Metró: M3 (Határ út, KÖKI) 10 percen belül elérhető
• Parkolás: Kispesten közterületen ingyenes
A környék csendes, családbarát, ugyanakkor minden fontos szolgáltatás - bevásárlási lehetőségek, iskola, óvoda, orvosi rendelő - rövid sétával vagy néhány perces utazással elérhető. A kertvárosi nyugalom és a fővárosi infrastruktúra ritka kombinációját kínálja ez az ingatlan.
Ez a ház ideális választás lehet családoknak, akik szeretnének nyugodt környezetben élni, de nem akarnak lemondani a főváros közelségéről és a kiváló közlekedési kapcsolatról. A kétlakásos kialakítás, a tetőtér-beépítés lehetősége és a gazdaságos fűtési rendszer hosszú távon is értékálló befektetést jelent.
A képek között látványtervek is szerepelnek.
Eladó földszintes családi ház Kispest Óvárosában - csendes mellékutcában, kiváló közlekedéssel
Kispest Óváros kerületrészében, a Jókai utcában kínálunk megvételre egy földszintes, téglafalazatú családi házat, amely élhető, kisvárosi környezetben, forgalommentes mellékutcában helyezkedik el. A környék hangulata barátságos, kertvárosias: rendezett házak, zöld kertek és nyugodt utcák jellemzik, miközben a főváros közelsége minden kényelmet biztosít.
Telek és kert
• Telek mérete: 575 m², 15 m széles utcafronttal
• Beépíthetőség: 30%
• Gépjárművel bejárható a telek végéig
• Fedett gépkocsi-beálló: belső szélessége 330 cm, belső magassága 250 cm
• Különálló tároló: 8 m², elektromos közművel, 250 cm belmagassággal
• Kerti kút: ásott, betongyűrűs, bőséges vízhozammal, ideális öntözéshez tavasszal és nyáron
Ház és lakrészek
Az ingatlan a földhivatali nyilvántartás szerint kétlakásos, külön bejárattal. Jelenleg a lakrészek össze vannak nyitva, de igény szerint visszaállíthatók. A terhelhető, szigetelt födém lehetőséget ad tetőtér-beépítésre.
• Nagyobb lakrész:
◦ 50,5 m², kétszobás
◦ Belmagasság: 315 cm
◦ Szobák az utcafront (nyugati oldal) felé néznek
◦ Szobák egymásba nyílók, de külön bejárat kialakítható
◦ Légkondicionáló: hűtő-fűtő típusú
• Kisebb lakrész:
◦ 31,5 m², egyszobás
◦ Belmagasság: 245 cm
◦ 90-es években épült, betonfödémes
Fűtés és energiaellátás
• Fűtés és melegvíz: napkollektoros rendszer + kondenzációs gázkazán
• Kiegészítő fűtés: fatüzelésű cserépkályha a kétszobás lakrészben
• Gazdaságos üzemeltetés: gázfogyasztás havi átlagban 14.000 Ft alatt tartható
• Elektromos betáplálás: 3×16A nappali, 1×25A vezérelt (éjszakai) áram
• Internet: optikai kábel (Telekom)
Közlekedés és környezet
A ház elhelyezkedése fővárosi viszonylatban kiemelkedően jó közlekedést biztosít:
• Villamos: 42-es
• Busz: 68-as, 268-as
• Metró: M3 (Határ út, KÖKI) 10 percen belül elérhető
• Parkolás: Kispesten közterületen ingyenes
A környék csendes, családbarát, ugyanakkor minden fontos szolgáltatás - bevásárlási lehetőségek, iskola, óvoda, orvosi rendelő - rövid sétával vagy néhány perces utazással elérhető. A kertvárosi nyugalom és a fővárosi infrastruktúra ritka kombinációját kínálja ez az ingatlan.
Ez a ház ideális választás lehet családoknak, akik szeretnének nyugodt környezetben élni, de nem akarnak lemondani a főváros közelségéről és a kiváló közlekedési kapcsolatról. A kétlakásos kialakítás, a tetőtér-beépítés lehetősége és a gazdaságos fűtési rendszer hosszú távon is értékálló befektetést jelent.
A képek között látványtervek is szerepelnek.