Eladó Ház- házrész
Hirdetéskód: 9234948

Dunaharaszti, Dózsa György út 45. (OTPIP)

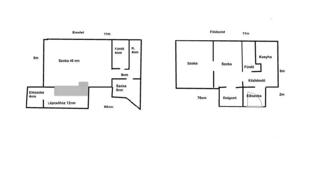
140 m2
ALAPTERÜLET
3
SZOBASZÁM
nincs megadva
ÉPÍTÉS
nincs megadva
FŰTÉS
  • CSOK igénybe vehető nem
  • Tetőtér beépíthető nem
  • Építés éve 1990
  • Klíma nem
  • Szigetelt nem
Energetikai besorolás: Nincs meghatározva
A+++
A++
A+
A
B
C
D
E
F
G
H
I

Az ingatlan leírása

***Kizárólag Nálunk!*** Nagyszerű befektetési lehetőség és Családosok számára kiváló vétel! Két lakás, egy áráért! Budapest, XIX. kerület, Kispest legjobb, kertvárosi részén, a Nádasdy - Fő utcánál kínálunk eladásra egy kétszintes, kétgenerációs, teljeskörűen felújítandó, 140 nm alapterületű, hátsó házrészt, a hozzá tartozó, saját, 250 nm telekrésszel. Megosztási szerződés készült.
Az első szomszéd idősebb, kedves házaspár, igény szerint egyben is eladó!

Térkép

A hirdető elérhetősége

Dunaharaszti, Dózsa György út 45. (OTPIP)

Dsugán Béla
+36 20 461