Eladó Ház- házrész
Hirdetéskód: 9304889
Körültekintő Ingatlan - hirdetünk ön helyett!
Felújításhoz személyi kölcsönt keres? Kalkuláljon itt! →
Ez a hirdetés megfelelhet a FIX 3%-os programnak.
Tudj meg többet a részletekről itt.
60.00 m2
ALAPTERÜLET2
SZOBASZÁMnincs megadva
ÉPÍTÉSGáz (cirkó)
FŰTÉS- Belső szintek 1
- Építés éve 1933
- Fűtés Gáz (cirkó)
A+++
A++
A+
A
B
C
D
E
F
G
H
I
Az ingatlan leírása
Az ingatlan vételárát közvetítői díj nem terheli, tulajdonos: Tokarcsik Károly
Egy lakás vagy egy kertes ház? Most kertes házat vehet egy panel lakás áráért!
Ezzel az ingatlannal foglalkozni kell, akár bővíthető is.
Ez nem házrész, nincs ügyvédi megosztás 1/1-es saját helyrajzi számmal rendelkező ingatlan.
Utcafront: 9,48 méter
Telekhosszúság:37,42 méter
Teleknagyság:359 m2
Áram:32A Nappali 20A éjszakai árammal.
Fűtés: Gáz központi ( MIKA Gázkazán - karbantartva,)
Meleg víz ellátás: Hajdú bojler ( éjszakai árammal).
EPH jegyzőkönyv: 2019-es.
Nyílászárók: Műanyag, alumínium redőnyökkel.
Szigetelés: Az ingatlan frontja illetve födémje szigeteléssel rendelkezik.
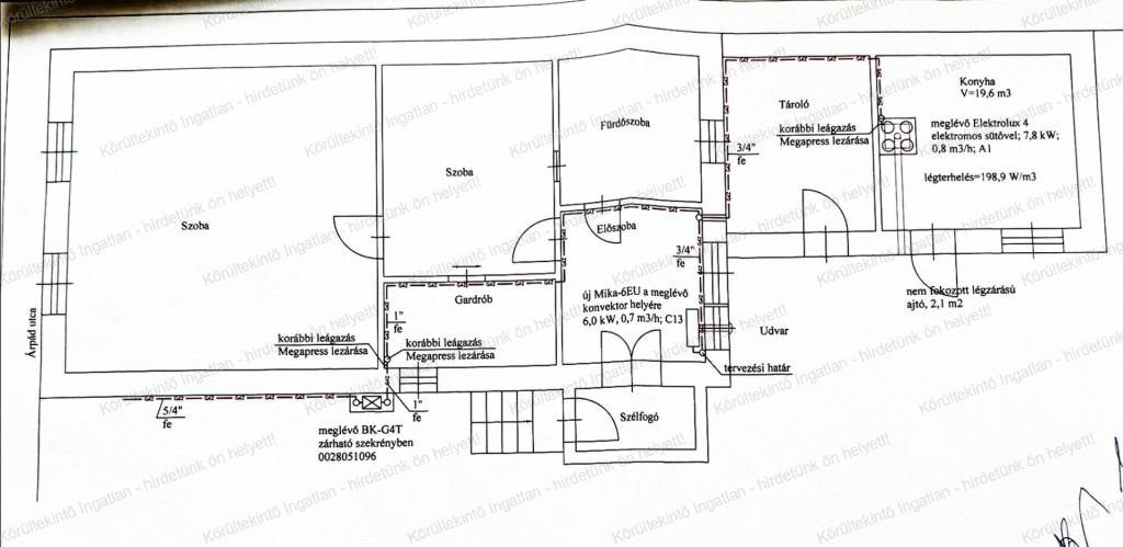
Fő épület 1 + fél szoba kb. 48 nm.
Van egy kis pince is 3,6 nm
Nyári konyha (10 nm) és tároló (9 nm)
Kerti tároló 10 nm a kert végében.
Parkolás: Az ingatlan előtt az utcán, de a beállás is kialakítható.
Lokáció:
Óvoda, iskola a közelben. Tömegközlekedés pár perc sétával elérhető. 68 Busz
Csendes kertvárosi környék.
Egy lakás vagy egy kertes ház? Most kertes házat vehet egy panel lakás áráért!
Ezzel az ingatlannal foglalkozni kell, akár bővíthető is.
Ez nem házrész, nincs ügyvédi megosztás 1/1-es saját helyrajzi számmal rendelkező ingatlan.
Utcafront: 9,48 méter
Telekhosszúság:37,42 méter
Teleknagyság:359 m2
Áram:32A Nappali 20A éjszakai árammal.
Fűtés: Gáz központi ( MIKA Gázkazán - karbantartva,)
Meleg víz ellátás: Hajdú bojler ( éjszakai árammal).
EPH jegyzőkönyv: 2019-es.
Nyílászárók: Műanyag, alumínium redőnyökkel.
Szigetelés: Az ingatlan frontja illetve födémje szigeteléssel rendelkezik.
Fő épület 1 + fél szoba kb. 48 nm.
Van egy kis pince is 3,6 nm
Nyári konyha (10 nm) és tároló (9 nm)
Kerti tároló 10 nm a kert végében.
Parkolás: Az ingatlan előtt az utcán, de a beállás is kialakítható.
Lokáció:
Óvoda, iskola a közelben. Tömegközlekedés pár perc sétával elérhető. 68 Busz
Csendes kertvárosi környék.