Eladó Ház- házrész
Hirdetéskód: 9325188
GDN Ingatlanhálózat - Harmónia
Felújításhoz személyi kölcsönt keres? Kalkuláljon itt! →400.00 m2
ALAPTERÜLET8
SZOBASZÁMnincs megadva
ÉPÍTÉSGáz (cirkó)
FŰTÉS- CSOK igénybe vehető nem
- Tetőtér beépíthető nem
- Fűtés Gáz (cirkó)
- Klíma nem
- Szigetelt nem
A+++
A++
A+
A
B
C
D
E
F
G
H
I
Az ingatlan leírása
RITKASÁG!! KIVÉTELES ADOTTSÁGOKKAL, EGYEDI IGÉNYEKRE SZABHATÓ CSALÁDI VILLA ZUGLÓ EGYIK LEGKERESETTEBB RÉSZÉN!!
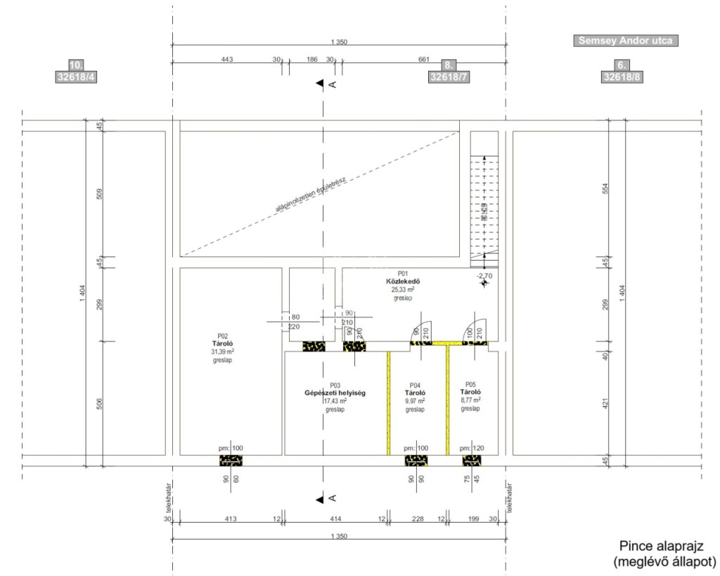
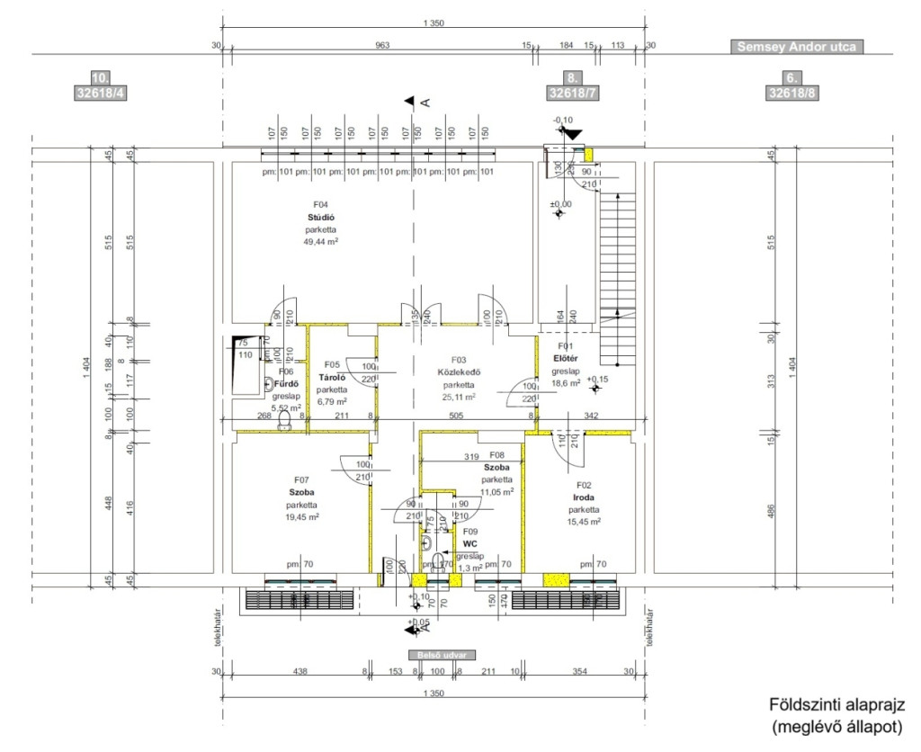
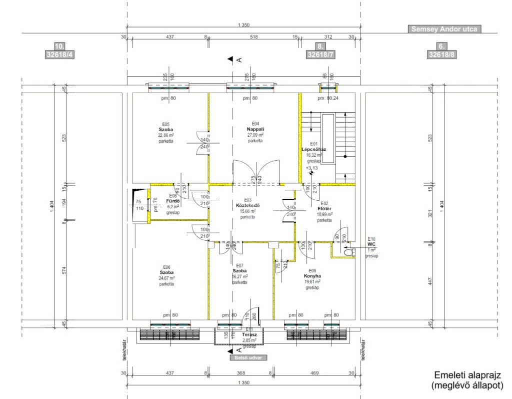
XIV. kerületben, Istvánmező városrészben, kiváló közlekedés és ellátottság mellett, Stefánia útból nyíló csendes, hangulatos mellékutcában, kiváló adottságokkal rendelkező, szintráépítéssel több lakás kialakítására alkalmas, 265 nm-es telekterületű, 1930-as években, Bauhaus stílusban épült, 100 nm-es alapterületű, 390 nm-es lakóterületű, 3 szintes, (pince 90 nm, földszint 150 nm, emelet 150nm) elegáns megjelenésű, statikailag és szerkezetileg egyaránt kiváló állapotú, 9 szobás, dupla fürdőszobás, napos-világos D-K-i fekvésű, korszerű kombinált gázkazán fűtésű, riasztórendszerrel felszerelt, tehermentes azonnal birtokba vehető családi villaépület eladó.
Az épület kiváló szerkezeti adottságának köszönhetően könnyedén alakítható, szintráépítéssel 4 db nagyobb, vagy akár 7 db kisebb lakóegység kialakítható! (teljes tervdokumentáció rendelkezésre áll)
Az ingatlan kiváló elhelyezkedésének köszönhetően, ideális választás lehet továbbá ingatlanfejlesztéssel foglalkozó beruházóknak, irodai tevékenységgel foglalkozó cégeknek, tervező irodáknak, bemutató-műteremnek, magánorvosi rendelőknek, akik egy jól megközelíthető, igényes környezetben keresnek professzionális munkateret.
A környék biztonságos infrastruktúrája és közlekedése kitűnően ellátott.
Az M2-es metró Stadionok megállója, 1-es villamos, és a 7-es busz Thököly úti megállói gyalogosan 5 -7 perc alatt elérhetők!!
További részletes tájékoztatásért várom megtisztelő hívását.
(hétvégén is)
EA ...TOVÁBBI, TÖBBEZRES INGATLAN KÍNÁLAT: - GDN azonosító: 395079
XIV. kerületben, Istvánmező városrészben, kiváló közlekedés és ellátottság mellett, Stefánia útból nyíló csendes, hangulatos mellékutcában, kiváló adottságokkal rendelkező, szintráépítéssel több lakás kialakítására alkalmas, 265 nm-es telekterületű, 1930-as években, Bauhaus stílusban épült, 100 nm-es alapterületű, 390 nm-es lakóterületű, 3 szintes, (pince 90 nm, földszint 150 nm, emelet 150nm) elegáns megjelenésű, statikailag és szerkezetileg egyaránt kiváló állapotú, 9 szobás, dupla fürdőszobás, napos-világos D-K-i fekvésű, korszerű kombinált gázkazán fűtésű, riasztórendszerrel felszerelt, tehermentes azonnal birtokba vehető családi villaépület eladó.
Az épület kiváló szerkezeti adottságának köszönhetően könnyedén alakítható, szintráépítéssel 4 db nagyobb, vagy akár 7 db kisebb lakóegység kialakítható! (teljes tervdokumentáció rendelkezésre áll)
Az ingatlan kiváló elhelyezkedésének köszönhetően, ideális választás lehet továbbá ingatlanfejlesztéssel foglalkozó beruházóknak, irodai tevékenységgel foglalkozó cégeknek, tervező irodáknak, bemutató-műteremnek, magánorvosi rendelőknek, akik egy jól megközelíthető, igényes környezetben keresnek professzionális munkateret.
A környék biztonságos infrastruktúrája és közlekedése kitűnően ellátott.
Az M2-es metró Stadionok megállója, 1-es villamos, és a 7-es busz Thököly úti megállói gyalogosan 5 -7 perc alatt elérhetők!!
További részletes tájékoztatásért várom megtisztelő hívását.
(hétvégén is)
EA ...TOVÁBBI, TÖBBEZRES INGATLAN KÍNÁLAT: - GDN azonosító: 395079