Innováció Ingatlaniroda
626 m2
ALAPTERÜLET11
SZOBASZÁMTégla
ÉPÍTÉSHőszitvattyú
FŰTÉS- Belső szintek 4
- Tetőtér beépíthető igen
- Kilátás Kertre néző
- Tájolás Dél
- Ingatlan komfort Luxus
- Parkolási lehetőség Udvari beálló
- Építés éve 2015
- Fűtés Hőszitvattyú
- Építőanyag Tégla
- Erkély, terasz Terasz 61m2
- Klíma igen
- Szigetelt igen
- Bútorozott nem
- Akadálymentesített nem
Energetikai besorolás: A+++
Az ingatlan leírása
Csak az iroda kínálatában!
A+ ENERGETIKAI BESOROLÁS, ÚJSZERŰ ÁLLAPOT, KORSZERŰ MŰSZAKI TARTALOM, MAXIMÁLIS KÖLTSÉGHATÉKONYSÁG, IGÉNYES ÉS EGYEDI KIALAKÍTÁS, TÖBBFÉLE LEHETŐSÉG!
XIV. kerületben HERMINAMEZŐN, CSENDES, IGÉNYES KERTVÁROSI környezetben ELADÓ egy IMPOZÁNS, 2008 évben épült TERASZOS, 2 bejárattal rendelkező 3 szintes, TEHERMENTES, SZIGETELT CSALÁDI HÁZ!
Az ingatlan KIVÁLÓ alaprajzi ADOTTSÁGA és az ÁTALAKÍTÁSI lehetősége, a 2 bejárat, a további 2 szint önálló lakássá alakíthatósága többféle opciót nyújt, akár NAGYCSALÁDOSOK, SZÉTKÖLTÖZŐK, vagy egyben VÁLLALKOZÁST is üzemeltetők számára.
A családi ház ALSÓ 2 szintje cégközpontként üzemelt, konyhával, fürdőszobával rendelkezik, a FELSŐ szinten egy ÖNÁLLÓ, PENTHOUSE jellegű 5 nm TERASZOS, TÁGAS, 69 nm LAKÁS került kialakításra, amely AMERIKAI KONYHÁS TERASZOS NAPPALI, HÁLÓSZOBA, FÜRDŐSZOBA, GARDRÓB helyiség elosztású, a házat belső lépcsőház köti össze.
A FÖLDSZINT 98 nm, egyterű kialakítással, tárolóval, - igény esetén itt is kialakítható konyha, a kiállások megvannak,- mellékhelyiség, közlekedő, előszoba,
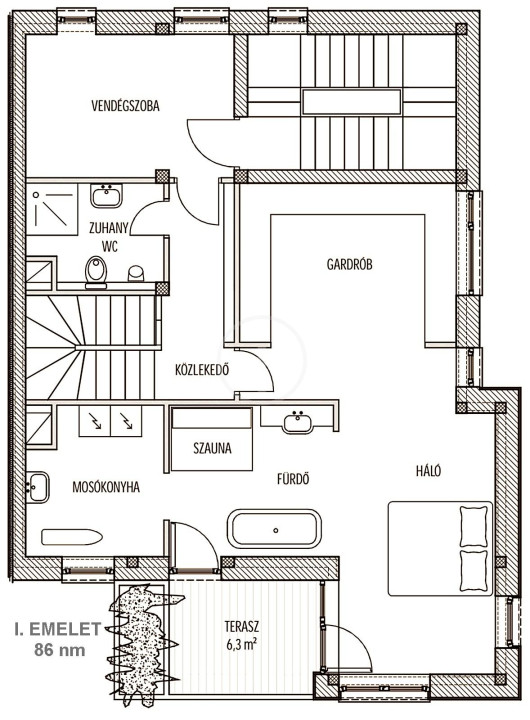
az ELSŐ SZINT 81 nm + 8 nm TERASZ, - a nyitott terek lezárásával azonnal önálló lakássá alakítható, - jelenleg egylégterű, mellékhelyiséges zuhanyzós fürdőszoba, beépített, gépesített étkezős konyha,
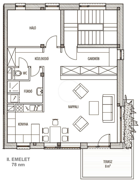
a MÁSODIK SZINT 69 nm + 5 nm TERASZ, összkomfortos 2 szobás penthouse jellegű lakás elosztású,
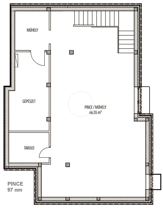
a PINCE 17 nm, itt található a gépészet.
A GEOTERMIKUS HŐSZIVATTYÚ és a FÚRT KÚTRÓL üzemelő komplett RENDSZER teszi lehetővé az épület FŰTÉSÉNEK és HŰTÉSÉNEK GAZDASÁGOS ellátását, amelyet KORSZERŰ PADLÓ és MENNYEZETI keringtető rendszerrel biztosít.
A családi ház FA NYÍLÁSZÁRÓI HANG - és HŐSZIGETELTEK, KÖZPONTI PORSZÍVÓVAL, KAMERA és biztonsági RENDSZERREL, távfelügyeletre bekötött RIASZTÓVAL, TŰZJELZŐ berendezéssel, AUTOMATA, fúrt kútról üzemelő ÖNTÖZŐRENDSZERREL, automata kapuval KIÉPÍTETT, gáz jelenleg nincs bekötve.
Az ingatlan megvásárlása 3 féle opcióval lehetséges: 1. új céggel együtt, 2. cégtől Áfa mentesen, 3. magánszemélytől, nyilvánvalóan személyes találkozás alkalmával kerül egyeztetésre!
Kiváló infrastruktúra és megközelítés! 5, 7, 110, 112 buszok, 3, 69 villamos, 907, 979 éjszakai járatok, a belváros könnyedén elérhető!
Oktatási intézmények, bevásárlási lehetőségek, orvosi ellátás mind a közelben találhatóak!
Bármikor fogadom a hívását, amennyiben nem lennék elérhető visszahívom!
Hivatkozási szám: 2252
 
                                 
                                 
                                 
                             
                             
                                             
                                             
                                             
                                             
                                             
                                             
                                             
                                             
                                             
                                             
                                             
                                             
                                             
                                             
                                             
                                             
                                             
                                             
                                             
                                             
                                             
                                             
                                             
                                             
                                             
                                             
                                             
                                             
                                             
                                             
                                             
                                             
                                             
                                             
                                             
                                             
                                             
                                             
                                             
                                             
                                             
                                             
                                             
                                             
                                             
                                             
                                             
                                             
                                             
                                             
                                             
                                             
                                             
                                             
                                             
                                             
                                             
                                             
                                             
                                             
                                             
                                             
                                             
                                             
                                             
                                             
                                             
                                             
                                             
                                             
                                             
                                             
                                             
                                             
                                             
                                             
                                             
                                             
                                             
                                             
                             
                             
                             
                             
                             
                             
                             
                             
                             
                             
                             
                             
                             
                             
                             
                             
                             
                             
                             
                             
                             
                             
                             
                             
                             
                             
                             
                             
                             
                             
                             
                             
                             
                             
                             
                             
                             
                             
                             
                             
                             
                             
                             
                            