Eladó Ház- házrész
Hirdetéskód: 9240819

Weitzel Group kft

Felújításhoz személyi kölcsönt keres? Kalkuláljon itt! →
700.00 m2
ALAPTERÜLET
11
SZOBASZÁM
Tégla
ÉPÍTÉS
Házközponti fűtés egyedi méréssel
FŰTÉS
  • Belső szintek 4
  • Kilátás Panorámás
  • Tájolás Délkelet
  • Ingatlan komfort Összkomfortos
  • Parkolási lehetőség Terem garázs
  • Fűtés Házközponti fűtés egyedi méréssel
  • Építőanyag Tégla
  • Erkély, terasz Terasz
  • Klíma igen
  • Szigetelt igen
  • Akadálymentesített nem
Energetikai besorolás: Nincs meghatározva
A+++
A++
A+
A
B
C
D
E
F
G
H
I

Az MBH Bank személyi kölcsön ajánlata

Fizetett hirdetés
1 millió Ft
6 évre
20 585 Ft/hó
THM: 14.5%
Részletek →
2 millió Ft
6 évre
41 169 Ft/hó
THM: 14.5%
Részletek →
3 millió Ft
6 évre
61 754 Ft/hó
THM: 14.5%
Részletek →

A tájékoztatás nem teljes körű és nem minősül ajánlattételnek.

Az ingatlan leírása

EXKLUZÍV ÉLETÉRZÉS A BUDAI HEGYEKBEN


A budai hegyek egyik legkedveltebb, csendes zöldövezeti részén, Farkasvölgyben, a XII. kerületben kínálunk megvételre egy kivételes adottságokkal rendelkező, szabadon álló, jó közlekedési kapcsolatokkal rendelkező házat. 


A 700 m² összterületű ingatlan egy 1017 m²-es telken helyezkedik el, délkeleti tájolással, nagy teraszokkal, kertkapcsolattal és lenyűgöző kilátással. Az épület kialakítása ideális nagycsaládi használatra, többgenerációs együttélésre vagy reprezentatív életformához. 


AMI IGAZÁN EGYEDIVÉ TESZI
- privát, intim kertkapcsolat 
- teljes wellness szint a ház alsó szintjén 
- belső medencék, szaunák, pihenőterek – saját otthoni spa élmény 
- világos, nagyvonalú terek, panoráma
- ritka méret és funkcionális tagolás a budai hegyekben 


Lokáció: Budai hegyek – presztízs, természet, kiváló megközelíthetőség 
Per- és tehermentes, gyorsan birtokba vehető 
Ritka lehetőség, hasonló adottságokkal elvétve található a piacon 


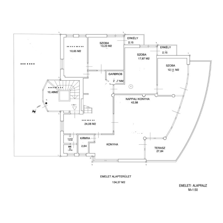
AZ ÉPÜLET FELÉPÍTÉSE
- délkeleti fekvésű, négy szintes ház, nagy teraszokkal és kerttel 
- legfelső szinten egy belső kétszintes, 190 m²-es lakás 
- alatta egy 135 m²-es, különálló lakás 
- alsó szinten egy 150 m²-es wellness részleg
- ellenáramoltatóval ellátott üvegmozaik medence 
- gyermek- és jacuzzi medence 
- kertkapcsolatos, galériázott pihenőtér 
- finn és infra szauna 


FŐBB PARAMÉTEREK
- 11 szoba 
- 4 fürdőszoba 
- 2 külön WC 
- 2 garázs + telken belüli 2 gépkocsi számára parkolás
- saját wellness (medence, jacuzzi, szaunák)
- gardróbok, kamrák, öltöző, mosókonyha, gépészeti helyiségek 


MŰSZAKI ÁLLAPOT ÉS LEHETŐSÉGEK 
- többféle fűtési rendszer (padlófűtés, radiátor, hőszivattyú, BOSCH kazánok) 
- wellness rész külön gépészettel 
- 1997-ben épült, 38 cm Porotherm tégla, grafitos szigeteléssel 
2024-ben: 
elektromos hálózat teljes felmérése és korszerűsítése 
minden helyiségben új hűtő-fűtő klíma 
külső burkolat és szigetelés cseréje 
2025-ben új mérőórák, H tarifás órák 
Lakrészek külön mérőórákkal 
Teljes műszaki dokumentáció rendelkezésre áll 


Igény szerint átalakítható, akár társasházzá is, lift kialakítása lehetséges 
 
KERT ÉS KÖRNYEZET
A lépcsőzetesen kialakított kertet eredetileg kerttervező tervezte, 30 éve ültetett fák és cserjék biztosítják a zöld környezetet és a természetes árnyékolást. 


ELHELYEZKEDÉS
Széchenyi-hegy alatt, a Mindszenty József bíboros tér közelében

Térkép

Ingatlan adásvétel ügyvédi díja
600 000 Ft
a hirdetésben szereplő ár alapján
  • A vételár 0,45%-a
  • Szerződéscsomag teljeskörű képviselettel
  • Ingyenes tulajdoni lap ellenőrzés
  • Az ÁFA-t már tartalmazza
Érdekel az ajánlat →
A tájékoztatás nem teljes körű és nem minősül ajánlattételnek. Minimum díj: 150 000 Ft, maximum díj: 600 000 Ft. A díj kizárólag lakóingatlan adásvételére vonatkozik.

A hirdető elérhetősége

Weitzel Group kft

Weitzel Róbert
+36 70 775