Eladó Ház- házrész
Hirdetéskód: 9195476
Fővállalkozó Balla és Balla Kft
Felújításhoz személyi kölcsönt keres? Kalkuláljon itt! →
Ez a hirdetés megfelelhet a FIX 3%-os programnak.
Tudj meg többet a részletekről itt.
105.00 m2
ALAPTERÜLET3
SZOBASZÁMnincs megadva
ÉPÍTÉSElektromos
FŰTÉS- CSOK igénybe vehető nem
- Tetőtér beépíthető nem
- Építés éve 1980
- Fűtés Elektromos
- Klíma nem
- Szigetelt nem
A+++
A++
A+
A
B
C
D
E
F
G
H
I
Az ingatlan leírása
Körpanorámás, két szintes lakóház Kamaraerdő szívében, ahol a csend és a természet valódi otthont teremt
Budapest XI. kerületének egyik legcsendesebb, átmenő forgalomtól mentes utcájában, Kamaraerdő üdülőövezetében kínálunk megvételre egy különleges hangulatú, két szintes, erkélyes lakóházat. A 1356 m²-es, déli fekvésű, parkosított kerttel rendelkező ingatlan valódi menedék a természet szerelmeseinek: gyümölcsfák, örökzöldek, virágok és barátságos szomszédok teszik teljessé az idilli környezetet.
Az ingatlan zártkerti besorolású, de lakóházként funkcionál, és minden komfortot biztosít, amit egy modern otthontól elvárhatunk.
Az ingatlanra vonatkozóan van ügyvédi, használati megosztási szerződés.
Napfényes terek, körpanorámás felső szint
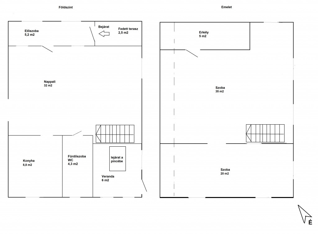
Az épület az 1980-as években épült szendvicsbeton technológiával, amely ma is korszerűnek számít. Az 1990-es években bővítették, majd 2020 és 2025 között teljes körű felújításon esett át. A 105 m²-es lakóterület két szinten oszlik meg:
• A földszinten egy 2,2 m²-es teraszon keresztül jutunk be az előszobába, ahonnan egy közel 32 m²-es nappali-étkezőbe érkezünk. Itt található a konyha és a fürdőszoba is.
• Az emeletre a nappali sarkából induló lépcső vezet. Itt egy tágas, 30 m²-es szoba és egy 20 m²-es hálószoba található. A nagyobbik szoba a ház legvilágosabb pontja, egész nap besüt a nap, és innen nyílik az 5 m²-es erkély is, ahonnan körpanoráma tárul elénk. A szoba mérete és geometriája lehetővé teszi két kisebb hálószoba kialakítását is.
A ház alatt egy 6 m²-es pince is található, amely tárolásra vagy akár borospinceként is hasznosítható.
Korszerű gépészet, alacsony fenntartási költségek
A ház 25 cm vastag szigeteléssel rendelkezik, így energetikailag rendkívül hatékony. A fűtést és hűtést jelenleg két inverteres klíma biztosítja, de a radiátorokkal kiépített központi fűtés is elő van készítve. Bár gáz közmű nincs a telken, gáztartállyal vagy palackkal is üzemeltethető a rendszer. A nappaliban egy kiváló állapotú, használaton kívüli kémény is rendelkezésre áll, így kandalló beépítése is lehetséges.
Az elektromos betáplálás 1×25A, amely minden háztartási funkcióhoz elegendő kapacitást biztosít, a villamos biztonságilag felülvizsgált, kitűnő állapotban lévő elektromos hálózat biztonságot ad az ingatlant használóknak.
A szennyvízelvezetés modernizált, a vízellátást egy 50 méter mély, iható, tiszta vizű fúrt kút biztosítja. A teljes víz- és csatornarendszer önellátásra és fenntarthatóságra lett kialakítva.
Rezsiköltség: Az elektromos áram havi átlagban 19.000 Ft, amely minden funkciót (fűtés, hűtés, főzés, világítás) kiszolgál. Internet: T-Home. Egyéb rezsiköltség a szemétszállítás 2100 Ft/hó költsége, ezeken kívül más nincs.
Melléképületek és kert
• 25 m²-es garázs elektromos árammal, akár két autó számára is elegendő
• 28 m²-es melléképület víz-, csatorna- és áramcsatlakozással, zuhanyzós fürdőszobával és WC-vel, vendégháznak, műhelynek is ideális
• 2 db zárható tároló a kertben
A kert mérete és kialakítása lehetőséget ad saját termesztésre, pihenésre, vagy akár kisállattartásra is.
Természetközeli, mégis jól kapcsolódó
Az ingatlan elhelyezkedése ideális: 5 perc sétára az erdő, ahol túraösvények, madárdal és friss levegő vár. Kelenföld autóval 6–7 perc, busszal 10–13 perc alatt elérhető. A balatoni és régi 7-es út 3 perc autóval, gyalogosan 7–8 perc kényelmes séta. Tömegközlekedés: BKV (101E, 101B, 150, 150B, 141, 58, 158, 941 éjszakai), Volánbusz (722, 727, 710), a megálló kb. 600 méterre található.
Ez az ingatlan azoknak szól, akik nem csupán házat keresnek, hanem életminőséget. Egy helyet, ahol a természet közelsége, a csend és a tágas tér valódi értéket képvisel. A ház kizárólag készpénzes vevők számára elérhető, ha Ön az új tulajdonos, örömmel mutatjuk meg, milyen érzés lehet itt élni.
A képek között látványtervek is láthatók!
Budapest XI. kerületének egyik legcsendesebb, átmenő forgalomtól mentes utcájában, Kamaraerdő üdülőövezetében kínálunk megvételre egy különleges hangulatú, két szintes, erkélyes lakóházat. A 1356 m²-es, déli fekvésű, parkosított kerttel rendelkező ingatlan valódi menedék a természet szerelmeseinek: gyümölcsfák, örökzöldek, virágok és barátságos szomszédok teszik teljessé az idilli környezetet.
Az ingatlan zártkerti besorolású, de lakóházként funkcionál, és minden komfortot biztosít, amit egy modern otthontól elvárhatunk.
Az ingatlanra vonatkozóan van ügyvédi, használati megosztási szerződés.
Napfényes terek, körpanorámás felső szint
Az épület az 1980-as években épült szendvicsbeton technológiával, amely ma is korszerűnek számít. Az 1990-es években bővítették, majd 2020 és 2025 között teljes körű felújításon esett át. A 105 m²-es lakóterület két szinten oszlik meg:
• A földszinten egy 2,2 m²-es teraszon keresztül jutunk be az előszobába, ahonnan egy közel 32 m²-es nappali-étkezőbe érkezünk. Itt található a konyha és a fürdőszoba is.
• Az emeletre a nappali sarkából induló lépcső vezet. Itt egy tágas, 30 m²-es szoba és egy 20 m²-es hálószoba található. A nagyobbik szoba a ház legvilágosabb pontja, egész nap besüt a nap, és innen nyílik az 5 m²-es erkély is, ahonnan körpanoráma tárul elénk. A szoba mérete és geometriája lehetővé teszi két kisebb hálószoba kialakítását is.
A ház alatt egy 6 m²-es pince is található, amely tárolásra vagy akár borospinceként is hasznosítható.
Korszerű gépészet, alacsony fenntartási költségek
A ház 25 cm vastag szigeteléssel rendelkezik, így energetikailag rendkívül hatékony. A fűtést és hűtést jelenleg két inverteres klíma biztosítja, de a radiátorokkal kiépített központi fűtés is elő van készítve. Bár gáz közmű nincs a telken, gáztartállyal vagy palackkal is üzemeltethető a rendszer. A nappaliban egy kiváló állapotú, használaton kívüli kémény is rendelkezésre áll, így kandalló beépítése is lehetséges.
Az elektromos betáplálás 1×25A, amely minden háztartási funkcióhoz elegendő kapacitást biztosít, a villamos biztonságilag felülvizsgált, kitűnő állapotban lévő elektromos hálózat biztonságot ad az ingatlant használóknak.
A szennyvízelvezetés modernizált, a vízellátást egy 50 méter mély, iható, tiszta vizű fúrt kút biztosítja. A teljes víz- és csatornarendszer önellátásra és fenntarthatóságra lett kialakítva.
Rezsiköltség: Az elektromos áram havi átlagban 19.000 Ft, amely minden funkciót (fűtés, hűtés, főzés, világítás) kiszolgál. Internet: T-Home. Egyéb rezsiköltség a szemétszállítás 2100 Ft/hó költsége, ezeken kívül más nincs.
Melléképületek és kert
• 25 m²-es garázs elektromos árammal, akár két autó számára is elegendő
• 28 m²-es melléképület víz-, csatorna- és áramcsatlakozással, zuhanyzós fürdőszobával és WC-vel, vendégháznak, műhelynek is ideális
• 2 db zárható tároló a kertben
A kert mérete és kialakítása lehetőséget ad saját termesztésre, pihenésre, vagy akár kisállattartásra is.
Természetközeli, mégis jól kapcsolódó
Az ingatlan elhelyezkedése ideális: 5 perc sétára az erdő, ahol túraösvények, madárdal és friss levegő vár. Kelenföld autóval 6–7 perc, busszal 10–13 perc alatt elérhető. A balatoni és régi 7-es út 3 perc autóval, gyalogosan 7–8 perc kényelmes séta. Tömegközlekedés: BKV (101E, 101B, 150, 150B, 141, 58, 158, 941 éjszakai), Volánbusz (722, 727, 710), a megálló kb. 600 méterre található.
Ez az ingatlan azoknak szól, akik nem csupán házat keresnek, hanem életminőséget. Egy helyet, ahol a természet közelsége, a csend és a tágas tér valódi értéket képvisel. A ház kizárólag készpénzes vevők számára elérhető, ha Ön az új tulajdonos, örömmel mutatjuk meg, milyen érzés lehet itt élni.
A képek között látványtervek is láthatók!