Eladó Ház- házrész
Hirdetéskód: 9312699
GDN Ingatlanhálózat - Best Sellers
Felújításhoz személyi kölcsönt keres? Kalkuláljon itt! →
Ez a hirdetés megfelelhet a FIX 3%-os programnak.
Tudj meg többet a részletekről itt.
122.00 m2
ALAPTERÜLET4
SZOBASZÁMnincs megadva
ÉPÍTÉSnincs megadva
FŰTÉS- CSOK igénybe vehető nem
- Tetőtér beépíthető nem
- Klíma nem
- Szigetelt nem
A+++
A++
A+
A
B
C
D
E
F
G
H
I
Az ingatlan leírása
Új építésű, prémium kivitelezésű kétszintes ikerház Budapest X. kerületében – modern műszaki tartalommal és teljes átláthatósággal
Csendes, nyugodt mellékutcában, kiváló közlekedési és infrastrukturális adottságok mellett épül ez a kétszintes, ikerházi lakás, amely a modern építészeti megoldásokat ötvözi a magas szintű műszaki tartalommal és a kényelmi extrákkal.
Az ingatlan különlegessége a dupla falazat légréssel, amely kiváló hang- és hőszigetelést biztosít, így garantálva a nyugodt, zavartalan otthoni környezetet.
Főbb adatok
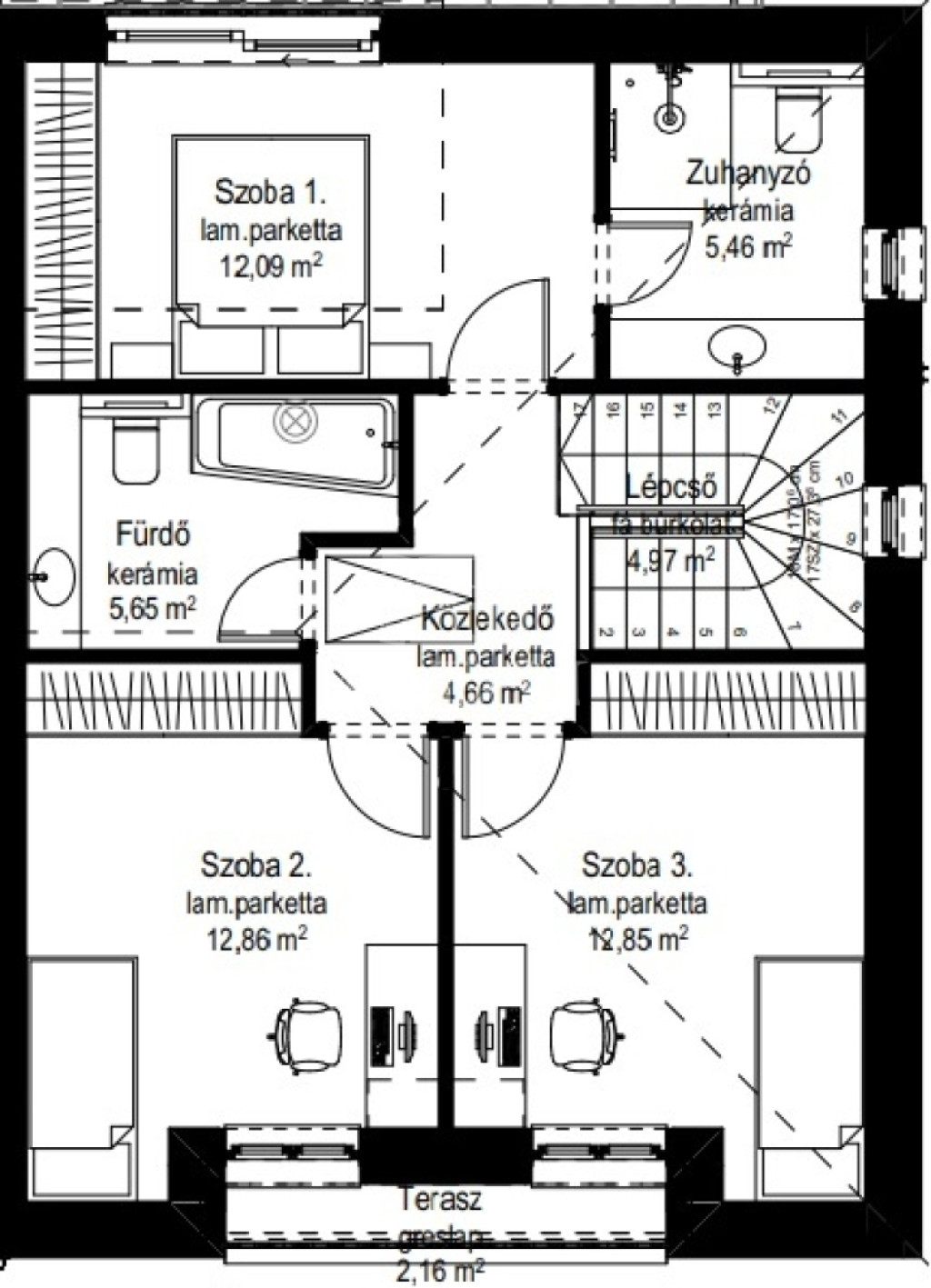
Hasznos alapterület: 122 m²
Telekméret: 231 m² saját kerttel
Szintek: földszint + emelet
Hálószobák: 3 külön nyíló szoba
Fürdőszobák: összesen 3 (2 az emeleten, 1 a földszinten)
Nappali: 33 m²-es amerikai konyhás tér, közvetlen teraszkapcsolattal
Parkolás: fedett, nagy méretű autó számára is alkalmas garázs
Műszaki tartalom
POROTHERM 30 N+F téglafalak, monolit vasbeton födém
15 cm homlokzati EPS hőszigetelés + 20 cm födémszigetelés
Hőszivattyús rendszerrel működő korszerű gépészet
Nappaliban fan-coil rendszer, az emeleten mennyezeti hűtés-fűtés
Padlófűtés minden helyiségben
3 rétegű, hőszigetelt nyílászárók, biztonsági bejárati ajtó
Laminált parketta és minőségi kerámia burkolatok
Terrán Zenit Max Carbon tetőcserép
Kényelmi és extra megoldások
Teljes körű okosotthon rendszer
Motoros alumínium redőnyök
Kamera- és riasztórendszer előkészítés
Videó kaputelefon
Elektromos kapu és autótöltési lehetőség
Automata öntözőrendszer
Igényes WPC kerítés, rejtett kültéri világítás
Légtechnikai rendszer kiépítve (garázs és előszoba)
Garázs és kiegészítő műszaki részletek
Temperált fűtéssel ellátott garázs
Belső oldalon 5 cm-es hőszigetelés
Praktikus kialakítás, nagyobb járművek számára is ideális
Digitális projektkövetés – teljes átláthatóság
A kivitelezés folyamata végig nyomon követhető:
Élő projektkövetés mobilon keresztül
Kéthetente részletes fotódokumentáció
Átadáskor teljes digitális dokumentáció (tervek, garanciák, jegyzőkönyvek)
Finanszírozás
Hitel igényelhető
Díjmentes hitelügyintézés
Elérhető állami támogatások
Várható átadás: 2026. III. negyedév
Ez az ingatlan ideális választás azok számára, akik modern technológiával felszerelt, energiatakarékos és prémium minőségű otthont keresnek csendes, mégis jól megközelíthető környezetben.
Ne maradjon le róla – kérjen további információt még ma!
ID: 394053 ...TOVÁBBI, TÖBBEZRES INGATLAN KÍNÁLAT: - GDN azonosító: 394053
Csendes, nyugodt mellékutcában, kiváló közlekedési és infrastrukturális adottságok mellett épül ez a kétszintes, ikerházi lakás, amely a modern építészeti megoldásokat ötvözi a magas szintű műszaki tartalommal és a kényelmi extrákkal.
Az ingatlan különlegessége a dupla falazat légréssel, amely kiváló hang- és hőszigetelést biztosít, így garantálva a nyugodt, zavartalan otthoni környezetet.
Főbb adatok
Hasznos alapterület: 122 m²
Telekméret: 231 m² saját kerttel
Szintek: földszint + emelet
Hálószobák: 3 külön nyíló szoba
Fürdőszobák: összesen 3 (2 az emeleten, 1 a földszinten)
Nappali: 33 m²-es amerikai konyhás tér, közvetlen teraszkapcsolattal
Parkolás: fedett, nagy méretű autó számára is alkalmas garázs
Műszaki tartalom
POROTHERM 30 N+F téglafalak, monolit vasbeton födém
15 cm homlokzati EPS hőszigetelés + 20 cm födémszigetelés
Hőszivattyús rendszerrel működő korszerű gépészet
Nappaliban fan-coil rendszer, az emeleten mennyezeti hűtés-fűtés
Padlófűtés minden helyiségben
3 rétegű, hőszigetelt nyílászárók, biztonsági bejárati ajtó
Laminált parketta és minőségi kerámia burkolatok
Terrán Zenit Max Carbon tetőcserép
Kényelmi és extra megoldások
Teljes körű okosotthon rendszer
Motoros alumínium redőnyök
Kamera- és riasztórendszer előkészítés
Videó kaputelefon
Elektromos kapu és autótöltési lehetőség
Automata öntözőrendszer
Igényes WPC kerítés, rejtett kültéri világítás
Légtechnikai rendszer kiépítve (garázs és előszoba)
Garázs és kiegészítő műszaki részletek
Temperált fűtéssel ellátott garázs
Belső oldalon 5 cm-es hőszigetelés
Praktikus kialakítás, nagyobb járművek számára is ideális
Digitális projektkövetés – teljes átláthatóság
A kivitelezés folyamata végig nyomon követhető:
Élő projektkövetés mobilon keresztül
Kéthetente részletes fotódokumentáció
Átadáskor teljes digitális dokumentáció (tervek, garanciák, jegyzőkönyvek)
Finanszírozás
Hitel igényelhető
Díjmentes hitelügyintézés
Elérhető állami támogatások
Várható átadás: 2026. III. negyedév
Ez az ingatlan ideális választás azok számára, akik modern technológiával felszerelt, energiatakarékos és prémium minőségű otthont keresnek csendes, mégis jól megközelíthető környezetben.
Ne maradjon le róla – kérjen további információt még ma!
ID: 394053 ...TOVÁBBI, TÖBBEZRES INGATLAN KÍNÁLAT: - GDN azonosító: 394053