Eladó Ház- házrész
Hirdetéskód: 9308779

OTP Ingatlanpont - Takács Zsuzsanna

Felújításhoz személyi kölcsönt keres? Kalkuláljon itt! →
167.00 m2
ALAPTERÜLET
3
SZOBASZÁM
nincs megadva
ÉPÍTÉS
Egyéb fűtés
FŰTÉS
  • CSOK igénybe vehető nem
  • Tetőtér beépíthető nem
  • Építés éve 2026
  • Fűtés Egyéb fűtés
  • Klíma nem
  • Szigetelt nem
Energetikai besorolás: Nincs meghatározva
A+++
A++
A+
A
B
C
D
E
F
G
H
I

Az MBH Bank személyi kölcsön ajánlata

Fizetett hirdetés
1 millió Ft
6 évre
20 585 Ft/hó
THM: 14.5%
Részletek →
2 millió Ft
6 évre
41 169 Ft/hó
THM: 14.5%
Részletek →
3 millió Ft
6 évre
61 754 Ft/hó
THM: 14.5%
Részletek →

A tájékoztatás nem teljes körű és nem minősül ajánlattételnek.

Az ingatlan leírása

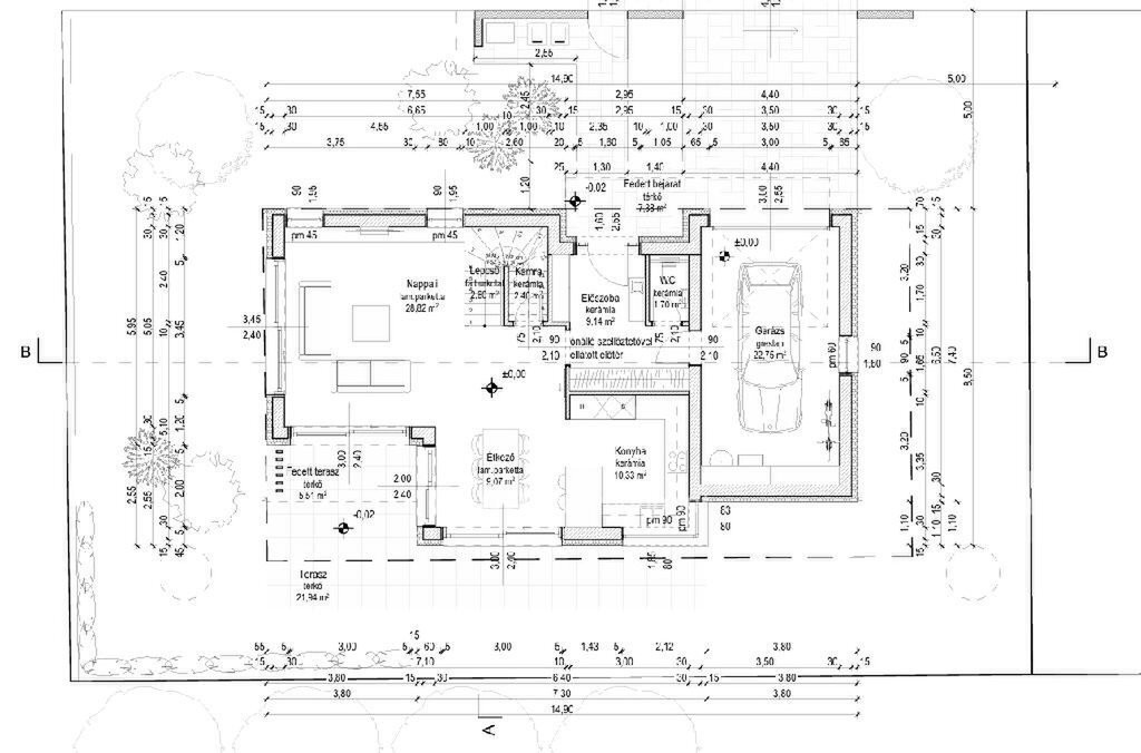
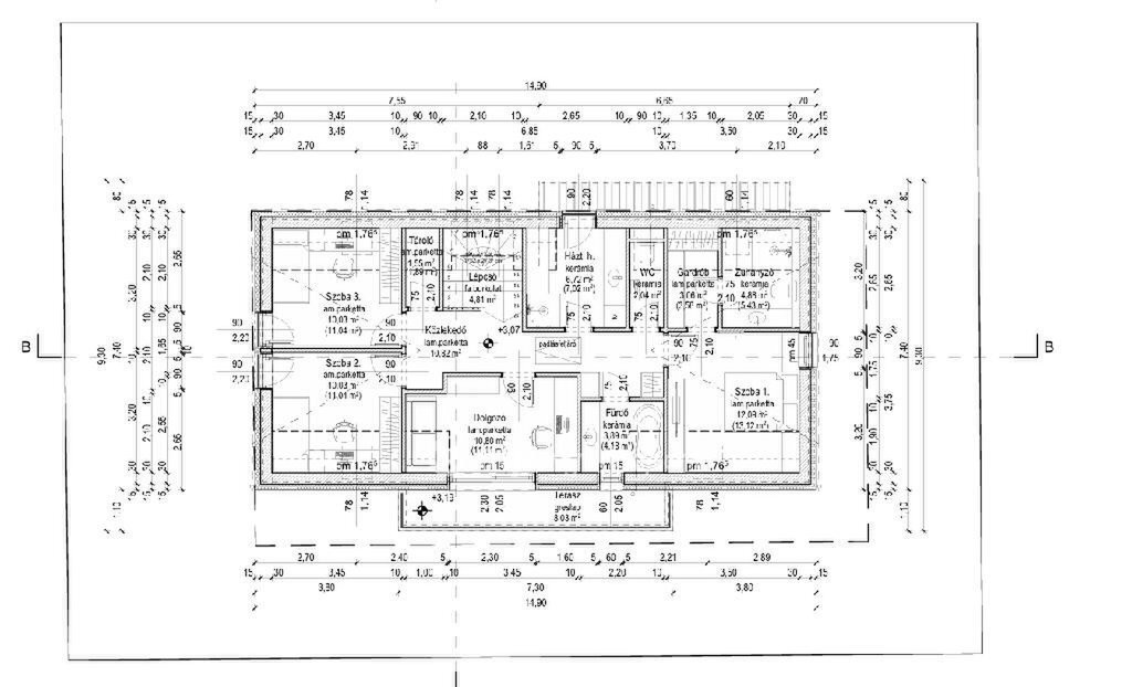
Eladó Kőbányán a 10. kerületben, új építésű , 167 nm alapterületű családi ház. A házhoz garázs is készül, kertkapcsolattal és terasszal. A ház teljes mértékben családbarát kialakítású, ahogy az alaprajzokból is kitűnik. Az alsó szinten amerikai konyhás, tágas terű nappalival és étkezővel a család komfort érzetének megfelelően. A felső szinten 2 gyerekszoba és külön hálószoba a családi nyugalom érdekében. Az ingatlan az egyik legmodernebb hőszivattyús rendszerrel épül a gazdaságos energia ellátás céljából. A házban a beépített bútor külön megbeszélés kérdése. A nappaliban lesz fan-coil és az emeleten mennyezet hűtés-fűtés kerül kialakításra. Padlófűtés az egész házban lesz mindenhol. A garázs temperált fűtést kap, de a belső falon lesz 5 cm szigetelés. Szellőztető rendszer csak a garázs és az előszobában kerül kiépítésre, nem kap az ingatlan külön légtechnikát. A kivitelező 2026. év végére tervezi befejezni az egész ingatlan átadását. A családi ház a valóságban úgy fog kinézni, mint a látványterveken. A részletes műszaki és egyéb feltételeket a kivitelező a helyszíni megtekintés során részletesen elmondja. Jöjjön el és szeressen bele ebbe a családbarát ingatlanba!
M325481
Az OTP Ingatlanpont, mint egyetlen közvetlen banki hátterű ingatlanközvetítő társaság teljes körű ügyintézéssel áll az eladók és a vevők rendelkezésére! A kínálatunkból választott ingatlan finanszírozásához minősített fogyasztóbarát, piaci és kedvezményes hitel- és lízingkonstrukciókat kínálunk (lakásvásárlási hitel, CSOK plusz, szabad felhasználású hitel, babaváró hitel, céges hitelek, pályázatok, amennyiben az ügyfél és az ingatlan megfelel a feltételeknek). Az adásvételi szerződés megkötéséhez igény szerint megbízható ügyvédi közreműködést biztosítunk, és segítséget nyújtunk az adásvételhez kapcsolódó egyéb ügyek intézéséhez.
Ha az új ingatlana megvásárlásához a jelenlegi ingatlanát el kell adnia, abban is szívesen segítünk.

Térkép

Ingatlan adásvétel ügyvédi díja
600 000 Ft
a hirdetésben szereplő ár alapján
  • A vételár 0,45%-a
  • Szerződéscsomag teljeskörű képviselettel
  • Ingyenes tulajdoni lap ellenőrzés
  • Az ÁFA-t már tartalmazza
Érdekel az ajánlat →
A tájékoztatás nem teljes körű és nem minősül ajánlattételnek. Minimum díj: 150 000 Ft, maximum díj: 600 000 Ft. A díj kizárólag lakóingatlan adásvételére vonatkozik.

A hirdető elérhetősége

OTP Ingatlanpont - Takács Zsuzsanna

Takács Zsuzsanna
+36 30 495