Eladó Ház- házrész
Hirdetéskód: 9221503
GDN Ingatlanhálózat - Best Sellers
122 m2
ALAPTERÜLET4
SZOBASZÁMnincs megadva
ÉPÍTÉSnincs megadva
FŰTÉS- CSOK igénybe vehető nem
- Tetőtér beépíthető nem
- Klíma nem
- Szigetelt nem
A+++
A++
A+
A
B
C
D
E
F
G
H
I
Az ingatlan leírása
Új építésű, kétszintes ikerház prémium felszereltséggel és bútorzattal
Csendes környezet – Magas minőségű kivitelezés – Teljes digitális átláthatóság!
Budapest X. kerületének egyik legnyugodtabb mellékutcájában, kiváló közlekedési és infrastrukturális adottságok mellett készül ez a korszerű, kétszintes ikerház.
Az építkezés teljes folyamata átláthatóan nyomon követhető!
Főbb adatok
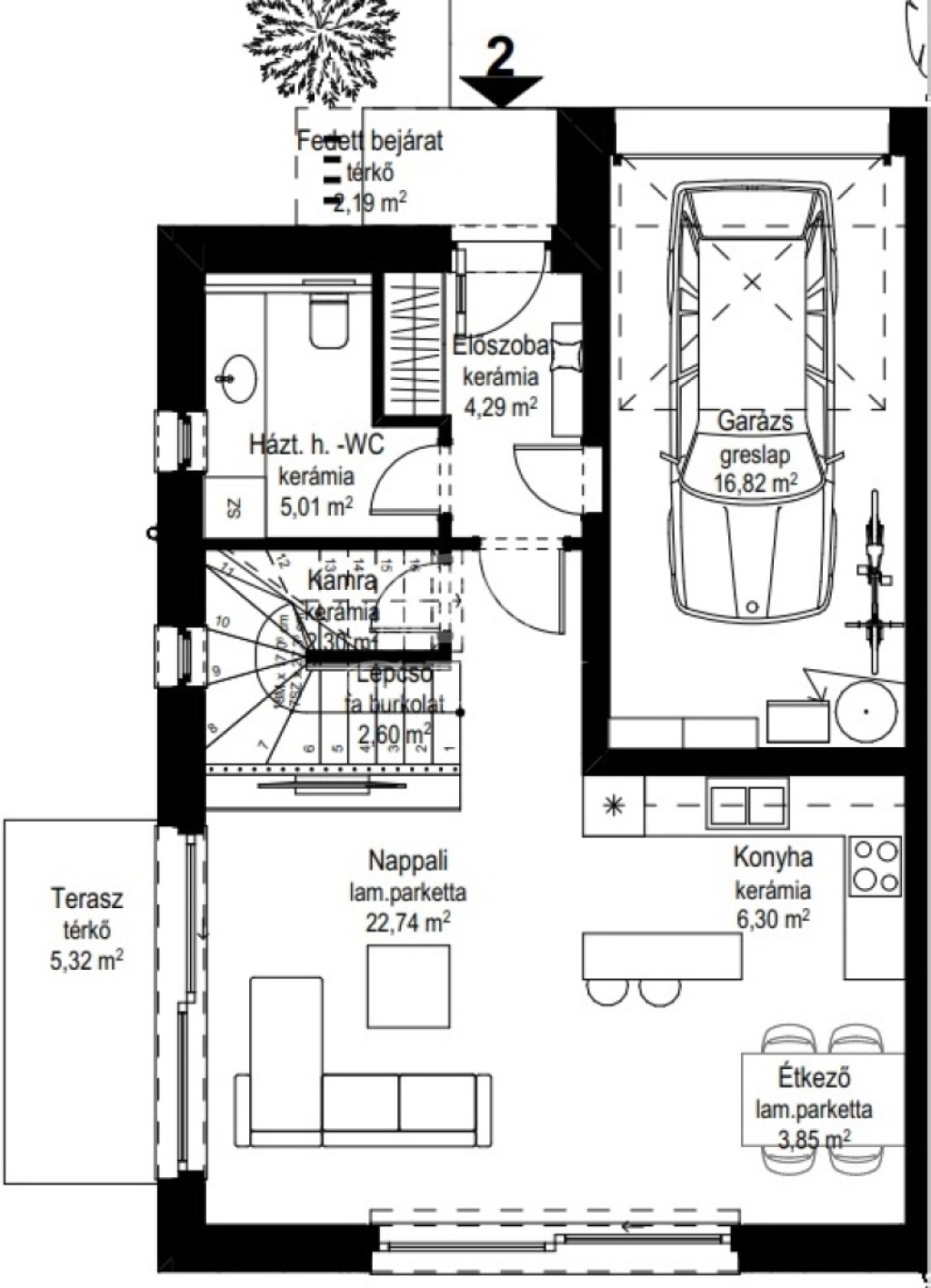
Hasznos alapterület: 122 m²
Telekméret: 231 m² saját kerttel
Szintek száma: földszint + emelet
Hálószobák: 3 külön nyíló szoba
Fürdőszobák: összesen 3 (2 az emeleten, 1 a földszinten)
Nappali: 33 m²-es amerikai konyhás tér, közvetlen teraszkapcsolattal
Parkolás: fedett garázs, nagyobb méretű autó számára is ideális
Műszaki felszereltség
POROTHERM 30 N+F téglafalak, monolit vasbeton födémszerkezet
15 cm homlokzati EPS hőszigetelés + 20 cm födémszigetelés
Hőszivattyúval működő mennyezeti fűtés és hűtés
3 rétegű hőszigetelt nyílászárók és biztonsági bejárati ajtó
Laminált parketta és kerámia burkolatok kombinációja
Terrán Zenit Max Carbon tetőcserép
Kiemelt extrák
Komplett okosotthon rendszer
Motoros alumínium redőnyök
Kamera- és riasztórendszer előkészítés
Videó kaputelefon
Elektromos kapu és autótöltési lehetőség
Automata kertöntöző
WPC kerítés, rejtett világítás, kültéri lámpatestek
Légtechnikai rendszer kiépítve
Digitális projektkövetés – PlanRadar
A vásárló:
Élőben követheti az építkezés előrehaladását telefonon
Kéthetente részletes fotódokumentációt kap
Az átadáskor digitálisan megkap minden szükséges hivatalos dokumentumot (garanciák, tervrajzok, jegyzőkönyvek)
A vételár részét képezik
Gépesített, beépített konyhabútor
Teljes körű kertépítés
Beépített gardróbszekrények
Finanszírozási lehetőségek tárháza
Hitelből is megvásárolható
Díjmentes hitelügyintézés minden hazai bank felé
Elérhető aktuális állami támogatások
Várható átadás: 2026. III. negyedév
Ez az ingatlan ideális választás mindazok számára, akik modern, biztonságos és kényelmes otthont szeretnének. Ne hagyja ki ezt a kivételes lehetőséget!
ID: 390189 ...TOVÁBBI, TÖBBEZRES INGATLAN KÍNÁLAT: - GDN azonosító: 390189
Csendes környezet – Magas minőségű kivitelezés – Teljes digitális átláthatóság!
Budapest X. kerületének egyik legnyugodtabb mellékutcájában, kiváló közlekedési és infrastrukturális adottságok mellett készül ez a korszerű, kétszintes ikerház.
Az építkezés teljes folyamata átláthatóan nyomon követhető!
Főbb adatok
Hasznos alapterület: 122 m²
Telekméret: 231 m² saját kerttel
Szintek száma: földszint + emelet
Hálószobák: 3 külön nyíló szoba
Fürdőszobák: összesen 3 (2 az emeleten, 1 a földszinten)
Nappali: 33 m²-es amerikai konyhás tér, közvetlen teraszkapcsolattal
Parkolás: fedett garázs, nagyobb méretű autó számára is ideális
Műszaki felszereltség
POROTHERM 30 N+F téglafalak, monolit vasbeton födémszerkezet
15 cm homlokzati EPS hőszigetelés + 20 cm födémszigetelés
Hőszivattyúval működő mennyezeti fűtés és hűtés
3 rétegű hőszigetelt nyílászárók és biztonsági bejárati ajtó
Laminált parketta és kerámia burkolatok kombinációja
Terrán Zenit Max Carbon tetőcserép
Kiemelt extrák
Komplett okosotthon rendszer
Motoros alumínium redőnyök
Kamera- és riasztórendszer előkészítés
Videó kaputelefon
Elektromos kapu és autótöltési lehetőség
Automata kertöntöző
WPC kerítés, rejtett világítás, kültéri lámpatestek
Légtechnikai rendszer kiépítve
Digitális projektkövetés – PlanRadar
A vásárló:
Élőben követheti az építkezés előrehaladását telefonon
Kéthetente részletes fotódokumentációt kap
Az átadáskor digitálisan megkap minden szükséges hivatalos dokumentumot (garanciák, tervrajzok, jegyzőkönyvek)
A vételár részét képezik
Gépesített, beépített konyhabútor
Teljes körű kertépítés
Beépített gardróbszekrények
Finanszírozási lehetőségek tárháza
Hitelből is megvásárolható
Díjmentes hitelügyintézés minden hazai bank felé
Elérhető aktuális állami támogatások
Várható átadás: 2026. III. negyedév
Ez az ingatlan ideális választás mindazok számára, akik modern, biztonságos és kényelmes otthont szeretnének. Ne hagyja ki ezt a kivételes lehetőséget!
ID: 390189 ...TOVÁBBI, TÖBBEZRES INGATLAN KÍNÁLAT: - GDN azonosító: 390189