Eladó Ház- házrész
Hirdetéskód: 9318666
GDN Ingatlanhálózat - Best Sellers
Felújításhoz személyi kölcsönt keres? Kalkuláljon itt! →167.00 m2
ALAPTERÜLET5
SZOBASZÁMnincs megadva
ÉPÍTÉSnincs megadva
FŰTÉS- CSOK igénybe vehető nem
- Tetőtér beépíthető nem
- Klíma nem
- Szigetelt nem
A+++
A++
A+
A
B
C
D
E
F
G
H
I
Az ingatlan leírása
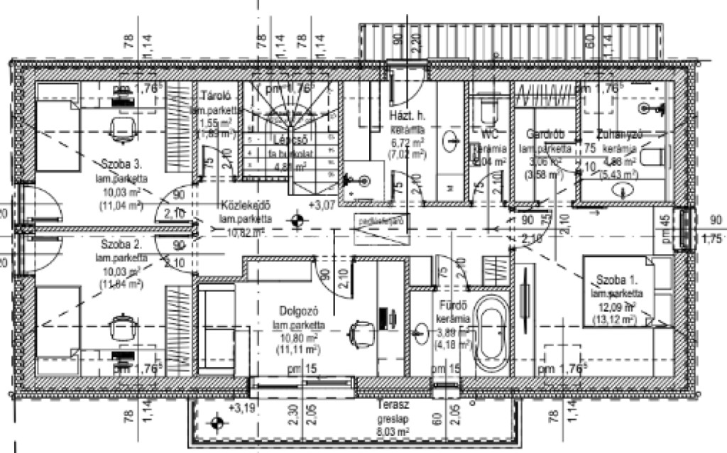
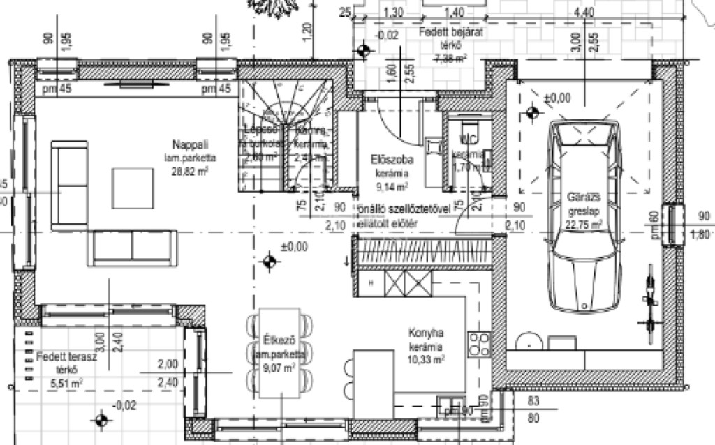
Eladó családi ház Budapest X. kerületében, a Panka közben, csendes, kertvárosi környezetben, magas műszaki tartalommal.
A nettó 145 m2 alapterületű otthonhoz 22,75 m2 garázs tartozik.
Önálló 409 m2-es telek!
Az ingatlan korszerű, időtálló szerkezetekkel épül: fő falazata 30 cm vastag POROTHERM 30 N+F téglából készül, a homlokzaton 15 cm vastag grafitos hőszigeteléssel. A lábazati részen XPS, míg a vasbeton szerkezetek külső oldalán kiegészítő EPS hőszigetelés biztosítja a kiváló energiahatékonyságot. A belső válaszfalak 10 cm vastag kerámia falazóelemekből épülnek.
A tető Terrán Zenit Max cserépfedést kap elegáns Moon szürke színben. A nyílászárók korszerű, háromrétegű hőszigetelt üvegezésű, fenyő színű műanyag szerkezetek, többpontos biztonsági bejárati ajtóval.
A burkolatok igényes kialakításúak: a hálószobákban laminált parketta, míg a vizes helyiségekben kerámia járólap és csempe készül. A külső terek is rendezettek, a gépkocsi beálló és a járdák térkő burkolatot kapnak.
A gépészet modern és energiatakarékos: levegő–levegő rendszerű hőszivattyú biztosítja a mennyezeti hűtés-fűtést, amelyet a nappali szinten padlófűtés egészít ki a maximális komfort érdekében.
Ez az ingatlan ideális választás mindazok számára, akik minőségi kivitelezésű, alacsony fenntartású, modern otthont keresnek a főváros egyik nyugodt részén.
ID: 394708 ...TOVÁBBI, TÖBBEZRES INGATLAN KÍNÁLAT: - GDN azonosító: 394708
A nettó 145 m2 alapterületű otthonhoz 22,75 m2 garázs tartozik.
Önálló 409 m2-es telek!
Az ingatlan korszerű, időtálló szerkezetekkel épül: fő falazata 30 cm vastag POROTHERM 30 N+F téglából készül, a homlokzaton 15 cm vastag grafitos hőszigeteléssel. A lábazati részen XPS, míg a vasbeton szerkezetek külső oldalán kiegészítő EPS hőszigetelés biztosítja a kiváló energiahatékonyságot. A belső válaszfalak 10 cm vastag kerámia falazóelemekből épülnek.
A tető Terrán Zenit Max cserépfedést kap elegáns Moon szürke színben. A nyílászárók korszerű, háromrétegű hőszigetelt üvegezésű, fenyő színű műanyag szerkezetek, többpontos biztonsági bejárati ajtóval.
A burkolatok igényes kialakításúak: a hálószobákban laminált parketta, míg a vizes helyiségekben kerámia járólap és csempe készül. A külső terek is rendezettek, a gépkocsi beálló és a járdák térkő burkolatot kapnak.
A gépészet modern és energiatakarékos: levegő–levegő rendszerű hőszivattyú biztosítja a mennyezeti hűtés-fűtést, amelyet a nappali szinten padlófűtés egészít ki a maximális komfort érdekében.
Ez az ingatlan ideális választás mindazok számára, akik minőségi kivitelezésű, alacsony fenntartású, modern otthont keresnek a főváros egyik nyugodt részén.
ID: 394708 ...TOVÁBBI, TÖBBEZRES INGATLAN KÍNÁLAT: - GDN azonosító: 394708