Eladó Ház- házrész
Hirdetéskód: 9287397

Budapest II. kerület Ganz utca 5-7 - OTP Ingatlanpont Iroda

Felújításhoz személyi kölcsönt keres? Kalkuláljon itt! →
122.00 m2
ALAPTERÜLET
4
SZOBASZÁM
nincs megadva
ÉPÍTÉS
Egyéb fűtés
FŰTÉS
  • CSOK igénybe vehető nem
  • Belső szintek 2
  • Tetőtér beépíthető nem
  • Építés éve 2026
  • Fűtés Egyéb fűtés
  • Klíma nem
  • Szigetelt nem
Energetikai besorolás: Nincs meghatározva
A+++
A++
A+
A
B
C
D
E
F
G
H
I

Az MBH Bank személyi kölcsön ajánlata

Fizetett hirdetés
1 millió Ft
6 évre
20 585 Ft/hó
THM: 14.5%
Részletek →
2 millió Ft
6 évre
41 169 Ft/hó
THM: 14.5%
Részletek →
3 millió Ft
6 évre
61 754 Ft/hó
THM: 14.5%
Részletek →

A tájékoztatás nem teljes körű és nem minősül ajánlattételnek.

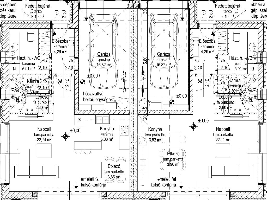
Az ingatlan leírása

Eladó Kőbányán a 10. kerületben, új építésű ikerházban, egy 122 nm területű lakás tetőtéri beépítéssel. Az ingatlan megfelel az államilag támogatott családbarát kedvezményeknek és kedvező hitel lehetőségeknek. A két ikerházban összesen 4 lakás kerül kialakításra. A lakáshoz garázs is készül, kertkapcsolattal és terasszal. A lakás teljes mértékben családbarát kialakítású, ahogy az alaprajzokból is kitűnik. Az alsó szinten amerikai konyhás, tágas terű nappalival és étkezővel a család komfort érzetének megfelelően. A felső szinten 2 gyerekszoba és külön hálószoba a családi nyugalom érdekében. Az ikerházak az egyik legmodernebb hőszivattyús rendszerrel épülnek a gazdaságos energia ellátás céljából. A kivitelező 2026. év végére tervezi befejezni az egész ingatlan projektet. Az ikerházak és a lakások a valóságban úgy fognak kinézni, mint a látványterveken. Jöjjön el és szeressen bele ebbe a családbarát ingatlanba! Az OTP Ingatlanpont teljes körű ügyintézéssel áll az eladók és a vevők rendelkezésére. A kínálatunkból választott ingatlan finanszírozásához kedvezményes hitelkonstrukciókat kínálunk. További információkért keressen bizalommal!

Térkép

A hirdető elérhetősége

Budapest II. kerület Ganz utca 5-7 - OTP Ingatlanpont Iroda

Dr. Lukovszki János
+36 30 464