Eladó Ház- házrész
Hirdetéskód: 9303702

ingatlanhirdeto

Felújításhoz személyi kölcsönt keres? Kalkuláljon itt! →
0.00 m2
ALAPTERÜLET
7
SZOBASZÁM
nincs megadva
ÉPÍTÉS
nincs megadva
FŰTÉS
  • CSOK igénybe vehető nem
  • Tetőtér beépíthető nem
  • Építés éve 1969
  • Klíma nem
  • Szigetelt nem
Energetikai besorolás: Nincs meghatározva
A+++
A++
A+
A
B
C
D
E
F
G
H
I

Az MBH Bank személyi kölcsön ajánlata

Fizetett hirdetés
1 millió Ft
6 évre
20 585 Ft/hó
THM: 14.5%
Részletek →
2 millió Ft
6 évre
41 169 Ft/hó
THM: 14.5%
Részletek →
3 millió Ft
6 évre
61 754 Ft/hó
THM: 14.5%
Részletek →

A tájékoztatás nem teljes körű és nem minősül ajánlattételnek.

Az ingatlan leírása


Elhelyezkedése: Zöldövezet Tájolása: Nyugati tájolású Állapota: Jó Komfort besorolása: Dupla komfortos Építési éve: 1969 Alapterülete: 150 m2 Telekterülete: 425 m2 Szobák száma: 7szoba Fűtés típusa: Cirkó Homlokzat állapot: átlagos Építési mód: Tégla Parkolási lehetőség: Telken Kilátás: Utcafronti kilátás Jellemzői: Alacsony rezsi, Csendes környék, Jó közlekedés Energetikai besorolás: Nincs adat Egyéb jellemzők: Erkély, Pince
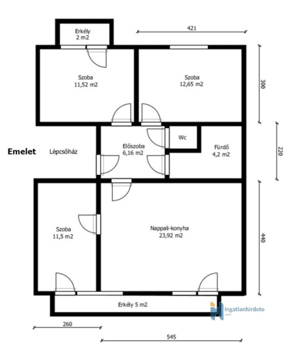
4. kerület, Semmelweis utcában eladó egy 425 m2 telken fekvő, 1969-ben téglából (38 cm) épült, 150 m2 két szintes családi ház, alatta 75 m2 pincével.

Az épületben külön lépcsőház és 2 önálló bejárattal rendelkező lakás található.

Földszinti 75 m2-es, 3 szobás, erkélyes (2 m2) világos lakás. 2018-ban történtek felújítások, amely során kicserélték a villanyhálózatot, vízvezetéket, külső nyílászárókat, hideg- meleg burkolatokat.

Emeleti 75 m2-es, 4 szobás, erkélyes (2 m2 és 5 m2) világos lakás. 2022-ben történtek felújítások, amely során kicserélték a villanyhálózatot, vízvezetéket, bejárati ajtót, külső- belső nyílászárókat, hideg- meleg burkolatokat, klímaberendezést, fűtés rendszert és cirkókazánt.

Közlekedés: buszok (30, 30A, 96, 122E, 147, 196, 230) éjszakai járat (930) pár percen belül elérhetőek.

Közelben: bevásárlási lehetőségek, iskola, óvoda, bank, posta, gyógyszertár stb

További információért kérem, hívjon bizalommal, majd nézze meg személyesen, és tegyen egy ajánlatot!

Térkép

Ingatlan adásvétel ügyvédi díja
600 000 Ft
a hirdetésben szereplő ár alapján
  • A vételár 0,45%-a
  • Szerződéscsomag teljeskörű képviselettel
  • Ingyenes tulajdoni lap ellenőrzés
  • Az ÁFA-t már tartalmazza
Érdekel az ajánlat →
A tájékoztatás nem teljes körű és nem minősül ajánlattételnek. Minimum díj: 150 000 Ft, maximum díj: 600 000 Ft. A díj kizárólag lakóingatlan adásvételére vonatkozik.

A hirdető elérhetősége

ingatlanhirdeto

Árvai István
+36 30 333