Eladó Ház- házrész
Hirdetéskód: 9274878
Fővállalkozó Balla és Balla Kft
Felújításhoz személyi kölcsönt keres? Kalkuláljon itt! →
Ez a hirdetés megfelelhet a FIX 3%-os programnak.
Tudj meg többet a részletekről itt.
112.00 m2
ALAPTERÜLET4
SZOBASZÁMnincs megadva
ÉPÍTÉSnincs megadva
FŰTÉS- CSOK igénybe vehető nem
- Tetőtér beépíthető nem
- Építés éve 1986
- Klíma nem
- Szigetelt nem
A+++
A++
A+
A
B
C
D
E
F
G
H
I
Az ingatlan leírása
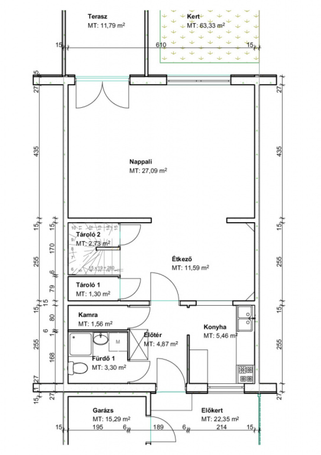
Újpest – Rózsabokor utcában 112 m²-es, 4+1 félszobás SORHÁZ, 86 m²-es KERTKAPCSOLATTAL, önálló GARÁZZSAL eladó!
Megyer csendes, kulturált, családi házas övezetében kínáljuk megvételre ezt a tágas, napfényes, kiváló elosztású, DUPLAKOMFORTOS sorházi otthont.
Az ingatlan 1986-ban épült, folyamatosan karbantartott, jó műszaki állapotú.
Jelentősebb, teljeskörű korszerűsítés nem történt, ugyanakkor:
-a tetőszerkezet és cserepezés felújított, jó állapotú,
-a konyha és az egyik fürdőszoba néhány éve megújult,
-a fűtést és meleg vizet karbantartott kombi cirkó gázkazán biztosítja,
- automata garázskapuval felszerelt
Az ingatlan esztétikai frissítése az új Tulajdonos elképzeléseire vár, ugyanakkor az alapok stabilak és jók.
Kiváló elosztású ingatlan:
-Alsó szinten ablakos konyha, külön étkező, zuhanyzós fürdőszoba, tágas, 27 m²-es nappali található, közvetlen kertkapcsolattal
-Felső szinten 4 külön nyíló hálószoba és kádas fürdőszoba került kialakításra
A tetőtér bővíthető, így akár további szoba vagy dolgozó kialakítására is lehetőség nyílik.
A ház jellemzői:
-86 m²-es, intim kertkapcsolat,
-Előkert,
-Önálló, szerelőaknás garázs, utcáról és udvarról is megközelíthető,
-Keleti fekvés – kifejezetten napfényes terek,
-Csendes, nyugodt lakókörnyezet, jó lakóközösség
A környék infrastruktúrája kiváló:
Lidl, Auchan, Aquaworld, Halassy Olivér Sportközpont, Tarzan Park, Szilas patak, iskolák, óvodák, orvosi rendelők, parkok, játszóterek és számos bevásárlási lehetőség perceken belül elérhető.
Ez az ingatlan ideális választás lehet többgyermekes családok számára, vagy olyan vevőknek, akik kertkapcsolatos, garázsos otthont keresnek csendes, kertvárosi környezetben.
NE MARADJON LE – hívjon bizalommal!
Megyer csendes, kulturált, családi házas övezetében kínáljuk megvételre ezt a tágas, napfényes, kiváló elosztású, DUPLAKOMFORTOS sorházi otthont.
Az ingatlan 1986-ban épült, folyamatosan karbantartott, jó műszaki állapotú.
Jelentősebb, teljeskörű korszerűsítés nem történt, ugyanakkor:
-a tetőszerkezet és cserepezés felújított, jó állapotú,
-a konyha és az egyik fürdőszoba néhány éve megújult,
-a fűtést és meleg vizet karbantartott kombi cirkó gázkazán biztosítja,
- automata garázskapuval felszerelt
Az ingatlan esztétikai frissítése az új Tulajdonos elképzeléseire vár, ugyanakkor az alapok stabilak és jók.
Kiváló elosztású ingatlan:
-Alsó szinten ablakos konyha, külön étkező, zuhanyzós fürdőszoba, tágas, 27 m²-es nappali található, közvetlen kertkapcsolattal
-Felső szinten 4 külön nyíló hálószoba és kádas fürdőszoba került kialakításra
A tetőtér bővíthető, így akár további szoba vagy dolgozó kialakítására is lehetőség nyílik.
A ház jellemzői:
-86 m²-es, intim kertkapcsolat,
-Előkert,
-Önálló, szerelőaknás garázs, utcáról és udvarról is megközelíthető,
-Keleti fekvés – kifejezetten napfényes terek,
-Csendes, nyugodt lakókörnyezet, jó lakóközösség
A környék infrastruktúrája kiváló:
Lidl, Auchan, Aquaworld, Halassy Olivér Sportközpont, Tarzan Park, Szilas patak, iskolák, óvodák, orvosi rendelők, parkok, játszóterek és számos bevásárlási lehetőség perceken belül elérhető.
Ez az ingatlan ideális választás lehet többgyermekes családok számára, vagy olyan vevőknek, akik kertkapcsolatos, garázsos otthont keresnek csendes, kertvárosi környezetben.
NE MARADJON LE – hívjon bizalommal!