Eladó Ház- házrész
Hirdetéskód: 8960811
Otthon Centrum - III. kerület - Csillaghegy
360 m2
ALAPTERÜLET5
SZOBASZÁMnincs megadva
ÉPÍTÉSnincs megadva
FŰTÉS- CSOK igénybe vehető nem
- Tetőtér beépíthető nem
- Építés éve 2025
- Klíma nem
- Szigetelt nem
A+++
A++
A+
A
B
C
D
E
F
G
H
I
Az ingatlan leírása
Ürömhegyi ikerházak
PANORÁMÁS ÚJ ÉPÍTÉSŰ IKERHÁZAK ÜRÖMHEGYEN TÁVOL A MAGASFESZÜLTSÉGTŐL!
Az ikerházak 4 kényelmes méretű hálószobával vagy garázzsal kérhetőek!
III. kerület dinamikusan fejlődő részén Aranyhegy/Ürömhegyen új projekt keretén belül kerül megépítésre 2 x 2 ikerház.
A házak önálló parkolóval, saját privát kerttel rendelkeznek.
Az ikerház felek mindössze egy háztartási helység falán keresztül kapcsolódnak egymáshoz a földszinten.
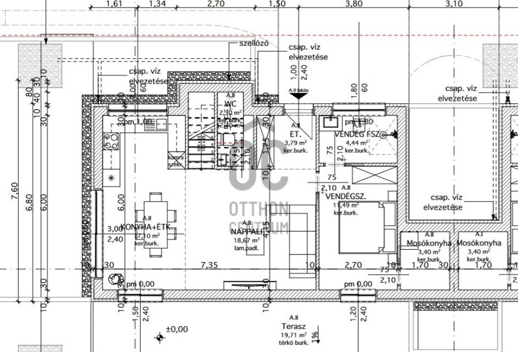
Lakóterület: 115 nm nagyságú hasznos belső alapterület + 21 nm nagyságú terasz a földszinten és 20 nm nagyságú erkély és terasz az emeleti szinten képezi a lakás részét.
A földszinti vendégszobából igény esetén garázs is kialakítható.
Szobák száma 5
nappali + konyha étkező + 4 hálószoba!
Kivitelező referenciái megtekinthetőek a környéken, magas színvonalú kivitelezés, megbízhatóság, minőség jellemzi munkáját.
Műszaki tartalomról röviden:
Grafitos hőszigetelés
Hőszivattyús mennyezet hűtés-fűtés
Szellőztető rendszer
Elektromos alumínium redőnyök minden ablakon... stb
Gyönyörű környezet, csodás panoráma, intim lakhatás közel a városhoz, kiváló közlekedés mellett!
PANORÁMÁS ÚJ ÉPÍTÉSŰ IKERHÁZAK ÜRÖMHEGYEN TÁVOL A MAGASFESZÜLTSÉGTŐL!
Az ikerházak 4 kényelmes méretű hálószobával vagy garázzsal kérhetőek!
III. kerület dinamikusan fejlődő részén Aranyhegy/Ürömhegyen új projekt keretén belül kerül megépítésre 2 x 2 ikerház.
A házak önálló parkolóval, saját privát kerttel rendelkeznek.
Az ikerház felek mindössze egy háztartási helység falán keresztül kapcsolódnak egymáshoz a földszinten.
Lakóterület: 115 nm nagyságú hasznos belső alapterület + 21 nm nagyságú terasz a földszinten és 20 nm nagyságú erkély és terasz az emeleti szinten képezi a lakás részét.
A földszinti vendégszobából igény esetén garázs is kialakítható.
Szobák száma 5
nappali + konyha étkező + 4 hálószoba!
Kivitelező referenciái megtekinthetőek a környéken, magas színvonalú kivitelezés, megbízhatóság, minőség jellemzi munkáját.
Műszaki tartalomról röviden:
Grafitos hőszigetelés
Hőszivattyús mennyezet hűtés-fűtés
Szellőztető rendszer
Elektromos alumínium redőnyök minden ablakon... stb
Gyönyörű környezet, csodás panoráma, intim lakhatás közel a városhoz, kiváló közlekedés mellett!