Eladó Ház- házrész
Hirdetéskód: 9323668
Fővállalkozó Balla és Balla Kft
Felújításhoz személyi kölcsönt keres? Kalkuláljon itt! →114.00 m2
ALAPTERÜLET4
SZOBASZÁMnincs megadva
ÉPÍTÉSnincs megadva
FŰTÉS- CSOK igénybe vehető nem
- Tetőtér beépíthető nem
- Építés éve 2026
- Klíma nem
- Szigetelt nem
A+++
A++
A+
A
B
C
D
E
F
G
H
I
Az ingatlan leírása
PRÉMIUM IKERHÁZ CSILLAGHEGY SZÍVÉBEN – A DUNA KÖZELÉBEN
Álmodja meg – mi megépítjük!
Csillaghegyen, a Duna felőli oldalon, a Deák utcában épül ez az önálló, újépítésű ikerház, amely ötvözi a modern műszaki tartalmat, a praktikus elrendezést és a nyugodt, zöldövezeti környezetet.
Átadás: 2026. III. negyedév
⸻
? Főbb paraméterek
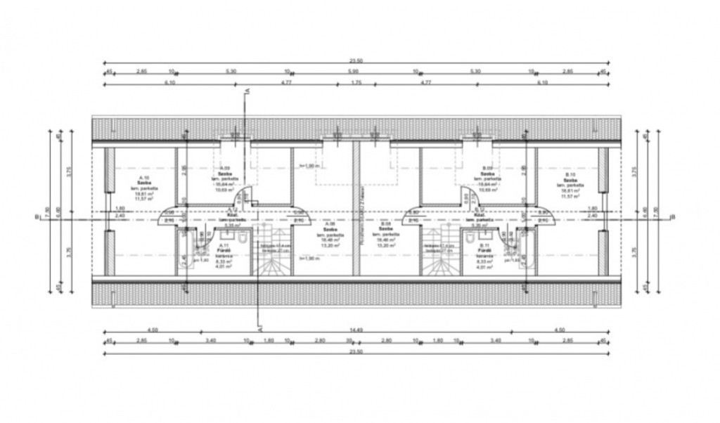
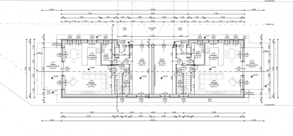
• 113,5 nm nettó hasznos alapterület
• 135,2 nm bruttó alapterület
• Amerikai konyhás nappali + 3 hálószoba
• 13,5 nm napfényes terasz (DNY tájolás)
• 595 nm-es telek
• 1 autós garázs (16,8 nm), amely igény szerint szobává alakítható
Az elrendezés igény szerint alakítható, így valóban az Ön életstílusára szabott otthon készülhet.
⸻
Modern, energiatakarékos műszaki tartalom
- Hőszivattyús fűtési rendszer
- Teljes padlófűtés
- Kedvező „H” tarifa
- Kulcsrakész kivitel (beépített bútorok nélkül)
Alacsony fenntartási költség, magas komfortérzet – hosszú távra tervezve.
⸻
Miért különleges?
• Duna közeli, csendes környezet
• Kiváló tájolás – világos, napfényes élettér
• Modern megjelenés, időtálló érték
• Tapasztalt, referenciákkal rendelkező
Éljen a lehetőséggel, és teremtsen otthont ott, ahol a nyugalom és a városi kényelem találkozik!
Ez az ingatlan tökéletes választás családok számára, akik kompromisszumok nélkül szeretnének modern, energiatudatos, jól átgondolt otthonban élni Budapest egyik legkedveltebb részén.
Érdeklődjön még ma, és biztosítsa be új otthonát 2026-ra!
Álmodja meg – mi megépítjük!
Csillaghegyen, a Duna felőli oldalon, a Deák utcában épül ez az önálló, újépítésű ikerház, amely ötvözi a modern műszaki tartalmat, a praktikus elrendezést és a nyugodt, zöldövezeti környezetet.
Átadás: 2026. III. negyedév
⸻
? Főbb paraméterek
• 113,5 nm nettó hasznos alapterület
• 135,2 nm bruttó alapterület
• Amerikai konyhás nappali + 3 hálószoba
• 13,5 nm napfényes terasz (DNY tájolás)
• 595 nm-es telek
• 1 autós garázs (16,8 nm), amely igény szerint szobává alakítható
Az elrendezés igény szerint alakítható, így valóban az Ön életstílusára szabott otthon készülhet.
⸻
Modern, energiatakarékos műszaki tartalom
- Hőszivattyús fűtési rendszer
- Teljes padlófűtés
- Kedvező „H” tarifa
- Kulcsrakész kivitel (beépített bútorok nélkül)
Alacsony fenntartási költség, magas komfortérzet – hosszú távra tervezve.
⸻
Miért különleges?
• Duna közeli, csendes környezet
• Kiváló tájolás – világos, napfényes élettér
• Modern megjelenés, időtálló érték
• Tapasztalt, referenciákkal rendelkező
Éljen a lehetőséggel, és teremtsen otthont ott, ahol a nyugalom és a városi kényelem találkozik!
Ez az ingatlan tökéletes választás családok számára, akik kompromisszumok nélkül szeretnének modern, energiatudatos, jól átgondolt otthonban élni Budapest egyik legkedveltebb részén.
Érdeklődjön még ma, és biztosítsa be új otthonát 2026-ra!