Eladó Ház- házrész
Hirdetéskód: 9227165
Fővállalkozó Balla és Balla Kft
Felújításhoz személyi kölcsönt keres? Kalkuláljon itt! →120.00 m2
ALAPTERÜLET3
SZOBASZÁMnincs megadva
ÉPÍTÉSEgyéb fűtés
FŰTÉS- CSOK igénybe vehető nem
- Tetőtér beépíthető nem
- Építés éve 2017
- Fűtés Egyéb fűtés
- Klíma nem
- Szigetelt nem
A+++
A++
A+
A
B
C
D
E
F
G
H
I
Az ingatlan leírása
CSILLAGHEGYEN ÚJSZERŰ IKERHÁZ ELADÓ!
Megvételre kínálok a III. kerület, Csillaghegy egyik legjobb részén, a
Duna felöli oldalon, a Római part szomszédságában, egy 2017-ben épült, modern ikerházat!
A két szintes, kb. 120 m²-es otthon kiváló elosztású: tágas amerikai konyhás nappali, összesen 3 +2 félszobás, 2 fürdő, gardrób, két terasz, valamint egy kizárólagos használatú, parkosított kert tartozik hozzá.
Az ingatlan jogi jellege: társasház!
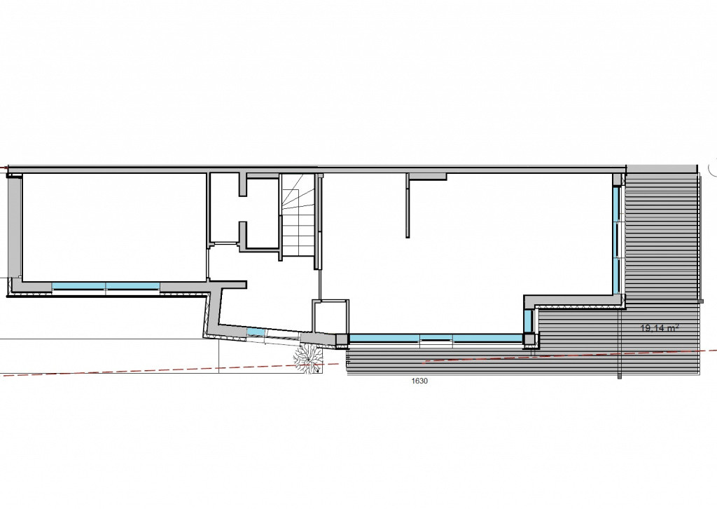
Földszint
• napfényes, 34 m²-es amerikai konyhás nappali nagy üvegfelületekkel
• fedett, 19 m²-es terasz és közvetlen kertkapcsolat
• két kisebb szoba (egybenyithatók vagy más funkcióra alakíthatók)
• zuhanyzós fürdő + WC
• külön kamra
Emelet
• két világos hálószoba
• nagy fürdő káddal, dupla mosdóval
• külön gardróbhelyiség
• 6,8 m²-es terasz
Műszaki tartalom
• Porotherm falazat + grafitos szigetelés
• 4 rétegű ablakok, riasztó, videó kaputelefon
• H tarifára kötött Toshiba hőszivattyú biztosítja a teljes ház melegvízellátását 300l HMV tartállyal, a fűtését és hűtését pedig padlófűtéssel illetve fali/mennyezeti fűtő/hűtő panelekkel. Minden helyiség hőmérséklete egyedileg, internetről is vezérelhető digitális termosztáttal szabályozható. A rendszert a tetőn 9 kW teljesítményű napelemrendszer támogatja (még 7 évig szaldó elszámolásban), így minimális a rezsiköltség.
• alumínium zsaluzia + redőnyök, szúnyogháló
Telek és környék
A telek 380 nm, a gondozott kertje teljesen szeparált, automata öntözőrendszerrel, elektromos kapuval, tárolóval, kényelmes autóbeállóval.
A környék csendes, zöld, mégis minden a közelben megtalálható: Csillag Center, Lidl, Aldi, HÉV, buszok, óvoda, iskola, Római-part, strandok. Az Árpád híd gyorsan elérhető.
Megtisztelő hívását várom a hét minden napján.
Megvételre kínálok a III. kerület, Csillaghegy egyik legjobb részén, a
Duna felöli oldalon, a Római part szomszédságában, egy 2017-ben épült, modern ikerházat!
A két szintes, kb. 120 m²-es otthon kiváló elosztású: tágas amerikai konyhás nappali, összesen 3 +2 félszobás, 2 fürdő, gardrób, két terasz, valamint egy kizárólagos használatú, parkosított kert tartozik hozzá.
Az ingatlan jogi jellege: társasház!
Földszint
• napfényes, 34 m²-es amerikai konyhás nappali nagy üvegfelületekkel
• fedett, 19 m²-es terasz és közvetlen kertkapcsolat
• két kisebb szoba (egybenyithatók vagy más funkcióra alakíthatók)
• zuhanyzós fürdő + WC
• külön kamra
Emelet
• két világos hálószoba
• nagy fürdő káddal, dupla mosdóval
• külön gardróbhelyiség
• 6,8 m²-es terasz
Műszaki tartalom
• Porotherm falazat + grafitos szigetelés
• 4 rétegű ablakok, riasztó, videó kaputelefon
• H tarifára kötött Toshiba hőszivattyú biztosítja a teljes ház melegvízellátását 300l HMV tartállyal, a fűtését és hűtését pedig padlófűtéssel illetve fali/mennyezeti fűtő/hűtő panelekkel. Minden helyiség hőmérséklete egyedileg, internetről is vezérelhető digitális termosztáttal szabályozható. A rendszert a tetőn 9 kW teljesítményű napelemrendszer támogatja (még 7 évig szaldó elszámolásban), így minimális a rezsiköltség.
• alumínium zsaluzia + redőnyök, szúnyogháló
Telek és környék
A telek 380 nm, a gondozott kertje teljesen szeparált, automata öntözőrendszerrel, elektromos kapuval, tárolóval, kényelmes autóbeállóval.
A környék csendes, zöld, mégis minden a közelben megtalálható: Csillag Center, Lidl, Aldi, HÉV, buszok, óvoda, iskola, Római-part, strandok. Az Árpád híd gyorsan elérhető.
Megtisztelő hívását várom a hét minden napján.