Eladó Ház- házrész
Hirdetéskód: 9326202
OTP Ingatlanpont - Takács Zsuzsanna
Felújításhoz személyi kölcsönt keres? Kalkuláljon itt! →497.00 m2
ALAPTERÜLET8
SZOBASZÁMnincs megadva
ÉPÍTÉSGáz (cirkó)
FŰTÉS- CSOK igénybe vehető nem
- Tetőtér beépíthető nem
- Építés éve 2002
- Fűtés Gáz (cirkó)
- Klíma nem
- Szigetelt nem
A+++
A++
A+
A
B
C
D
E
F
G
H
I
Az ingatlan leírása
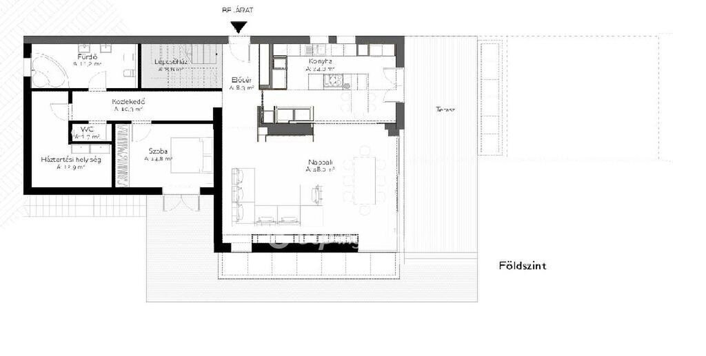
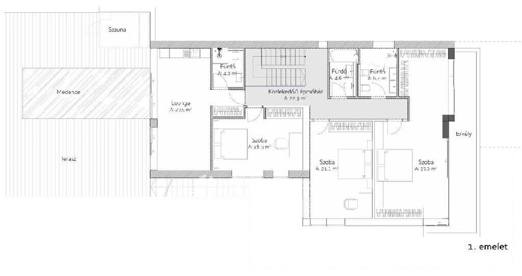
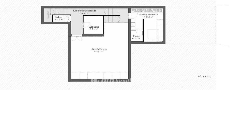
Exkluzív lehetőség a II. kerület egyik legkeresettebb részén, Szemlőhegyen.
Közel 500 nm lakóterű, 8 szobás villa, több mint 1300 nm-es telken, lenyűgöző panorámával és kivételes adottságokkal.
Az épület külső megjelenése kifogástalan, belső tereiben egy megkezdett átalakítás kínál lehetőséget arra, hogy az ingatlan végső kialakítása már az új tulajdonos elképzelései szerint valósuljon meg.
A tágas terek, a privát hátsó kert medencével, valamint a négyállásos garázs együttesen biztosítják azt az alapot, amelyre egy valóban magas színvonalú, személyre szabott otthon építhető.
Ritka ajánlat, ahol az elhelyezkedés, a méret és a jövőbeni értékteremtés lehetősége találkozik.
Hívjon most és legyen Ön az új tulajdonos!
M327260
Az OTP Ingatlanpont, mint egyetlen közvetlen banki hátterű ingatlanközvetítő társaság teljes körű ügyintézéssel áll az eladók és a vevők rendelkezésére! A kínálatunkból választott ingatlan finanszírozásához minősített fogyasztóbarát, piaci és kedvezményes hitel- és lízingkonstrukciókat kínálunk (lakásvásárlási hitel, CSOK plusz, szabad felhasználású hitel, babaváró hitel, céges hitelek, pályázatok, amennyiben az ügyfél és az ingatlan megfelel a feltételeknek). Az adásvételi szerződés megkötéséhez igény szerint megbízható ügyvédi közreműködést biztosítunk, és segítséget nyújtunk az adásvételhez kapcsolódó egyéb ügyek intézéséhez. Ha az új ingatlana megvásárlásához a jelenlegi ingatlanát el kell adnia, abban is szívesen segítünk.
Közel 500 nm lakóterű, 8 szobás villa, több mint 1300 nm-es telken, lenyűgöző panorámával és kivételes adottságokkal.
Az épület külső megjelenése kifogástalan, belső tereiben egy megkezdett átalakítás kínál lehetőséget arra, hogy az ingatlan végső kialakítása már az új tulajdonos elképzelései szerint valósuljon meg.
A tágas terek, a privát hátsó kert medencével, valamint a négyállásos garázs együttesen biztosítják azt az alapot, amelyre egy valóban magas színvonalú, személyre szabott otthon építhető.
Ritka ajánlat, ahol az elhelyezkedés, a méret és a jövőbeni értékteremtés lehetősége találkozik.
Hívjon most és legyen Ön az új tulajdonos!
M327260
Az OTP Ingatlanpont, mint egyetlen közvetlen banki hátterű ingatlanközvetítő társaság teljes körű ügyintézéssel áll az eladók és a vevők rendelkezésére! A kínálatunkból választott ingatlan finanszírozásához minősített fogyasztóbarát, piaci és kedvezményes hitel- és lízingkonstrukciókat kínálunk (lakásvásárlási hitel, CSOK plusz, szabad felhasználású hitel, babaváró hitel, céges hitelek, pályázatok, amennyiben az ügyfél és az ingatlan megfelel a feltételeknek). Az adásvételi szerződés megkötéséhez igény szerint megbízható ügyvédi közreműködést biztosítunk, és segítséget nyújtunk az adásvételhez kapcsolódó egyéb ügyek intézéséhez. Ha az új ingatlana megvásárlásához a jelenlegi ingatlanát el kell adnia, abban is szívesen segítünk.