Eladó Ház- házrész
Hirdetéskód: 9193640

Duna House - Budaörs

993 m2
ALAPTERÜLET
6
SZOBASZÁM
nincs megadva
ÉPÍTÉS
nincs megadva
FŰTÉS
  • CSOK igénybe vehető nem
  • Tetőtér beépíthető nem
  • Építés éve 2005
  • Klíma nem
  • Szigetelt nem
Energetikai besorolás: Nincs meghatározva
A+++
A++
A+
A
B
C
D
E
F
G
H
I

Az ingatlan leírása

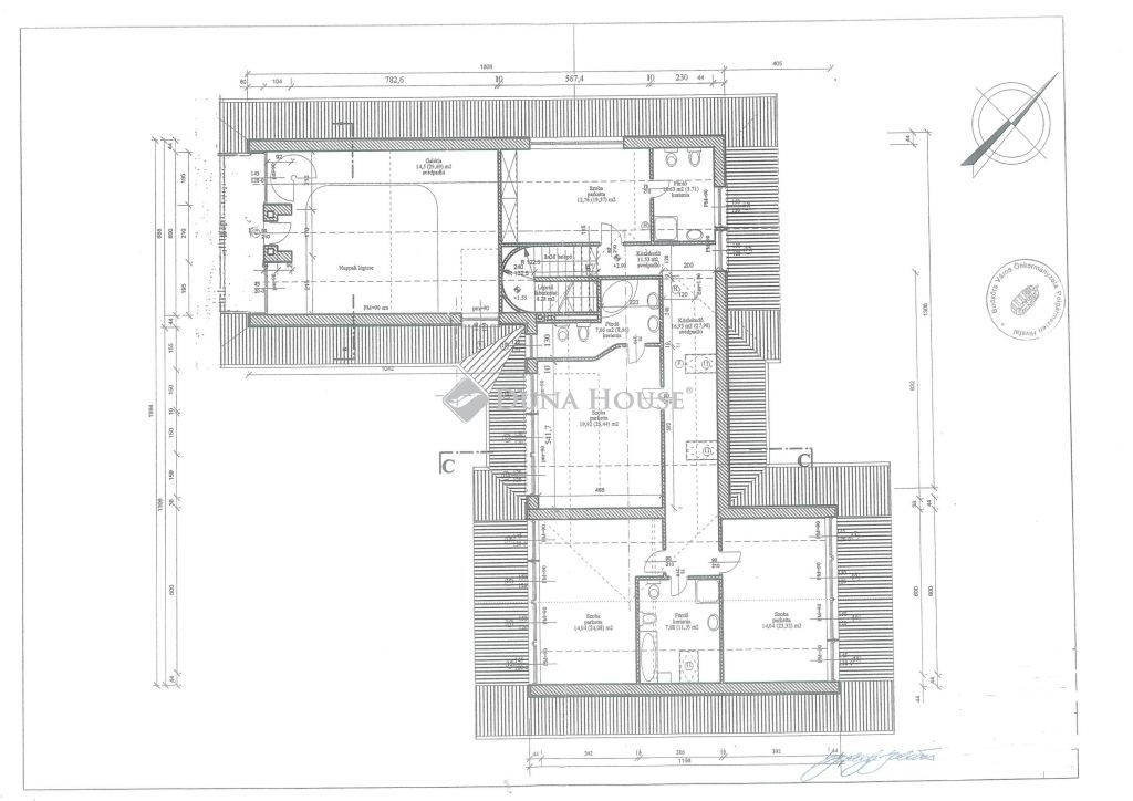
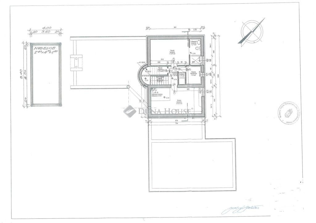
NAGYPOLGÁRI OTTHON BUDAÖRS SZÍVÉBEN!Eladó Budaörs központjában, de mégis csendes helyen egy nagystílű, impozáns méretekkel és terekkel rendelkező belső háromszintes családi ház.Az ingatlan közel 400 nm-es (alagsor nettó 57,36 nm, földszint nettó 216,93 nm, tetőtér nettó 124,37 nm) és rendkívül élhető az elrendezése. Az alagsorban kiszolgáló helyiségek találhatók: tároló, kazánház, szauna vizesblokkal és egyéb gépészeti elemek, mint például vízlágyító és központi porszívó, a földszintet a közel 60 nm-es galériás nappali uralja a hozzákapcsolódó konyhával és étkezővel, ill. két hálószoba (jelenleg összenyitva) is található ezen a szinten fürdőszobával, közlekedő/gardróbbal, mosókonyhával és a duplagarázzsal, a tetőtérben pedig további négy hálószoba van három fürdőszobával.A fűtésről és hűtésről parapetes fan -coil rendszer gondoskodik, melynek egy gázkazán a központi hőtermelője. A nappaliban egy attraktív cserépkályha szolgál alternatív fűtési lehetőségként.A ház 2005-ben épült, tulajdonosai folyamatosan újították, korszerűsítették: 2022-ben például friss belső festést kapott az ingatlan, a tetőt is renoválták, ill. napelem rendszer telepítésére is sor került.A 993 nm-es kert gyönyörű és a budaörsi viszonyok ellenére meglepően intim. Külön dísze a grillező hely és a komoly gépészettel rendelkező kültéri medence (8 mX3,6 m).A nappali, konyha és étkező terét és a kertet egy kb. 100 nm-es terasz köti össze.Parkolni a tágas duplagarázsban lehet, ill. egy fedett autóbeállón és a ház előtt is kényelmesen elfér több autó.Az infrastruktúra és közlekedés tökéletes, pár perc alatt könnyen elérhető a főváros autóval és tömegközlekedéssel is. Több bevásárlási (TESCO, AUCHAN, LIDL, ALDI) és szórakozási lehetőség (VÁROSI SPORTCSARNOK ÉS USZODA, SZÍNHÁZ, JÁTSZÓHÁZ) is néhány utcára található.

Térkép

A hirdető elérhetősége

Duna House - Budaörs

Czékmány Timea
+36 30 559