Eladó Ház- házrész
Hirdetéskód: 9296041

Miru Szilvia

Felújításhoz személyi kölcsönt keres? Kalkuláljon itt! →
344.00 m2
ALAPTERÜLET
4
SZOBASZÁM
nincs megadva
ÉPÍTÉS
nincs megadva
FŰTÉS
  • CSOK igénybe vehető nem
  • Tetőtér beépíthető nem
  • Építés éve 2000
  • Klíma nem
  • Szigetelt nem
Energetikai besorolás: Nincs meghatározva
A+++
A++
A+
A
B
C
D
E
F
G
H
I

Az MBH Bank személyi kölcsön ajánlata

Fizetett hirdetés
1 millió Ft
6 évre
20 585 Ft/hó
THM: 14.5%
Részletek →
2 millió Ft
6 évre
41 169 Ft/hó
THM: 14.5%
Részletek →
3 millió Ft
6 évre
61 754 Ft/hó
THM: 14.5%
Részletek →

A tájékoztatás nem teljes körű és nem minősül ajánlattételnek.

Az ingatlan leírása

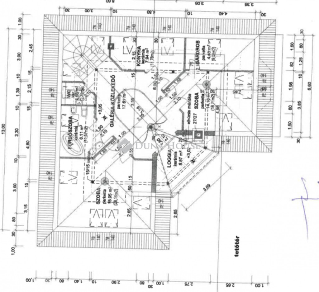
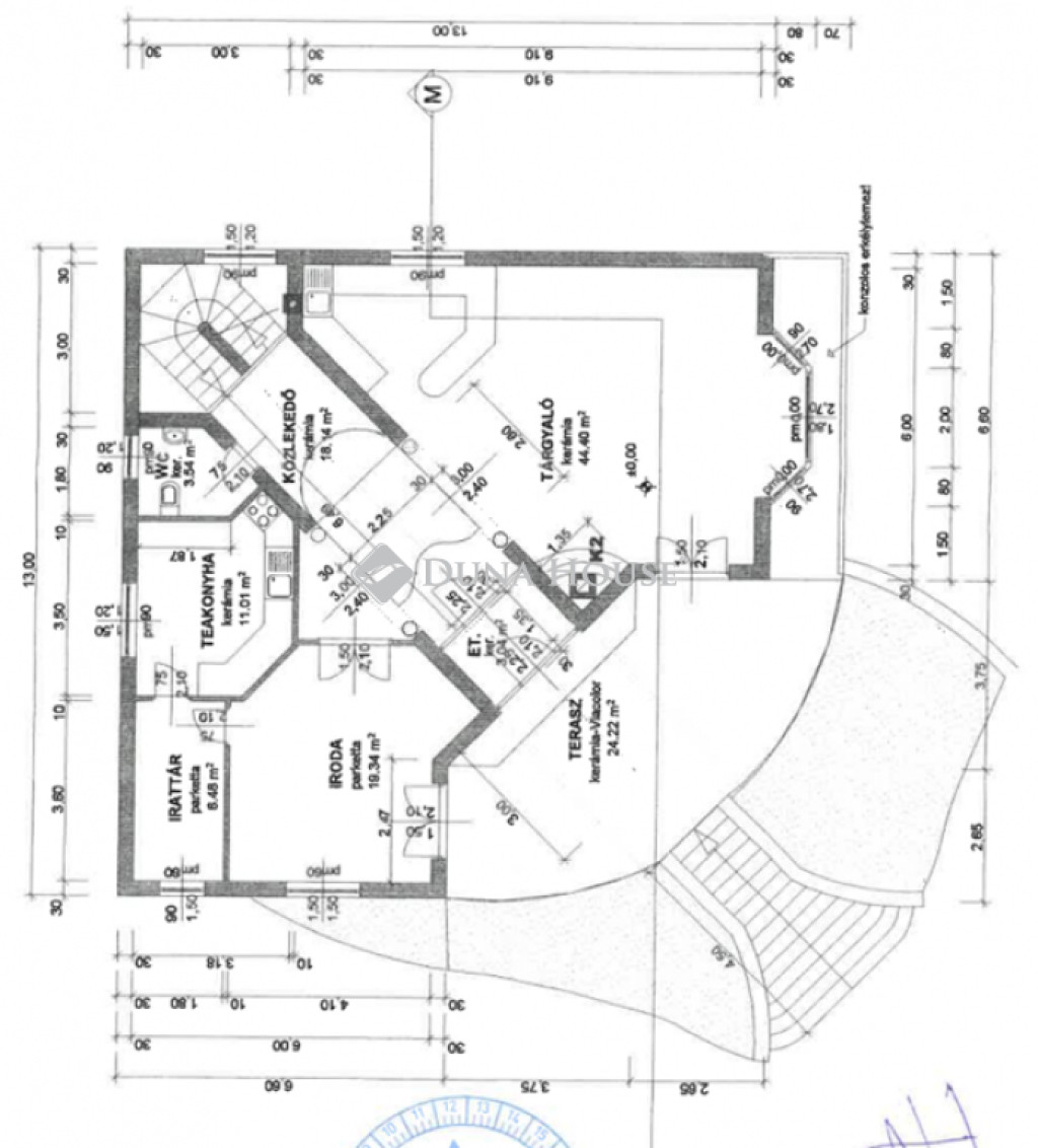
BUDAKESZI- MAKKOSMÁRIA - ELADÓ HÁROMSZINTES PANORÁMÁS CSALÁDI HÁZBudakeszi legkeresettebb részén, Makkosmária frekventált, mégis csendes környezetében kínálunk eladásra egy kiváló adottságokkal rendelkező, háromszintes családi házat. Az ingatlan elhelyezkedése optimális egyensúlyt teremt a természetközeli nyugalom és a városi infrastruktúra elérhetősége között.Az ingatlan paraméterei és elrendezése:A ház bruttó 344 m² alapterületű, melyből a hasznos nettó lakótér 253 m².Az épület belső kialakítását a tágas, jól benapozott terek és a funkcionális térelosztás jellemzi.Pince és kiszolgáló szint: Itt kapott helyet a tágas, KÉTÁLLÁSOS GARÁZS, valamint egy SZAUNAA szinten található továbbá egy nagyméretű, rugalmasan hasznosítható helyiség, amely alkalmas fitneszszoba, hobbihelyiség vagy tároló kialakítására.Földszint: A közösségi élet központja a nagyméretű nappali, amely közvetlen kapcsolatban áll az amerikai konyhás étkezővel. Ezen a szinten található egy napfényes dolgozószoba, fürdőszoba, külön mellékhelyiség és egy háztartási helyiség is. A nappaliból egy nagyméretű teraszra jutunk ki.Tetőtér: A privát szférát két nagyméretű hálószoba, gardrób, valamint fürdő és mellékhelyiség biztosítja. A felső szintről nyíló erkély, a teraszhoz hasonlóan, zavartalan panorámát nyújt a környező tájra.Kert és extrákAz ingatlan egy gondozott, parkosított kerten keresztül közelíthető meg, amelynek fenntartását automata öntözőrendszer segíti. Az épület szerkezeti állapota és a belső terek méretei ideális alapot nyújtanak nagyobb családok számára, vagy azoknak, akik reprezentatív otthont keresnek a budai agglomerációban.Főbb jellemzők összefoglalva:Helyszín: Budakeszi-Makkosmária (kiemelt övezet)Alapterület: 253 m² nettó / 344 m² bruttóSzobaszám: Nappali + 3 szoba (bővíthető)Kényelmi funkciók: Szauna, fitnesz helyiség, kétállásos garázs, panorámás teraszok.További információkért és a megtekintéssel kapcsolatban keressen bizalommal!

Térkép

A hirdető elérhetősége

Miru Szilvia

Miru Szilvia
+36 20 935