Eladó Ház- házrész
Hirdetéskód: 9294711
OTP Ingatlanpont - Budapest IX. ker., Üllői út 21.
Felújításhoz személyi kölcsönt keres? Kalkuláljon itt! →450.00 m2
ALAPTERÜLET10
SZOBASZÁMnincs megadva
ÉPÍTÉSnincs megadva
FŰTÉS- CSOK igénybe vehető nem
- Tetőtér beépíthető nem
- Építés éve 2005
- Klíma nem
- Szigetelt nem
A+++
A++
A+
A
B
C
D
E
F
G
H
I
Az ingatlan leírása
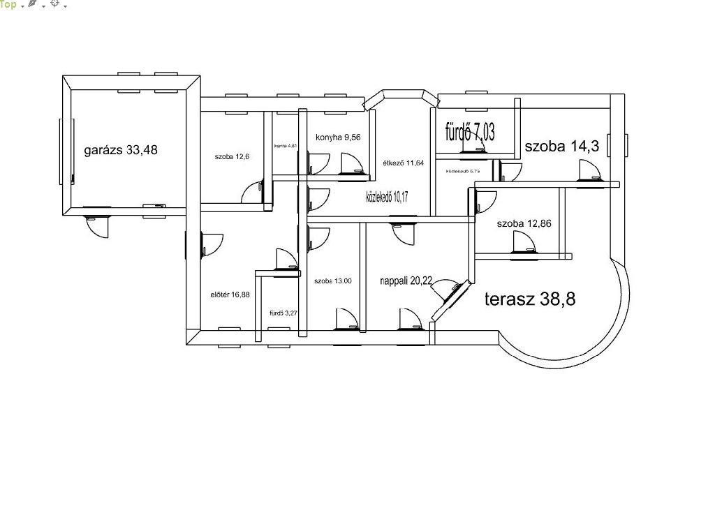
Eladó családi ház Budakeszin, tágas telekkel és fejlesztési lehetőséggel!
Cím: Budakeszi
Telekméret: 861 m2
Építés éve: 2005
Szerkezet: tégla
Főbb jellemzők:
Falazat: 40 cm vastag tégla.
Tető: cserép fedésű, nem beázott, nem penészes.
Kémény: bélelt.
Nyílászárók: modern, 2 rétegű műanyag ablakok.
Szigetelés: 15 cm vastag homlokzati hőszigetelés.
Közművek: minden közmű rendelkezésre áll.
Gázóra: telken belül.
Villanyóra: a ház falán.
Vízóra: vízaknában.
Napelem: nincs.
Pince: az épület alatt található.
Garázs: 2 autó számára.
Előkert: rendezett, zöldterülettel.
Hátsó kert: családias, gondozott.
Tetőtér: teljesen beépíthető, további helyiségek kialakíthatók.
Többgenerációs és üzleti lehetőségek:
Az ingatlan háromgenerációs együttélésre is kiválóan alkalmas, tágas elrendezése és több szintje miatt. Több lakásra is bontható.
A földszint tökéletesen megfelel munkahelyiségek, rendelők vagy irodák kialakítására, például:
pszichológusi szoba, könyvelői iroda, orvosi rendelő, vagy akár home office célra.
A tetőtér teljes beépítésével további szobák, fürdőszoba vagy külön lakrész alakítható ki, így a ház bővítési és funkcionális fejlesztési potenciállal rendelkezik.
Állapot és dokumentáció:
Az ingatlan egy ütemben épült, az építési engedélyek rendben vannak.
Tehermentes.
Egy tulajdonosa van.
Stabil, jól karbantartott épület, amely kazáncserével és kisebb korszerűsítéssel hosszú távon kényelmes, energiatakarékos otthonná tehető.
Környezeti jellemzők:
Az ingatlan Budakeszi egyik legkedveltebb, csendes és biztonságos utcájában található.
A Budai Tájvédelmi Körzet közelsége miatt a levegő tiszta, a környék kiválóan alkalmas kirándulásra, futásra és szabadtéri pihenésre.
A környéken nincs nagyfeszültségű vezeték, gyár, szemétégető, szennyvíztelep vagy vasútvonal.
Iskolák, óvodák, gyógyszertár, boltok, orvosi rendelő gyalogosan is elérhetők.
Tömegközlekedés: a 22es és 222es BKK buszjáratokkal Budapest Széll Kálmán tér 25, 30 perc alatt megközelíthető.
Autóval: a Budakeszi út vagy az M1,M7 autópályákon keresztül Budapest gyorsan elérhető.
A környék nyugodt, zöld és családbarát, így ideális választás mind családoknak, mind vállalkozóknak, akik otthoni munkavégzésre is alkalmas ingatlant keresnek.
Összegzés:
Ez az ingatlan kiváló lehetőséget kínál azok számára, akik:
többgenerációs családi házat keresnek, vállalkozásukat otthonról szeretnék működtetni, vagy befektetési céllal keresnek jól alakítható, értékálló budakeszi ingatlant.
Cím: Budakeszi
Telekméret: 861 m2
Építés éve: 2005
Szerkezet: tégla
Főbb jellemzők:
Falazat: 40 cm vastag tégla.
Tető: cserép fedésű, nem beázott, nem penészes.
Kémény: bélelt.
Nyílászárók: modern, 2 rétegű műanyag ablakok.
Szigetelés: 15 cm vastag homlokzati hőszigetelés.
Közművek: minden közmű rendelkezésre áll.
Gázóra: telken belül.
Villanyóra: a ház falán.
Vízóra: vízaknában.
Napelem: nincs.
Pince: az épület alatt található.
Garázs: 2 autó számára.
Előkert: rendezett, zöldterülettel.
Hátsó kert: családias, gondozott.
Tetőtér: teljesen beépíthető, további helyiségek kialakíthatók.
Többgenerációs és üzleti lehetőségek:
Az ingatlan háromgenerációs együttélésre is kiválóan alkalmas, tágas elrendezése és több szintje miatt. Több lakásra is bontható.
A földszint tökéletesen megfelel munkahelyiségek, rendelők vagy irodák kialakítására, például:
pszichológusi szoba, könyvelői iroda, orvosi rendelő, vagy akár home office célra.
A tetőtér teljes beépítésével további szobák, fürdőszoba vagy külön lakrész alakítható ki, így a ház bővítési és funkcionális fejlesztési potenciállal rendelkezik.
Állapot és dokumentáció:
Az ingatlan egy ütemben épült, az építési engedélyek rendben vannak.
Tehermentes.
Egy tulajdonosa van.
Stabil, jól karbantartott épület, amely kazáncserével és kisebb korszerűsítéssel hosszú távon kényelmes, energiatakarékos otthonná tehető.
Környezeti jellemzők:
Az ingatlan Budakeszi egyik legkedveltebb, csendes és biztonságos utcájában található.
A Budai Tájvédelmi Körzet közelsége miatt a levegő tiszta, a környék kiválóan alkalmas kirándulásra, futásra és szabadtéri pihenésre.
A környéken nincs nagyfeszültségű vezeték, gyár, szemétégető, szennyvíztelep vagy vasútvonal.
Iskolák, óvodák, gyógyszertár, boltok, orvosi rendelő gyalogosan is elérhetők.
Tömegközlekedés: a 22es és 222es BKK buszjáratokkal Budapest Széll Kálmán tér 25, 30 perc alatt megközelíthető.
Autóval: a Budakeszi út vagy az M1,M7 autópályákon keresztül Budapest gyorsan elérhető.
A környék nyugodt, zöld és családbarát, így ideális választás mind családoknak, mind vállalkozóknak, akik otthoni munkavégzésre is alkalmas ingatlant keresnek.
Összegzés:
Ez az ingatlan kiváló lehetőséget kínál azok számára, akik:
többgenerációs családi házat keresnek, vállalkozásukat otthonról szeretnék működtetni, vagy befektetési céllal keresnek jól alakítható, értékálló budakeszi ingatlant.