Eladó Ház- házrész
Hirdetéskód: 9320882
Fővállalkozó Balla és Balla Kft
Felújításhoz személyi kölcsönt keres? Kalkuláljon itt! →240.00 m2
ALAPTERÜLET6
SZOBASZÁMnincs megadva
ÉPÍTÉSnincs megadva
FŰTÉS- CSOK igénybe vehető nem
- Tetőtér beépíthető nem
- Építés éve 1988
- Klíma nem
- Szigetelt nem
A+++
A++
A+
A
B
C
D
E
F
G
H
I
Az ingatlan leírása
BUDAKESZIN, CSODÁS KÖRNYEZETBEN, A VADASPARK KÖZELÉBEN, VÁRJA ÚJ LAKÓIT, EGY, TÁGAS, HANGULATOS, NAPFÉNYES, KÉTGENERÁCIÓS CSALÁDI HÁZ!
Budakeszi egyik közkedvelt részén, a Barackosban, közel a Vadasparkhoz, kínálok megvételre, jó állapotú, kétgenerációs háromszintes családi házat, némi panorámával.
A ház egy gyönyörűségesen, szépen gondozott nagy telken helyezkedik el, a felső szintjéről pedig némi panorámát is láthatunk.
A földszinten kapott helyet a mosókonyha, mosdóval, WC-vel és zuhanyzóval, valamint itt található a vegyes tüzelésű kazánház is.
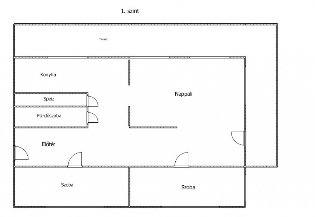
Az első lakószinten, ahonnan a terasz is nyílik, egy amerikai konyhás nappalit, két hálószobát egy kádas fürdőszobát WC-vel és egy kamrát alakítottak ki.
A második lakószinten találunk egy nappalit, két hálószobát, egy fürdőszobát WC-vel és kis hangszigetelt szoba is ki lett alakítva.
A ház 1980-ban épült és 1998- ban történt némi felújítás is.
A közlekedés jó, rövid sétával elérhető 222-es busz végállomása a Széll Kálmán tér felé és a 188- as busz a Kelenföldi Pályaudvar felé.
Itt megtalálható az iskola, óvoda bölcsőde, SPAR és a Hargitay András tanuszoda is.
Minden korosztály számára ajánlom, aki szereti a természet közelségét élvezni és feltöltődni a hétköznapokban is.
Várom hívását bármely napon, akár az esti órákban is.
Budakeszi egyik közkedvelt részén, a Barackosban, közel a Vadasparkhoz, kínálok megvételre, jó állapotú, kétgenerációs háromszintes családi házat, némi panorámával.
A ház egy gyönyörűségesen, szépen gondozott nagy telken helyezkedik el, a felső szintjéről pedig némi panorámát is láthatunk.
A földszinten kapott helyet a mosókonyha, mosdóval, WC-vel és zuhanyzóval, valamint itt található a vegyes tüzelésű kazánház is.
Az első lakószinten, ahonnan a terasz is nyílik, egy amerikai konyhás nappalit, két hálószobát egy kádas fürdőszobát WC-vel és egy kamrát alakítottak ki.
A második lakószinten találunk egy nappalit, két hálószobát, egy fürdőszobát WC-vel és kis hangszigetelt szoba is ki lett alakítva.
A ház 1980-ban épült és 1998- ban történt némi felújítás is.
A közlekedés jó, rövid sétával elérhető 222-es busz végállomása a Széll Kálmán tér felé és a 188- as busz a Kelenföldi Pályaudvar felé.
Itt megtalálható az iskola, óvoda bölcsőde, SPAR és a Hargitay András tanuszoda is.
Minden korosztály számára ajánlom, aki szereti a természet közelségét élvezni és feltöltődni a hétköznapokban is.
Várom hívását bármely napon, akár az esti órákban is.