Eladó Ház- házrész
Hirdetéskód: 9221402
Budapest III. kerület Kerék utca 30 - OTP Ingatlanpont Iroda
155 m2
ALAPTERÜLET6
SZOBASZÁMnincs megadva
ÉPÍTÉSGáz (cirkó)
FŰTÉS- CSOK igénybe vehető nem
- Belső szintek 2
- Tetőtér beépíthető nem
- Építés éve 2025
- Fűtés Gáz (cirkó)
- Klíma nem
- Szigetelt nem
A+++
A++
A+
A
B
C
D
E
F
G
H
I
Az ingatlan leírása
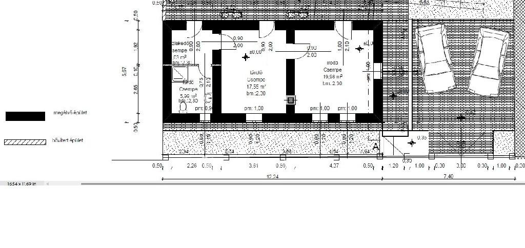
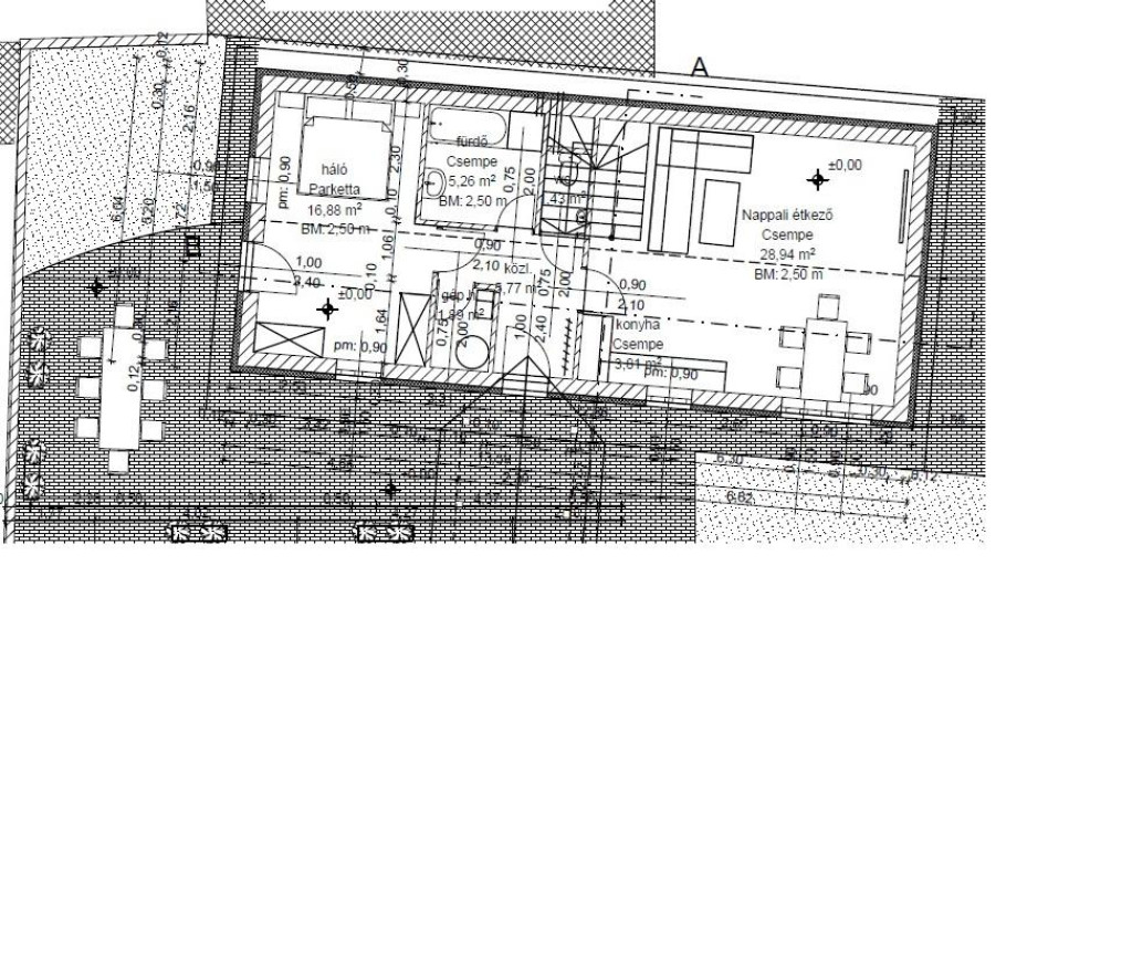
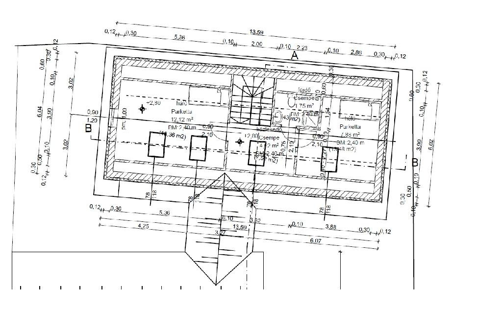
Eladó Budakalász középontjában egy 388 m2 es telken fekvő 2 ingatlanból álló lakóegység!!
1. korábbi meglévő kő és tégla épület teljesen újra gondolva, modernizálva, melynek mérete 49 m2, kategóriáját tekintve iroda, lakhatásra alkalmas / kialakitott.
2. teljesen új kétszintes épület, Porotherm téglából épült családi ház, mérete: 105,8 m2, kategóriáját tekintve, lakóház
Gépkocsi tárolására épületenként egy 1-1 felszini parkoló biztositott.
Mindkét ingatlan kölön is megvásárolható, természetesen ügyvédi megosztási szerződéssel.
- klímaelőkészités
- tartalmazza a burkolatok és szaniterek választhatóak egyaránt
- 3 rétegű hőszigetelt nyílászárók
- új tetőszerkezet és cserépboritással, hőszigeteléssel ellátva
- szigetelt falazat
- új fűtési rendszer, a régi épületben cirkó, és padlófűtés
- új épületben hőszivattyú, és padlófűtés
Várható befejezés 2026 I. negyedévben.
Ellátottsága kiváló:
Hév, iskola, élelmiszerbolt, orvosi rendelő a közelben.
1. korábbi meglévő kő és tégla épület teljesen újra gondolva, modernizálva, melynek mérete 49 m2, kategóriáját tekintve iroda, lakhatásra alkalmas / kialakitott.
2. teljesen új kétszintes épület, Porotherm téglából épült családi ház, mérete: 105,8 m2, kategóriáját tekintve, lakóház
Gépkocsi tárolására épületenként egy 1-1 felszini parkoló biztositott.
Mindkét ingatlan kölön is megvásárolható, természetesen ügyvédi megosztási szerződéssel.
- klímaelőkészités
- tartalmazza a burkolatok és szaniterek választhatóak egyaránt
- 3 rétegű hőszigetelt nyílászárók
- új tetőszerkezet és cserépboritással, hőszigeteléssel ellátva
- szigetelt falazat
- új fűtési rendszer, a régi épületben cirkó, és padlófűtés
- új épületben hőszivattyú, és padlófűtés
Várható befejezés 2026 I. negyedévben.
Ellátottsága kiváló:
Hév, iskola, élelmiszerbolt, orvosi rendelő a közelben.