Eladó Ház- házrész
Hirdetéskód: 9221403
Budapest III. kerület Kerék utca 30 - OTP Ingatlanpont Iroda
Ez a hirdetés megfelelhet a FIX 3%-os programnak.
Tudj meg többet a részletekről itt.
48 m2
ALAPTERÜLET2
SZOBASZÁMnincs megadva
ÉPÍTÉSGáz (cirkó)
FŰTÉS- CSOK igénybe vehető nem
- Belső szintek 1
- Tetőtér beépíthető nem
- Építés éve 2025
- Fűtés Gáz (cirkó)
- Klíma nem
- Szigetelt nem
A+++
A++
A+
A
B
C
D
E
F
G
H
I
Az ingatlan leírása
Eladó Budakalász középontjában egy 188 m2 es telken fekvő 1 ingatlanból álló lakóegység megosztási szerződéssel!!
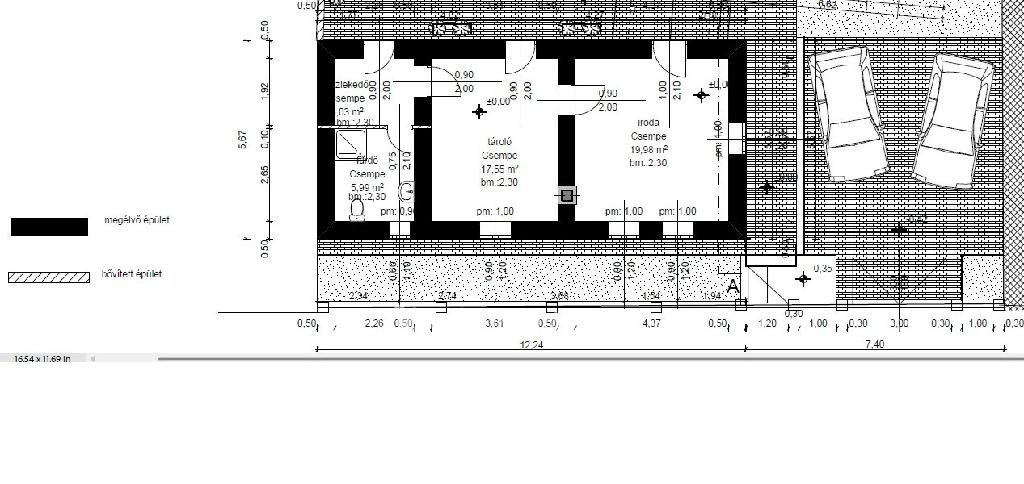
1. korábbi meglévő kő és tégla épület teljesen újra gondolva, modernizálva, melynek mérete 49 m2, 2 szoba, kategóriáját tekintve iroda, lakhatásra alkalmas / kialakitott.
Gépkocsi tárolására épületenként felszini parkoló biztositott.
- klímaelőkészités
- tartalmazza a burkolatok és szaniterek választhatóak egyaránt
- 3 rétegű hőszigetelt nyílászárók
- új tetőszerkezet és cserépboritással, hőszigeteléssel ellátva
- szigetelt falazat
- új fűtési rendszer, a régi épületben cirkó, és padlófűtés
- új épületben hőszivattyú, és padlófűtés
Várható befejezés 2026 I. negyedévben.
Ellátottsága kiváló:
Hév, iskola, élelmiszerbolt, orvosi rendelő a közelben.
1. korábbi meglévő kő és tégla épület teljesen újra gondolva, modernizálva, melynek mérete 49 m2, 2 szoba, kategóriáját tekintve iroda, lakhatásra alkalmas / kialakitott.
Gépkocsi tárolására épületenként felszini parkoló biztositott.
- klímaelőkészités
- tartalmazza a burkolatok és szaniterek választhatóak egyaránt
- 3 rétegű hőszigetelt nyílászárók
- új tetőszerkezet és cserépboritással, hőszigeteléssel ellátva
- szigetelt falazat
- új fűtési rendszer, a régi épületben cirkó, és padlófűtés
- új épületben hőszivattyú, és padlófűtés
Várható befejezés 2026 I. negyedévben.
Ellátottsága kiváló:
Hév, iskola, élelmiszerbolt, orvosi rendelő a közelben.