Eladó Ház- házrész
Hirdetéskód: 9233783
Newex Ingatlaniroda
Ez a hirdetés megfelelhet a FIX 3%-os programnak.
Tudj meg többet a részletekről itt.
85 m2
ALAPTERÜLET3
SZOBASZÁMnincs megadva
ÉPÍTÉSGáz (konvektor)
FŰTÉS- Belső szintek 1
- Építés éve 1966
- Fűtés Gáz (konvektor)
A+++
A++
A+
A
B
C
D
E
F
G
H
I
Az ingatlan leírása
Eladásra kínálunk egy 85 m²-es, bővített családi házat Miskolctól mindössze 22 km-re, Edelény közelében, csendes és nyugodt környezetben. Az ingatlan kiváló választás mindazok számára, akik szeretnék élvezni a természet közelségét és a vidéki élet kényelmét, ugyanakkor fontos számukra a városok gyors és egyszerű megközelíthetősége.
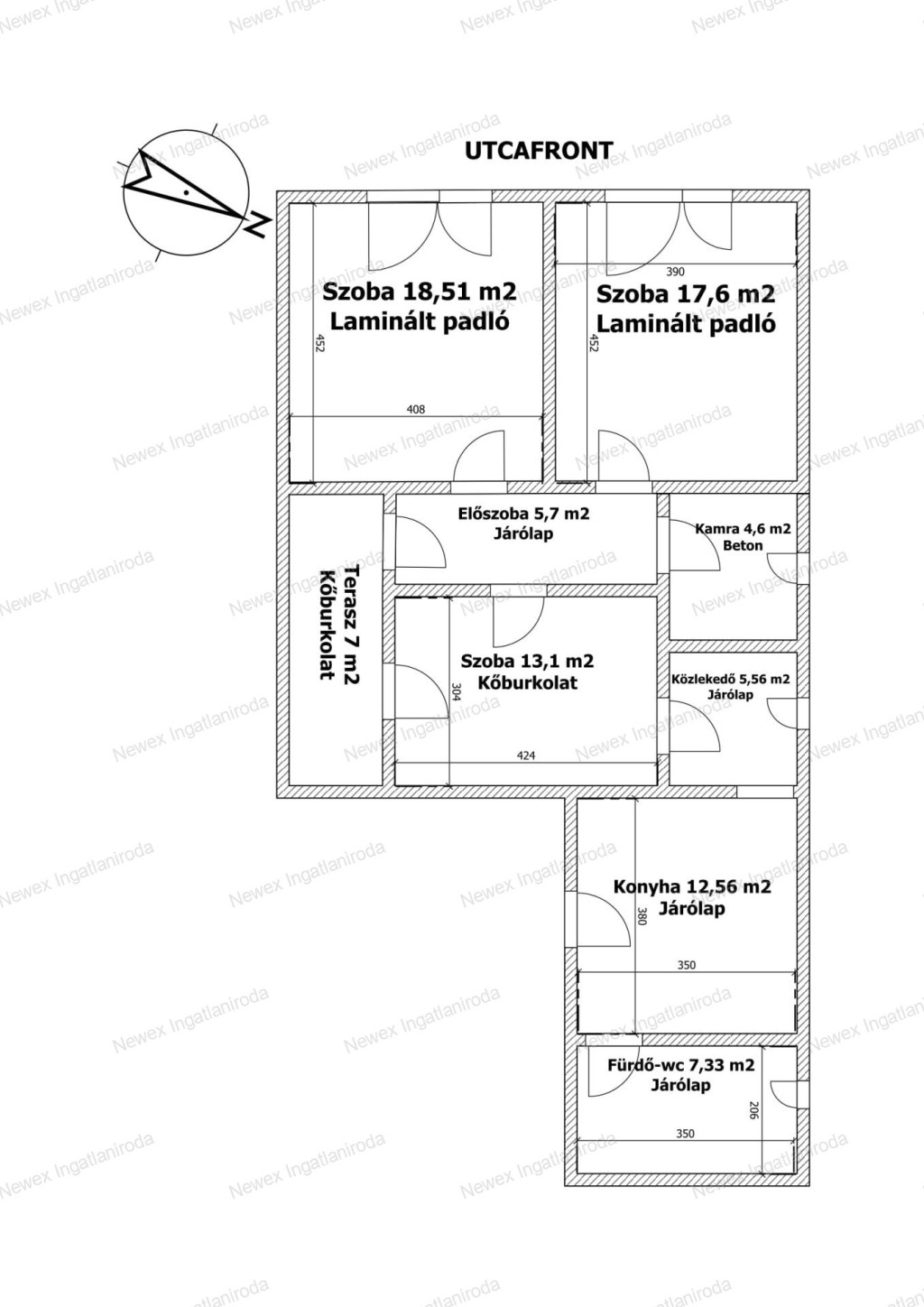
A ház elosztása átgondolt és praktikus: három külön bejáratú szoba, előszoba, kamra és közlekedő biztosítják a jól használható tereket. Az épület eredetileg klasszikus „kádár kocka” kialakítással épült, későbbi bővítéssel azonban tágas konyha, fürdőszoba WC-vel, pince és tároló is helyet kapott, ezzel növelve az ingatlan értékét és komfortját.
A korszerűsítések során modern műanyag nyílászárók kerültek beszerelésre. A fűtésről gázkonvektorok gondoskodnak, a melegvíz ellátást villanybojler biztosítja. Az udvar rendezett és gondozott, ahol több termő gyümölcsfa is megtalálható. A telken garázs is rendelkezésre áll, amely további gyakorlati előnyt jelent.
Ez az ingatlan ideális lehet mindazok számára, akik szeretnének kiszakadni a város zajából, de nem szeretnének lemondani a könnyű megközelíthetőségről. Miskolc és Edelény közelsége miatt a lokáció kifejezetten kedvező.
Jöjjön el, tekintse meg személyesen, és fedezze fel, milyen otthont alakíthat ki ebből a barátságos, jó adottságokkal rendelkező házból.
A ház elosztása átgondolt és praktikus: három külön bejáratú szoba, előszoba, kamra és közlekedő biztosítják a jól használható tereket. Az épület eredetileg klasszikus „kádár kocka” kialakítással épült, későbbi bővítéssel azonban tágas konyha, fürdőszoba WC-vel, pince és tároló is helyet kapott, ezzel növelve az ingatlan értékét és komfortját.
A korszerűsítések során modern műanyag nyílászárók kerültek beszerelésre. A fűtésről gázkonvektorok gondoskodnak, a melegvíz ellátást villanybojler biztosítja. Az udvar rendezett és gondozott, ahol több termő gyümölcsfa is megtalálható. A telken garázs is rendelkezésre áll, amely további gyakorlati előnyt jelent.
Ez az ingatlan ideális lehet mindazok számára, akik szeretnének kiszakadni a város zajából, de nem szeretnének lemondani a könnyű megközelíthetőségről. Miskolc és Edelény közelsége miatt a lokáció kifejezetten kedvező.
Jöjjön el, tekintse meg személyesen, és fedezze fel, milyen otthont alakíthat ki ebből a barátságos, jó adottságokkal rendelkező házból.