Eladó Ház- házrész
Hirdetéskód: 9261224
OC-Nagykanizsa, Fő út 5.
Felújításhoz személyi kölcsönt keres? Kalkuláljon itt! →
Ez a hirdetés megfelelhet a FIX 3%-os programnak.
Tudj meg többet a részletekről itt.
664.00 m2
ALAPTERÜLET12
SZOBASZÁMnincs megadva
ÉPÍTÉSGáz (cirkó)
FŰTÉS- CSOK igénybe vehető nem
- Tetőtér beépíthető nem
- Építés éve 2006
- Fűtés Gáz (cirkó)
- Klíma nem
- Szigetelt nem
A+++
A++
A+
A
B
C
D
E
F
G
H
I
Az ingatlan leírása
Fedezze fel ezt a különleges lehetőséget Borsfán, Zala vármegyében, ahol ez a befektetésnek is alkalmas ház várja új tulajdonosát. Ez az ingatlan nem csupán egy otthon, hanem egy életstílus, amely lehetőséget biztosít a nyugodt vidéki élet biztosítására. Akár családi vállalkozásnak is kiváló befektetés vagy panzió, vadászház üzemeltetésére.
A ház alapterülete 664 négyzetméter, amely 12 szobával és 11 fürdőszobával rendelkezik, így bőséges teret biztosít családja számára, vagy akár befektetési célokra is kiválóan alkalmas. A telek mérete lenyűgöző, 37590 négyzetméter, amely rengeteg lehetőséget kínál. A terasz mérete 16 négyzetméter, ahol élvezheti a szabadban eltöltött időt, míg a panoráma lenyűgöző kilátást nyújt a környező tájra.
Az ingatlan állapota átlagos, így a leendő tulajdonos saját ízlése szerint alakíthatja át. A ház fűtése gáz cirkó, padlófűtéssel és radiátorokkal, illetve két kandalló is szolgáltatja a meleget. Az ingatlan hűtése klímával biztosított, így a komfortérzet garantált.
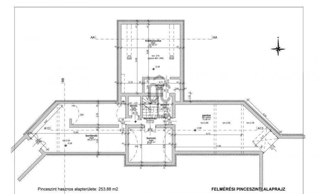
A pinceszinten több autónak garázs nyújt parkolási lehetőséget. Ezen a szinten még kazánház, közlekedő, borospince, tároló, hobbyszoba kerültek kialakításra.
16 m2-es fedett teraszon keresztül jutunk be a 32,9 m2-es nappaliba, földszinten még 4 szoba, közlekedő, 4 fürdőszoba-WC, konyha, valamint a külön lakrészben nappali-étkezővel, terasz, közlekedő, gardrób, zuhanyzó-WC helyiségek kerültek kialakításra.
Az emeleten 5 szoba, 5 fürdőszoba, galéria, a külön lakrészben 3 szoba, előtér, 2 fürdőszoba-WC-vel található.
Borsfa egy csendes, biztonságos település, amely ideális választás a családok számára. A környék zöldövezeti jellege és a barátságos szomszédság egyedülálló atmoszférát teremt. A közlekedési lehetőségek is kedvezőek, hiszen a település jól megközelíthető autóval. Az ingatlan nemcsak lakóhelyként, hanem befektetési lehetőségként is vonzó, hiszen a terület fejlődése és a környező látnivalók, mint például a közeli természetvédelmi területek, valamint a helyi szolgáltatások, mind hozzájárulnak az ingatlan értékének növekedéséhez. Az ingatlan sokoldalúsága lehetővé teszi, hogy különböző funkciókat betöltsön, legyen szó családi otthonról, vendégházról vagy akár nyaralóról. Amennyiben felkeltette az érdeklődését ez a páratlan ingatlan, ne habozzon, keressen bizalommal! Szívesen válaszolok kérdéseire, és segítek Önnek megtalálni álmai otthonát vagy befektetését. Az ingatlanpiac folyamatosan változik, így érdemes mihamarabb lépni!
Az energetikai tanúsítvány készítése folyamatban van, amint rendelkezésre áll, úgy azzal a hirdetés frissítésre kerül.
A ház alapterülete 664 négyzetméter, amely 12 szobával és 11 fürdőszobával rendelkezik, így bőséges teret biztosít családja számára, vagy akár befektetési célokra is kiválóan alkalmas. A telek mérete lenyűgöző, 37590 négyzetméter, amely rengeteg lehetőséget kínál. A terasz mérete 16 négyzetméter, ahol élvezheti a szabadban eltöltött időt, míg a panoráma lenyűgöző kilátást nyújt a környező tájra.
Az ingatlan állapota átlagos, így a leendő tulajdonos saját ízlése szerint alakíthatja át. A ház fűtése gáz cirkó, padlófűtéssel és radiátorokkal, illetve két kandalló is szolgáltatja a meleget. Az ingatlan hűtése klímával biztosított, így a komfortérzet garantált.
A pinceszinten több autónak garázs nyújt parkolási lehetőséget. Ezen a szinten még kazánház, közlekedő, borospince, tároló, hobbyszoba kerültek kialakításra.
16 m2-es fedett teraszon keresztül jutunk be a 32,9 m2-es nappaliba, földszinten még 4 szoba, közlekedő, 4 fürdőszoba-WC, konyha, valamint a külön lakrészben nappali-étkezővel, terasz, közlekedő, gardrób, zuhanyzó-WC helyiségek kerültek kialakításra.
Az emeleten 5 szoba, 5 fürdőszoba, galéria, a külön lakrészben 3 szoba, előtér, 2 fürdőszoba-WC-vel található.
Borsfa egy csendes, biztonságos település, amely ideális választás a családok számára. A környék zöldövezeti jellege és a barátságos szomszédság egyedülálló atmoszférát teremt. A közlekedési lehetőségek is kedvezőek, hiszen a település jól megközelíthető autóval. Az ingatlan nemcsak lakóhelyként, hanem befektetési lehetőségként is vonzó, hiszen a terület fejlődése és a környező látnivalók, mint például a közeli természetvédelmi területek, valamint a helyi szolgáltatások, mind hozzájárulnak az ingatlan értékének növekedéséhez. Az ingatlan sokoldalúsága lehetővé teszi, hogy különböző funkciókat betöltsön, legyen szó családi otthonról, vendégházról vagy akár nyaralóról. Amennyiben felkeltette az érdeklődését ez a páratlan ingatlan, ne habozzon, keressen bizalommal! Szívesen válaszolok kérdéseire, és segítek Önnek megtalálni álmai otthonát vagy befektetését. Az ingatlanpiac folyamatosan változik, így érdemes mihamarabb lépni!
Az energetikai tanúsítvány készítése folyamatban van, amint rendelkezésre áll, úgy azzal a hirdetés frissítésre kerül.