Eladó Ház- házrész
Hirdetéskód: 9261131
OC-Nagykanizsa, Fő út 5.
664.00 m2
ALAPTERÜLET12
SZOBASZÁMnincs megadva
ÉPÍTÉSnincs megadva
FŰTÉS- CSOK igénybe vehető nem
- Tetőtér beépíthető nem
- Építés éve 2006
- Klíma nem
- Szigetelt nem
A+++
A++
A+
A
B
C
D
E
F
G
H
I
Az ingatlan leírása
Fedezze fel ezt a különleges lehetőséget Borsfán, Zala vármegyében, ahol ez a befektetésnek is alkalmas ház várja új tulajdonosát. Ez az ingatlan nem csupán egy otthon, hanem egy életstílus, amely lehetőséget biztosít a nyugodt vidéki élet biztosítására. Akár családi vállalkozásnak is kiváló befektetés vagy panzió, vadászház üzemeltetésére.
A ház alapterülete 664 négyzetméter, amely 12 szobával és 11 fürdőszobával rendelkezik, így bőséges teret biztosít családja számára, vagy akár befektetési célokra is kiválóan alkalmas. A telek mérete lenyűgöző, 37590 négyzetméter, amely rengeteg lehetőséget kínál. A terasz mérete 16 négyzetméter, ahol élvezheti a szabadban eltöltött időt, míg a panoráma lenyűgöző kilátást nyújt a környező tájra.
Az ingatlan állapota átlagos, így a leendő tulajdonos saját ízlése szerint alakíthatja át. A ház fűtése gáz cirkó, padlófűtéssel és radiátorokkal, illetve két kandalló is szolgáltatja a meleget. Az ingatlan hűtése klímával biztosított, így a komfortérzet garantált.
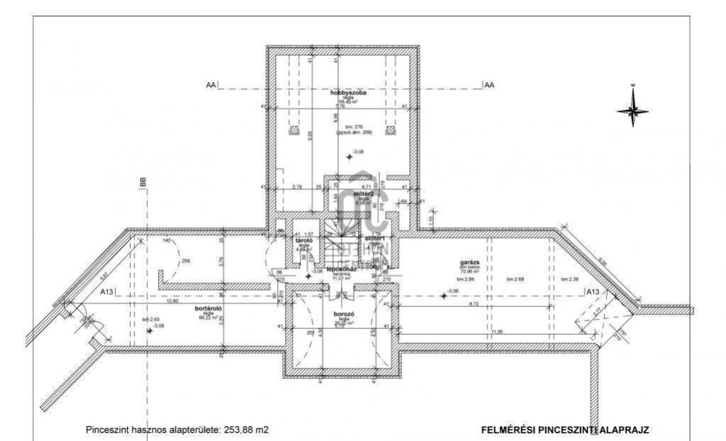
A pinceszinten több autónak garázs nyújt parkolási lehetőséget. Ezen a szinten még kazánház, közlekedő, borospince, tároló, hobbyszoba kerültek kialakításra.
16 m2-es fedett teraszon keresztül jutunk be a 32,9 m2-es nappaliba, földszinten még 4 szoba, közlekedő, 4 fürdőszoba-WC, konyha, valamint a külön lakrészben nappali-étkezővel, terasz, közlekedő, gardrób, zuhanyzó-WC helyiségek kerültek kialakításra.
Az emeleten 5 szoba, 5 fürdőszoba, galéria, a külön lakrészben 3 szoba, előtér, 2 fürdőszoba-WC-vel található.
Borsfa egy csendes, biztonságos település, amely ideális választás a családok számára. A környék zöldövezeti jellege és a barátságos szomszédság egyedülálló atmoszférát teremt. A közlekedési lehetőségek is kedvezőek, hiszen a település jól megközelíthető autóval. Az ingatlan nemcsak lakóhelyként, hanem befektetési lehetőségként is vonzó, hiszen a terület fejlődése és a környező látnivalók, mint például a közeli természetvédelmi területek, valamint a helyi szolgáltatások, mind hozzájárulnak az ingatlan értékének növekedéséhez. Az ingatlan sokoldalúsága lehetővé teszi, hogy különböző funkciókat betöltsön, legyen szó családi otthonról, vendégházról vagy akár nyaralóról. Amennyiben felkeltette az érdeklődését ez a páratlan ingatlan, ne habozzon, keressen bizalommal! Szívesen válaszolok kérdéseire, és segítek Önnek megtalálni álmai otthonát vagy befektetését. Az ingatlanpiac folyamatosan változik, így érdemes mihamarabb lépni!
A ház alapterülete 664 négyzetméter, amely 12 szobával és 11 fürdőszobával rendelkezik, így bőséges teret biztosít családja számára, vagy akár befektetési célokra is kiválóan alkalmas. A telek mérete lenyűgöző, 37590 négyzetméter, amely rengeteg lehetőséget kínál. A terasz mérete 16 négyzetméter, ahol élvezheti a szabadban eltöltött időt, míg a panoráma lenyűgöző kilátást nyújt a környező tájra.
Az ingatlan állapota átlagos, így a leendő tulajdonos saját ízlése szerint alakíthatja át. A ház fűtése gáz cirkó, padlófűtéssel és radiátorokkal, illetve két kandalló is szolgáltatja a meleget. Az ingatlan hűtése klímával biztosított, így a komfortérzet garantált.
A pinceszinten több autónak garázs nyújt parkolási lehetőséget. Ezen a szinten még kazánház, közlekedő, borospince, tároló, hobbyszoba kerültek kialakításra.
16 m2-es fedett teraszon keresztül jutunk be a 32,9 m2-es nappaliba, földszinten még 4 szoba, közlekedő, 4 fürdőszoba-WC, konyha, valamint a külön lakrészben nappali-étkezővel, terasz, közlekedő, gardrób, zuhanyzó-WC helyiségek kerültek kialakításra.
Az emeleten 5 szoba, 5 fürdőszoba, galéria, a külön lakrészben 3 szoba, előtér, 2 fürdőszoba-WC-vel található.
Borsfa egy csendes, biztonságos település, amely ideális választás a családok számára. A környék zöldövezeti jellege és a barátságos szomszédság egyedülálló atmoszférát teremt. A közlekedési lehetőségek is kedvezőek, hiszen a település jól megközelíthető autóval. Az ingatlan nemcsak lakóhelyként, hanem befektetési lehetőségként is vonzó, hiszen a terület fejlődése és a környező látnivalók, mint például a közeli természetvédelmi területek, valamint a helyi szolgáltatások, mind hozzájárulnak az ingatlan értékének növekedéséhez. Az ingatlan sokoldalúsága lehetővé teszi, hogy különböző funkciókat betöltsön, legyen szó családi otthonról, vendégházról vagy akár nyaralóról. Amennyiben felkeltette az érdeklődését ez a páratlan ingatlan, ne habozzon, keressen bizalommal! Szívesen válaszolok kérdéseire, és segítek Önnek megtalálni álmai otthonát vagy befektetését. Az ingatlanpiac folyamatosan változik, így érdemes mihamarabb lépni!