Eladó Ház- házrész
Hirdetéskód: 9314247
OC-Zalaegerszeg Eötvös
Felújításhoz személyi kölcsönt keres? Kalkuláljon itt! →
Ez a hirdetés megfelelhet a FIX 3%-os programnak.
Tudj meg többet a részletekről itt.
135.00 m2
ALAPTERÜLET5
SZOBASZÁMnincs megadva
ÉPÍTÉSEgyéb fűtés
FŰTÉS- CSOK igénybe vehető nem
- Tetőtér beépíthető nem
- Építés éve 2026
- Fűtés Egyéb fűtés
- Klíma nem
- Szigetelt nem
A+++
A++
A+
A
B
C
D
E
F
G
H
I
Az ingatlan leírása
Boncodfölde nyugodt, zöld környezetében kínálunk megvételre egy prémium kivitelezésű, átgondolt tervezésű családi házat, amely kiválóan alkalmas akár két generáció együttélésére is.
Az ingatlan különlegessége a praktikus kialakítás: az alsó és a felsőszint önálló bejárattal is rendelkezik, ugyanakkor belső kapcsolattal egy egységes otthonként is használható.
A ház egy 1000 m²-es telken épül, átadása 2026 év végén várható. Masszív, 30 cm-es tégla falazattal és 15 cm-es szigeteléssel készül.
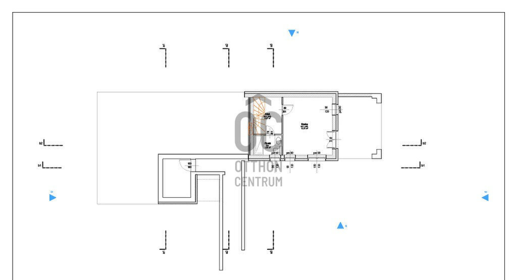
Helyiségek:
- alsó szint: közlekedő, szoba, fürdőszoba
- földszint: 3 szoba, nappali-konyha-étkező, fürdőszoba, külön WC, háztartási helyiség, előszoba, tároló, közlekedő
Kiemelt extrák:
- 3 fedett terasz
- 2 fürdőszoba
- aknás garázs
Műszaki tartalom:
- hőszivattyús fűtés
- fa nyílászárók
- dekoratív, látszó fa gerendás mennyezet
- világos, nagy üvegfelületek
Választható burkolatok:
- hidegburkolat: 10.000 Ft/m²-ig
- melegburkolat: 8.000 Ft/m²-ig
Csendes, természetközeli elhelyezkedés, Zalaegerszeg gyors elérhetőségével.
Ideális választás azoknak, akik egy modern, rugalmasan alakítható otthont keresnek hosszú távra.
További információért keressen bizalommal!
Az energetikai tanúsítvány készítése folyamatban van, amint rendelkezésre áll, úgy azzal a hirdetés frissítésre kerül.
Az ingatlan különlegessége a praktikus kialakítás: az alsó és a felsőszint önálló bejárattal is rendelkezik, ugyanakkor belső kapcsolattal egy egységes otthonként is használható.
A ház egy 1000 m²-es telken épül, átadása 2026 év végén várható. Masszív, 30 cm-es tégla falazattal és 15 cm-es szigeteléssel készül.
Helyiségek:
- alsó szint: közlekedő, szoba, fürdőszoba
- földszint: 3 szoba, nappali-konyha-étkező, fürdőszoba, külön WC, háztartási helyiség, előszoba, tároló, közlekedő
Kiemelt extrák:
- 3 fedett terasz
- 2 fürdőszoba
- aknás garázs
Műszaki tartalom:
- hőszivattyús fűtés
- fa nyílászárók
- dekoratív, látszó fa gerendás mennyezet
- világos, nagy üvegfelületek
Választható burkolatok:
- hidegburkolat: 10.000 Ft/m²-ig
- melegburkolat: 8.000 Ft/m²-ig
Csendes, természetközeli elhelyezkedés, Zalaegerszeg gyors elérhetőségével.
Ideális választás azoknak, akik egy modern, rugalmasan alakítható otthont keresnek hosszú távra.
További információért keressen bizalommal!
Az energetikai tanúsítvány készítése folyamatban van, amint rendelkezésre áll, úgy azzal a hirdetés frissítésre kerül.