Eladó Ház- házrész
Hirdetéskód: 9263951
Eger Kertész utca 25 - OTP Ingatlanpont Iroda
80.00 m2
ALAPTERÜLET2
SZOBASZÁMnincs megadva
ÉPÍTÉSnincs megadva
FŰTÉS- CSOK igénybe vehető nem
- Tetőtér beépíthető nem
- Építés éve 2008
- Klíma nem
- Szigetelt nem
A+++
A++
A+
A
B
C
D
E
F
G
H
I
Az ingatlan leírása
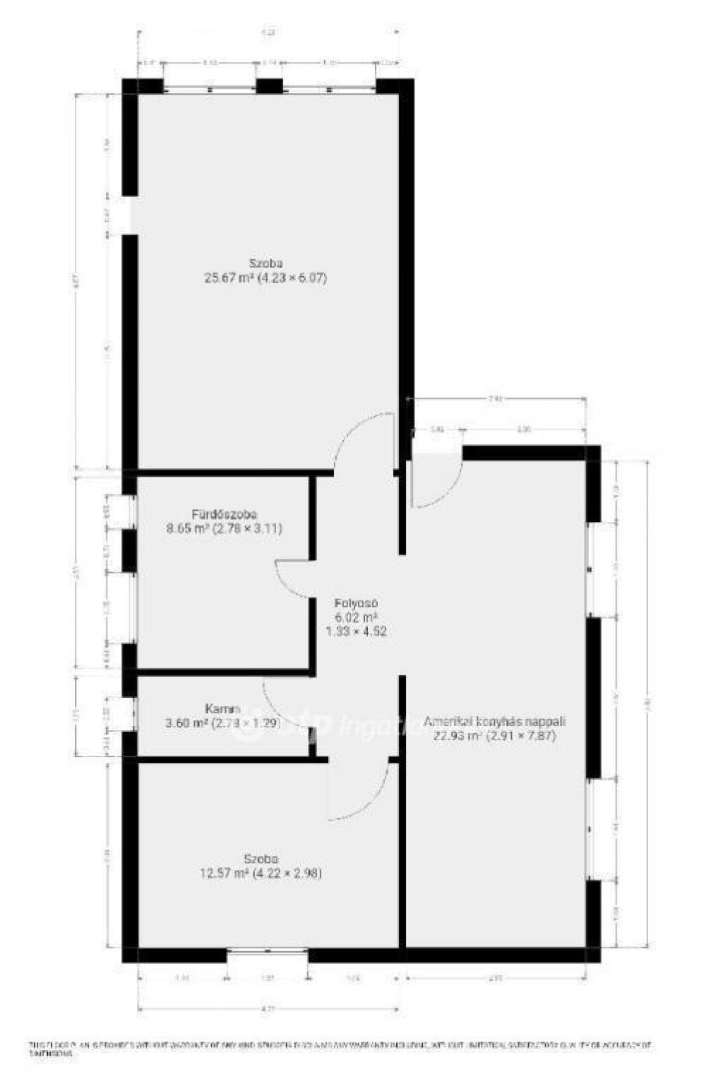
Eladó 80 m2-es, 2 szobás családi ház Bogácson, 566 m2-es telken.
Az ingatlan két szobával, valamint egy tágas, kedvező méretű amerikai konyhás nappalival rendelkezik, amely kényelmes életteret biztosít a mindennapokra. A helyiségek elrendezése praktikus és jól bútorozható.
A fűtést vegyes tüzelésű kazán biztosítja. A ház műanyag nyílászárókkal felszerelt, ami hozzájárul a jobb hőszigeteléshez és az alacsonyabb rezsiköltséghez.
A telek mérete 566 m2, amely alkalmas pihenőkert, kisebb gazdasági udvar vagy kerti funkciók kialakítására.
Az ingatlan ideális választás:
- Állandó lakhatásra.
- Nyaralónak.
- Befektetési célra (Bogács fürdővárosi jellege miatt).
OTP Banki hátterünknek köszönhetően finanszírozási igényekben (pl. Otthon Start Program, Babaváró, Falusi CSOK, CSOK Plusz, Lakáshitel, Személyi kölcsön stb.), illetve biztosítások tekintetében is díjmentesen, soron kívüli ügyintézéssel segítem ügyfeleim! Referenciaszám: M318706
Az ingatlan két szobával, valamint egy tágas, kedvező méretű amerikai konyhás nappalival rendelkezik, amely kényelmes életteret biztosít a mindennapokra. A helyiségek elrendezése praktikus és jól bútorozható.
A fűtést vegyes tüzelésű kazán biztosítja. A ház műanyag nyílászárókkal felszerelt, ami hozzájárul a jobb hőszigeteléshez és az alacsonyabb rezsiköltséghez.
A telek mérete 566 m2, amely alkalmas pihenőkert, kisebb gazdasági udvar vagy kerti funkciók kialakítására.
Az ingatlan ideális választás:
- Állandó lakhatásra.
- Nyaralónak.
- Befektetési célra (Bogács fürdővárosi jellege miatt).
OTP Banki hátterünknek köszönhetően finanszírozási igényekben (pl. Otthon Start Program, Babaváró, Falusi CSOK, CSOK Plusz, Lakáshitel, Személyi kölcsön stb.), illetve biztosítások tekintetében is díjmentesen, soron kívüli ügyintézéssel segítem ügyfeleim! Referenciaszám: M318706