Eladó Ház- házrész
Hirdetéskód: 9290484
Otthon Centrum - Debrecen - Csapó utca
Felújításhoz személyi kölcsönt keres? Kalkuláljon itt! →92.00 m2
ALAPTERÜLET4
SZOBASZÁMnincs megadva
ÉPÍTÉSGáz (cirkó)
FŰTÉS- CSOK igénybe vehető nem
- Tetőtér beépíthető nem
- Építés éve 2026
- Fűtés Gáz (cirkó)
- Klíma nem
- Szigetelt nem
A+++
A++
A+
A
B
C
D
E
F
G
H
I
Az ingatlan leírása
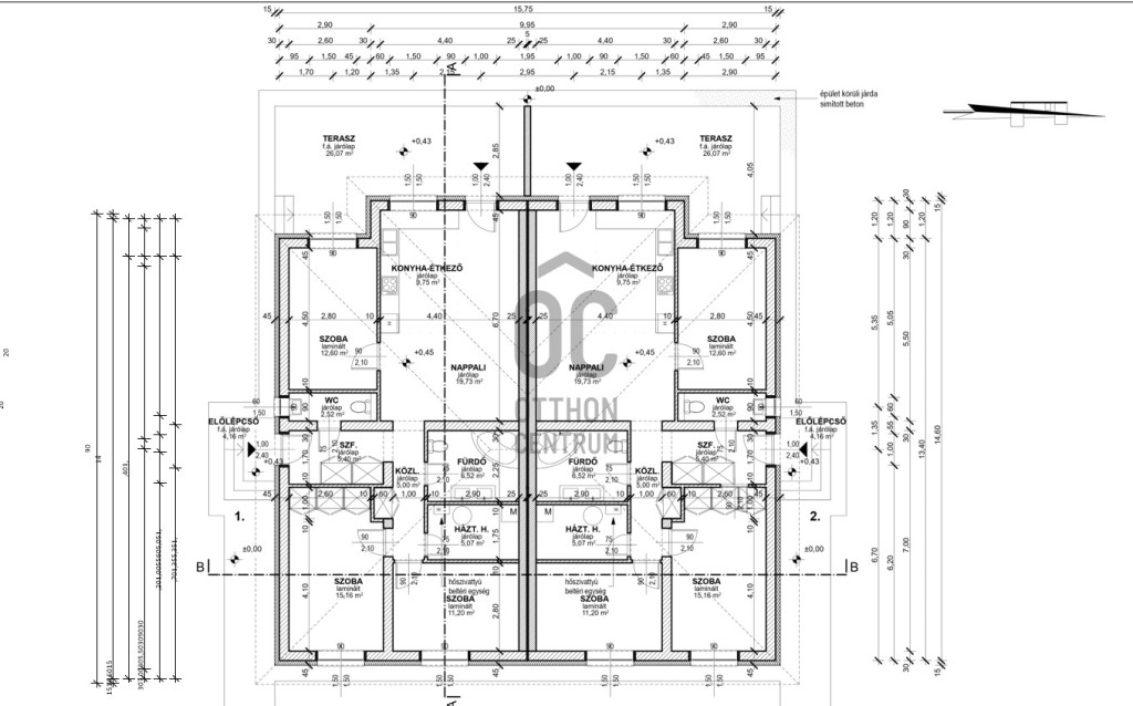
Bocskaikert csendes, nyugodt részén, 570 m²-es telken modern kialakítású, új építésű ikerház épül, amely ideális választás mindazok számára, akik korszerű és energiatakarékos otthont keresnek.
Az ingatlan egy 92,86 m²-es, új építésű, 3 szobás + amerikai konyhás-nappalis ikerház, amely átgondolt térkialakítással és kimagasló műszaki tartalommal valósul meg.
Szerkezet és szigetelés:
- 30 cm-es Porotherm/Leier tégla falazat
- 15 cm homlokzati EPS hőszigetelés
- 10 cm XPS lábazati szigetelés
- 30 cm födémszigetelés
- 3 rétegű üvegezésű, 6 légkamrás műanyag nyílászárók
- A korszerű gépészet és a modern technológia hosszú távon alacsony fenntartási költséget biztosít.
Fűtés és gépészet:
- korszerű padlófűtés, vagy gáz hiányában modern hőszivattyús rendszer
- a vételár része 2 db inverteres klíma
- energiahatékony, alacsony rezsijű működés
- közművek telken belüli csatlakoztatása (amennyiben adott)
- városi víz hiányában házi vízmű
- csatorna hiányában 3 m³-es zárt szennyvíztartály (igény szerint nagyobb kapacitással, felár ellenében)
Az építkezés kezdete: 2026.
A kivitelező az ügyfél igényei szerint is vállalja az építést, akár családi ház kivitelezését is 1141 m²-es telken, 600 000 Ft/m² áron, 2026. március 15-ig érvényes ajánlattal.
Ez az ingatlan kiváló választás mindazoknak, akik megbízható kivitelezésű, jól szigetelt, energiatakarékos új otthont szeretnének nyugodt környezetben, Bocskaikert kedvelt részén.
Érdeklődjön most, és foglalja le időben új otthonát!
Az ingatlan egy 92,86 m²-es, új építésű, 3 szobás + amerikai konyhás-nappalis ikerház, amely átgondolt térkialakítással és kimagasló műszaki tartalommal valósul meg.
Szerkezet és szigetelés:
- 30 cm-es Porotherm/Leier tégla falazat
- 15 cm homlokzati EPS hőszigetelés
- 10 cm XPS lábazati szigetelés
- 30 cm födémszigetelés
- 3 rétegű üvegezésű, 6 légkamrás műanyag nyílászárók
- A korszerű gépészet és a modern technológia hosszú távon alacsony fenntartási költséget biztosít.
Fűtés és gépészet:
- korszerű padlófűtés, vagy gáz hiányában modern hőszivattyús rendszer
- a vételár része 2 db inverteres klíma
- energiahatékony, alacsony rezsijű működés
- közművek telken belüli csatlakoztatása (amennyiben adott)
- városi víz hiányában házi vízmű
- csatorna hiányában 3 m³-es zárt szennyvíztartály (igény szerint nagyobb kapacitással, felár ellenében)
Az építkezés kezdete: 2026.
A kivitelező az ügyfél igényei szerint is vállalja az építést, akár családi ház kivitelezését is 1141 m²-es telken, 600 000 Ft/m² áron, 2026. március 15-ig érvényes ajánlattal.
Ez az ingatlan kiváló választás mindazoknak, akik megbízható kivitelezésű, jól szigetelt, energiatakarékos új otthont szeretnének nyugodt környezetben, Bocskaikert kedvelt részén.
Érdeklődjön most, és foglalja le időben új otthonát!