Eladó Ház- házrész
Hirdetéskód: 9312766
GDN Ingatlanhálózat - Zala Ingatlaniroda
Felújításhoz személyi kölcsönt keres? Kalkuláljon itt! →
Ez a hirdetés megfelelhet a FIX 3%-os programnak.
Tudj meg többet a részletekről itt.
274.00 m2
ALAPTERÜLET4
SZOBASZÁMnincs megadva
ÉPÍTÉSnincs megadva
FŰTÉS- CSOK igénybe vehető nem
- Tetőtér beépíthető nem
- Klíma nem
- Szigetelt nem
A+++
A++
A+
A
B
C
D
E
F
G
H
I
Az ingatlan leírása
PANORÁMÁS, PRÉMIUM, ÚJ ÉPÍTÉSŰ CSALÁDI HÁZ BOCFÖLDÉN – ZALAEGERSZEGTŐL PÁR PERCRE!
Van az a pillanat, amikor egy kilátás mindent eldönt.
Ez az otthon pontosan ilyen.
Bocfölde egyik legszebb, panorámás részén, csendes, zöld környezetben épül ez a modern, új építésű családi ház, amely tökéletes egyensúlyt teremt a nyugalom és a város közelsége között. Zalaegerszeg mindössze néhány perc autóval, mégis egy teljesen más, nyugodtabb világba érkezünk haza minden nap.
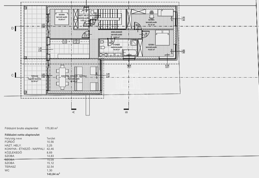
A 1011 m²-es telken megvalósuló, 216 m²-es otthon minden részlete a kényelmes, élhető családi életet szolgálja. A két szinten kialakított elrendezés átgondolt, a terek világosak, jól használhatók, és természetes kapcsolatban állnak a környezettel.
A felső lakószinten egy tágas, amerikai konyhás nappali–étkező fogad, amely a családi élet központja. Innen nyílik a 32 m²-es panorámás terasz, amely nem csupán egy kültéri tér, hanem az ingatlan egyik legnagyobb értéke – egy hely, ahol a reggelek nyugalomban indulnak, az esték pedig különleges hangulatban telnek.
A három külön nyíló hálószoba kényelmes privát teret biztosít, míg a fürdőszoba, háztartási helyiség és külön toalett a mindennapi praktikumot szolgálják.
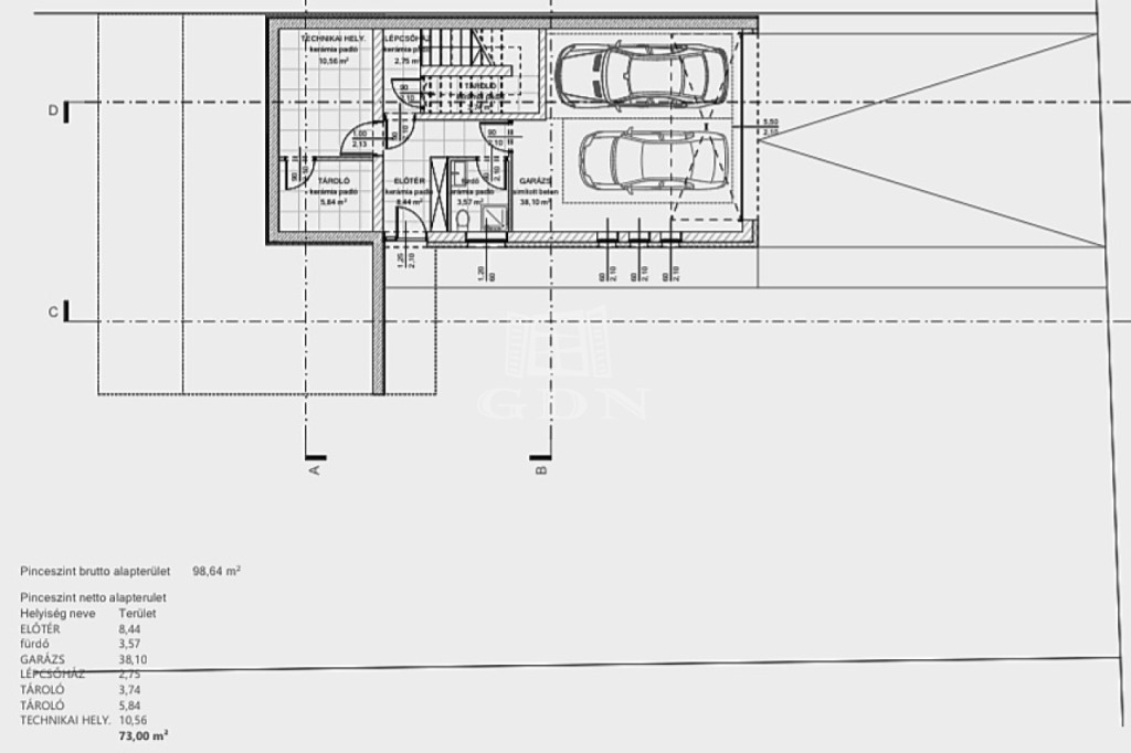
Az alsó szinten található 38 m²-es dupla garázs, valamint további helyiségek – előtér, fürdő, tárolók és gépészet – biztosítják a funkcionalitást és a rendezett életteret.
⚙️ MODERN MŰSZAKI TARTALOM
Az ingatlan korszerű, időtálló megoldásokkal épül:
-30 cm Porotherm falazat
20 cm homlokzati szigetelés
-hőszivattyús fűtés padlófűtéssel
-háromrétegű nyílászárók
-betonfödém
-antracit tetőcserép.
Ez a műszaki háttér nemcsak kényelmet, hanem hosszú távon gazdaságos fenntarthatóságot is biztosít.
⚙️EGYEDI LEHETŐSÉG
Az ingatlan jelenleg kivitelezés alatt áll, így még lehetőség van arra, hogy az új tulajdonos bizonyos belső kialakítási elemeket saját igényeire szabjon. Ez ritka lehetőség egy ilyen adottságú, panorámás új építésű ingatlan esetében.
⚙️ELHELYEZKEDÉS
csendes, panorámás környezet
családias, rendezett utca
Zalaegerszeg pár perc alatt elérhető
⚙️FŐBB ADATOK
Telek: 1011 m²
Lakóterület: 216 m²
Nappali + 3 hálószoba
32 m² panorámás terasz
38 m² dupla garázs
Új építés, modern gépészet
Ez az ingatlan ideális választás azoknak, akik nem szeretnének kompromisszumot kötni: panoráma, nyugalom, modern technológia és városközeli elhelyezkedés egyetlen otthonban.
Irányár: 139 000 000 Ft
Részletes műszaki tartalommal, aktuális készültségi szinttel és személyes megtekintéssel kapcsolatban keressen bizalommal.
A vásárlás teljes folyamatában támogatást nyújtok, beleértve a finanszírozást, jogi hátteret és igény esetén a belső kialakítás szakmai támogatását is. ...TOVÁBBI, TÖBBEZRES INGATLAN KÍNÁLAT: - GDN azonosító: 394145
Van az a pillanat, amikor egy kilátás mindent eldönt.
Ez az otthon pontosan ilyen.
Bocfölde egyik legszebb, panorámás részén, csendes, zöld környezetben épül ez a modern, új építésű családi ház, amely tökéletes egyensúlyt teremt a nyugalom és a város közelsége között. Zalaegerszeg mindössze néhány perc autóval, mégis egy teljesen más, nyugodtabb világba érkezünk haza minden nap.
A 1011 m²-es telken megvalósuló, 216 m²-es otthon minden részlete a kényelmes, élhető családi életet szolgálja. A két szinten kialakított elrendezés átgondolt, a terek világosak, jól használhatók, és természetes kapcsolatban állnak a környezettel.
A felső lakószinten egy tágas, amerikai konyhás nappali–étkező fogad, amely a családi élet központja. Innen nyílik a 32 m²-es panorámás terasz, amely nem csupán egy kültéri tér, hanem az ingatlan egyik legnagyobb értéke – egy hely, ahol a reggelek nyugalomban indulnak, az esték pedig különleges hangulatban telnek.
A három külön nyíló hálószoba kényelmes privát teret biztosít, míg a fürdőszoba, háztartási helyiség és külön toalett a mindennapi praktikumot szolgálják.
Az alsó szinten található 38 m²-es dupla garázs, valamint további helyiségek – előtér, fürdő, tárolók és gépészet – biztosítják a funkcionalitást és a rendezett életteret.
⚙️ MODERN MŰSZAKI TARTALOM
Az ingatlan korszerű, időtálló megoldásokkal épül:
-30 cm Porotherm falazat
20 cm homlokzati szigetelés
-hőszivattyús fűtés padlófűtéssel
-háromrétegű nyílászárók
-betonfödém
-antracit tetőcserép.
Ez a műszaki háttér nemcsak kényelmet, hanem hosszú távon gazdaságos fenntarthatóságot is biztosít.
⚙️EGYEDI LEHETŐSÉG
Az ingatlan jelenleg kivitelezés alatt áll, így még lehetőség van arra, hogy az új tulajdonos bizonyos belső kialakítási elemeket saját igényeire szabjon. Ez ritka lehetőség egy ilyen adottságú, panorámás új építésű ingatlan esetében.
⚙️ELHELYEZKEDÉS
csendes, panorámás környezet
családias, rendezett utca
Zalaegerszeg pár perc alatt elérhető
⚙️FŐBB ADATOK
Telek: 1011 m²
Lakóterület: 216 m²
Nappali + 3 hálószoba
32 m² panorámás terasz
38 m² dupla garázs
Új építés, modern gépészet
Ez az ingatlan ideális választás azoknak, akik nem szeretnének kompromisszumot kötni: panoráma, nyugalom, modern technológia és városközeli elhelyezkedés egyetlen otthonban.
Irányár: 139 000 000 Ft
Részletes műszaki tartalommal, aktuális készültségi szinttel és személyes megtekintéssel kapcsolatban keressen bizalommal.
A vásárlás teljes folyamatában támogatást nyújtok, beleértve a finanszírozást, jogi hátteret és igény esetén a belső kialakítás szakmai támogatását is. ...TOVÁBBI, TÖBBEZRES INGATLAN KÍNÁLAT: - GDN azonosító: 394145