Eladó Ház- házrész
Hirdetéskód: 9256288
GDN Ingatlanhálózat - GARDEN CITY
Felújításhoz személyi kölcsönt keres? Kalkuláljon itt! →100.00 m2
ALAPTERÜLET2
SZOBASZÁMnincs megadva
ÉPÍTÉSnincs megadva
FŰTÉS- CSOK igénybe vehető nem
- Tetőtér beépíthető nem
- Klíma nem
- Szigetelt nem
A+++
A++
A+
A
B
C
D
E
F
G
H
I
Az ingatlan leírása
SZARVASUGRÁS LAKÓPARK – PANORÁMÁS IKERHÁZ BIATORBÁGYON
Ha csendes, zöldövezeti környezetre, mégis kiváló közlekedésre és modern otthonra akar találni, a Szarvasugrás lakópark az egyik legjobb választás Biatorbágyon.
Itt RITKÁN kerül piacra ilyen állapotú és elrendezésű ingatlan.
Újszerű, külön bejáratos ikerház – valódi önállóság
Az ingatlan 2020-ban épült meg, megkímélt állapotú.
A 100 m²-es 2 szintes ikerház saját, kb. 250 m²-es telken helyezkedik el.
Fedett kocsibeálló 2 autó számára, kerítésen belül.
Főbb jellemzők:
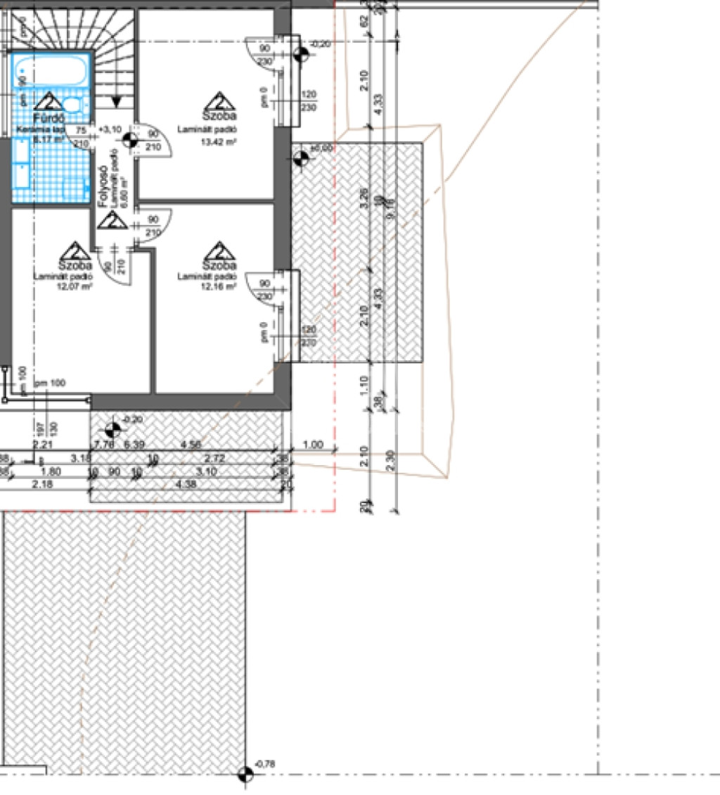
100 m² lakótér 2 szinten
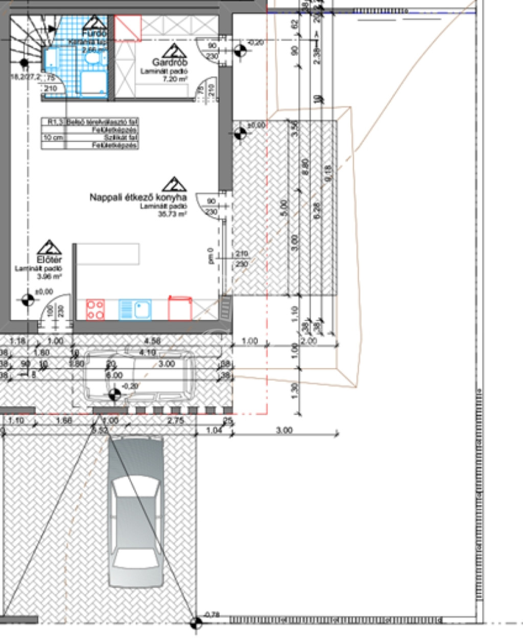
világos, tágas amerikai konyhás nappali
3 hálószoba + külön dolgozószoba (egy szoba a földszinten és 3 szoba az emeleten
2 fürdőszoba (egy a földszinti részen és egy az emeleti szinten)
15 m² fedett terasz (nyári baráti, családi összejövetelekhez)
Daikin hőszivattyús padlófűtés + hűtő-fűtő klíma
beépített bútorok
elektromos redőnyök
elektromos kapu
több zárható kültéri tároló
gondozott holland pázsit
Elhelyezkedés – Szarvasugrás, ahol minden kézre áll
A lakópark egyik legnagyobb előnye, hogy nyugodt, csendes, családbarát és panorámás környezetet kínál, miközben minden gyalogosan könnyen és gyorsan elérhető:
vasútállomás, buszmegálló
játszótér, cukrászda
Bia Korzó, üzletek
BuBa kerékpárút
zöld, természetközeli környezet
Természetesen autóval is minden elérhető, Biatorbágy a budapesti agglomeráció része, így a főváros kis távolságra helyezkedik el.
Miért ez az ingatlan?
alacsony rezsi a modern gépészetnek köszönhetően
ideális pároknak, családoknak vagy home office-hoz
rendezett, könnyen fenntartható kert
praktikus, jól élhető elosztás
A Szarvasugrás nem csak egy lakópark – életminőség.
Ha egy modern, nyugodt, mégis kiválóan megközelíthető otthont keres, ezt az ingatlant érdemes megnézni.
Érdeklődjön és tekintsük meg együtt következő otthonát! ...TOVÁBBI, TÖBBEZRES INGATLAN KÍNÁLAT: - GDN azonosító: 391971
Ha csendes, zöldövezeti környezetre, mégis kiváló közlekedésre és modern otthonra akar találni, a Szarvasugrás lakópark az egyik legjobb választás Biatorbágyon.
Itt RITKÁN kerül piacra ilyen állapotú és elrendezésű ingatlan.
Újszerű, külön bejáratos ikerház – valódi önállóság
Az ingatlan 2020-ban épült meg, megkímélt állapotú.
A 100 m²-es 2 szintes ikerház saját, kb. 250 m²-es telken helyezkedik el.
Fedett kocsibeálló 2 autó számára, kerítésen belül.
Főbb jellemzők:
100 m² lakótér 2 szinten
világos, tágas amerikai konyhás nappali
3 hálószoba + külön dolgozószoba (egy szoba a földszinten és 3 szoba az emeleten
2 fürdőszoba (egy a földszinti részen és egy az emeleti szinten)
15 m² fedett terasz (nyári baráti, családi összejövetelekhez)
Daikin hőszivattyús padlófűtés + hűtő-fűtő klíma
beépített bútorok
elektromos redőnyök
elektromos kapu
több zárható kültéri tároló
gondozott holland pázsit
Elhelyezkedés – Szarvasugrás, ahol minden kézre áll
A lakópark egyik legnagyobb előnye, hogy nyugodt, csendes, családbarát és panorámás környezetet kínál, miközben minden gyalogosan könnyen és gyorsan elérhető:
vasútállomás, buszmegálló
játszótér, cukrászda
Bia Korzó, üzletek
BuBa kerékpárút
zöld, természetközeli környezet
Természetesen autóval is minden elérhető, Biatorbágy a budapesti agglomeráció része, így a főváros kis távolságra helyezkedik el.
Miért ez az ingatlan?
alacsony rezsi a modern gépészetnek köszönhetően
ideális pároknak, családoknak vagy home office-hoz
rendezett, könnyen fenntartható kert
praktikus, jól élhető elosztás
A Szarvasugrás nem csak egy lakópark – életminőség.
Ha egy modern, nyugodt, mégis kiválóan megközelíthető otthont keres, ezt az ingatlant érdemes megnézni.
Érdeklődjön és tekintsük meg együtt következő otthonát! ...TOVÁBBI, TÖBBEZRES INGATLAN KÍNÁLAT: - GDN azonosító: 391971