Eladó Ház- házrész
Hirdetéskód: 9246781
Magyar Ingatlanközvetítők Országos Szövetsége
Felújításhoz személyi kölcsönt keres? Kalkuláljon itt! →
Ez a hirdetés megfelelhet a FIX 3%-os programnak.
Tudj meg többet a részletekről itt.
114.00 m2
ALAPTERÜLET3
SZOBASZÁMnincs megadva
ÉPÍTÉSGeotermikus
FŰTÉS- CSOK igénybe vehető nem
- Tetőtér beépíthető nem
- Építés éve 2025
- Fűtés Geotermikus
- Klíma nem
- Szigetelt nem
A+++
A++
A+
A
B
C
D
E
F
G
H
I
Az ingatlan leírása
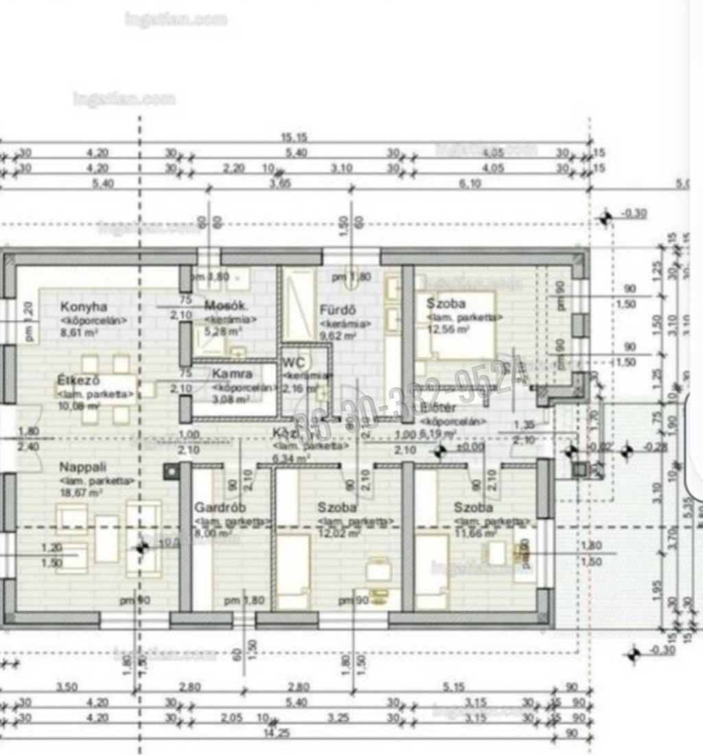
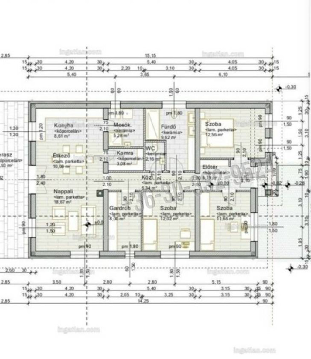
Berkenye, új családi házas utcájában kínálunk megvételre egy, építés alatt álló, jelenleg szerkezet kész, 114 nm-es, 4 szobás, összkomfortos, hőszivattyú által vezérelt padlófűtéses, 28 nm-es terasszal ellátott családi házat, 1651 nm-es telekkel.
Az ingatlan a legújabb szabályoknak megfelelően épült, beton sávalapra, 30-as Porotherm téglából, melyre 15 cm-es grafitos szigetelés kerül, látszó fagerendás födémmel vagy gipszkarton födémmel, melyre 30 cm-es kőzetgyapot szigetelés kerül.
Ablakai korszerű műanyag nyílászárók, 3 üveg réteggel kerülnek beépítésre (fehérek).
A tetőt Terrán betoncserép fedi.
Helyiségei:
- tágas amerikai konyhás nappali, melybe kandalló vagy cserépkályha használatára alkalmas kémény került beépítésre.
- 3 szoba, amik külön nyílnak
- fürdőszoba toalettel
- külön toalett
- gardrób szoba
- háztartási helyiség (mosókonyha lehetőség)
Kialakításra kerültek a szobákban és a nappaliban a H-tarifás klíma kiállások.
Az épület szellőztetését egy hővisszanyerő szellőző rendszer fogja biztosítani.
A napelemes rendszer a ház előnyös délnyugati fekvése miatt, igény szerint kiépíthető.
A házban riasztórendszer kerül kiépítésre.
Az ingatlanban egyedi igények szerint kerülhet kialakításra a belső tér, a burkolatok kiválasztása, a fürdőszobában kád illetve zuhanyfülke legyen kialakítva, a falak és a homlokzat színei.
Az árban az épület csempeburkolata 8 500, Ft/nm értékben, a laminált padló burkolatok 6 500, Ft/nm értékben választhatók.
Ezt az ingatlant egy megbízható, igényes kivitelező építi.
Az érdeklődők a községben, a már megépült referencia családi házát is megnézhetik.
Ha felkeltette érdeklődésüket ez a szép épülő családi ház és meg szeretnék tekinteni, előzetes egyeztetés után megtehetik, akár hétvégén is.
Köszönöm megtisztelő figyelmüket!
Amiben segítjük Önöket:
- hitel ügyintézés
- CSOK ügyintézés
- energetikai tanúsítvány
- földhivatali háttér
- földmérés
- értékbecslés
+ szolgáltatásunk: Ingyenes ajánlatküldés országos rendszerből, e-mail cím megadásával
Az ingatlan a legújabb szabályoknak megfelelően épült, beton sávalapra, 30-as Porotherm téglából, melyre 15 cm-es grafitos szigetelés kerül, látszó fagerendás födémmel vagy gipszkarton födémmel, melyre 30 cm-es kőzetgyapot szigetelés kerül.
Ablakai korszerű műanyag nyílászárók, 3 üveg réteggel kerülnek beépítésre (fehérek).
A tetőt Terrán betoncserép fedi.
Helyiségei:
- tágas amerikai konyhás nappali, melybe kandalló vagy cserépkályha használatára alkalmas kémény került beépítésre.
- 3 szoba, amik külön nyílnak
- fürdőszoba toalettel
- külön toalett
- gardrób szoba
- háztartási helyiség (mosókonyha lehetőség)
Kialakításra kerültek a szobákban és a nappaliban a H-tarifás klíma kiállások.
Az épület szellőztetését egy hővisszanyerő szellőző rendszer fogja biztosítani.
A napelemes rendszer a ház előnyös délnyugati fekvése miatt, igény szerint kiépíthető.
A házban riasztórendszer kerül kiépítésre.
Az ingatlanban egyedi igények szerint kerülhet kialakításra a belső tér, a burkolatok kiválasztása, a fürdőszobában kád illetve zuhanyfülke legyen kialakítva, a falak és a homlokzat színei.
Az árban az épület csempeburkolata 8 500, Ft/nm értékben, a laminált padló burkolatok 6 500, Ft/nm értékben választhatók.
Ezt az ingatlant egy megbízható, igényes kivitelező építi.
Az érdeklődők a községben, a már megépült referencia családi házát is megnézhetik.
Ha felkeltette érdeklődésüket ez a szép épülő családi ház és meg szeretnék tekinteni, előzetes egyeztetés után megtehetik, akár hétvégén is.
Köszönöm megtisztelő figyelmüket!
Amiben segítjük Önöket:
- hitel ügyintézés
- CSOK ügyintézés
- energetikai tanúsítvány
- földhivatali háttér
- földmérés
- értékbecslés
+ szolgáltatásunk: Ingyenes ajánlatküldés országos rendszerből, e-mail cím megadásával