Eladó Ház- házrész
Hirdetéskód: 9293480

-

Felújításhoz személyi kölcsönt keres? Kalkuláljon itt! →
267.00 m2
ALAPTERÜLET
6
SZOBASZÁM
Tégla
ÉPÍTÉS
Gáz (cirkó)
FŰTÉS
  • CSOK igénybe vehető igen
  • Belső szintek 1
  • Tetőtér beépíthető nem
  • Kilátás Kertre néző
  • Tájolás Dél
  • Ingatlan komfort Összkomfortos
  • Parkolási lehetőség Önálló garázs
  • Építés éve 2005
  • Fűtés Gáz (cirkó)
  • Építőanyag Tégla
  • Erkély, terasz Terasz 54.00m2
  • Klíma nem
  • Szigetelt igen
  • Bútorozott nem
  • Akadálymentesített nem
  • Biztosítás 8 000 Ft/hó
  • Kábelszolgáltató T-com
  • Víz telken belül
  • Csatorna telken belül
  • Gáz telken belül
  • Villany telken belül

Energetikai besorolás: B

A+++
A++
A+
A
B
C
D
E
F
G
H
I

Az MBH Bank személyi kölcsön ajánlata

Fizetett hirdetés
1 millió Ft
6 évre
20 585 Ft/hó
THM: 14.5%
Részletek →
2 millió Ft
6 évre
41 169 Ft/hó
THM: 14.5%
Részletek →
3 millió Ft
6 évre
61 754 Ft/hó
THM: 14.5%
Részletek →

A tájékoztatás nem teljes körű és nem minősül ajánlattételnek.

Az ingatlan leírása

Békéscsaba – Borjúréti kertek, Lapos utca | Élővíz-csatorna közelében | 1510 m² parkosított telken | többfunkciós épületeggyüttes | valódi oázis IR.ÁR: 155 M Ft

Békéscsaba egyik nyugodt, zöldövezeti részén, az élővíz-csatorna közvetlen közelségében eladó egy 2005-ben épült, D-i tájolású, körben napfényes, B energetikai besorolású otthon, amelynél a tudatos tervezés, a minőségi kivitelezés és a sokrétű használhatóság egyszerre jelenik meg. Az ingatlan értéke nem csak a négyzetméterekben mérhető: a ház és a kert együtt adnak egy valóban harmonikus, privát „oázis” életérzést.

Kinek ideális?

Nagycsaládnak, több generációnak, valamint olyan vevőnek, aki a privát életteret szeretné elkülöníteni, mégis egy telken belül működtetné a vállalkozást / szolgáltatást / home office-t (terápiás- vagy egészségmegőrző szolgáltatás, oktatás, tréning, privát foglalkozások, szépségipar, vendégfogadás). 

Lokáció – elérhetőségek

Békés vármegye, Békéscsaba, Borjúréti kertek – Lapos utca
•Gyula / román határátkelő: 20 km
•M44 felhajtó közel, Budapest kb. 2 óra
•Szarvas: 40 km | Gyoma: 40 km | Szeged: 100 km
A közeli Lencsési lakótelepen minden elérhető (busz, bevásárlás, posta, patika, ovi/iskola), kikapcsolódásnak pedig ott a csatornaparti ősfás környezet és a CsabaPark.

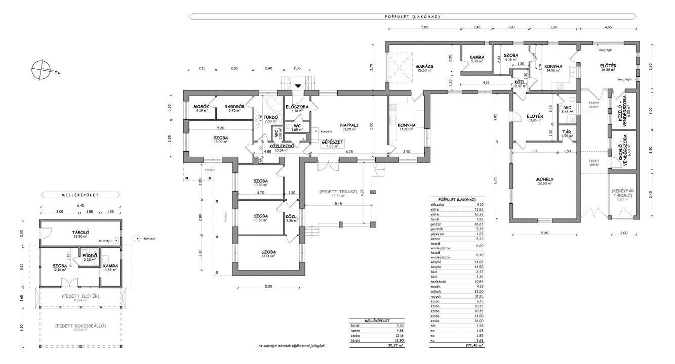
Fő paraméterek
•Telek: 1510 m², síkba feltöltött, „dupla telek” jelleg
•Főépület + kiegészítő épület együtt: 267 m²
•Fedett teraszok összesen: 53,7 m² (27 + 16 + 10,7)
•Egyéb épületek / könnyűszerkezetes ház stb.: 44,4 m²
•Fedett kocsibeálló: 21 m²
•Tulajdon: 1/1, tehermentes
•Birtokbaadás: megállapodás szerint
•IR.ÁR: 155 000 000 Ft 

Terek és funkciók – élet + működtetés egy ingatlanon belül

A 267 m²-es épületegyüttesben (fő- és kiegészítő épület) megtalálható:
•6 szoba, nappali–étkező
•2 beépített, gépesített konyha
•2 fürdőszoba, 3 WC
•kamra, gardrób, közlekedők
•előtér, fogadótér, gépészet, tárolók
•előadóterem jellegű nagyobb tér
•2 mosókonyhai kiállás (mosó + szárítógép előkészítéssel)

A kialakításból adódóan a ház nem „csak lakóház”: a fotókon is látható tágas közösségi és fogadótér-jellegű helyiségek kifejezetten alkalmasak különféle foglalkozások, tréningek, vendégfogadás, oktatás vagy szolgáltatás működtetésére.

Kiegészítő épület – kényelmes, önállóan is használható egység

A lakótérhez kapcsolódva, mégis jól szervezhetően:
•22,2 m² fűtött garázs, német, távirányítós motoros redőny-garázskapuval (száraz bejárás rossz időben is)
•kamra + közlekedő
•13,65 m² beépített konyha (elektromos főzőlap, páraelszívó, LED pultvilágítás), étkezőnek is kényelmes
•hálófülke
•fogadótér/pihenő
•32,45 m² előadóterem, + tároló
•felújított fürdő tusolóval és WC-vel
Az épületrész födémszigetelést kapott, ezzel energiahatékonyabb lett.

Udvar vége – vendég/kezelő/tároló funkciók
•téliesített, lambériázott, rusztikus hangulatú kb. 16 m² fedett terasz (üvegtéglás természetes fény)
2 db, egyenként 6 m²-es hidegburkolatos helyiség (vendégszoba/kezelő/tároló célra)
•7 m² zárható kerékpártároló, létratartó rekesszel
•esti hangulatvilágítás kandeláberekkel

Külön bejáratú „kis ház” – ügyfél- és vendégfogadásra ideális

A kapubejáró közelében található, a privát élettértől elhatároltan:
20 m² szoba–konyha–fürdő+WC beosztás
10,7 m² fedett folyosó/terasz
•Baumit nemes vakolat, villamos hálózat és szerelvények cseréje, rendezett környezet
egyedi villanyóra, fűtés: gázkonvektor, meleg víz: 50 l bojler
Mellette 13 m² polcozott szerszám- és tüzelőtároló, szennyvízaknával (városi hálózatra csatlakoztatható), valamint a nagy teljesítményű öntözőszivattyú.

Műszaki tartalom  , FŐÉPÜLET – biztonság, energia, minőség
•beton alap/lábazat, 45 cm Porotherm falazat
•10 cm hőszigetelt aljzat, homlokzaton 10 cm hőszigetelés + Baumit nemes vakolat
•acélgerendás födém faszerkezettel,  üveggyapot hőszigeteléssel
hőszigetelt, gáztöltésű fa nyílászárók (sötét tölgy árnyalat), redőnyözve , mind  szúnyoghálóval 
Schiedel hőszigetelt kémény
•Tondach piros Tangó  cserép (garanciális csere megtörtént), párazárás, szellőzés, Velux tetőkibúvó
•1×25 A + 2×16 A ipari áram, rézvezetékek csőben, külön mérő kialakítása is lehetséges
Aereco szellőztető rendszerek
•udvart belátó, rögzítő kamerarendszer (riasztó előkészítéssel)
•fűtés és meleg víz: Viessmann Vitogas 100-24 kombikazán, keringtető szivattyú, 100 l puffertartály, radiátor + padlófűtés
•hangulatfokozás: egyedi cserépkályha

Kert és intimitás – kész, kiépített, gondozott

A telek minden oldalról újszerű kerítésekkel határolt, 2 távirányítós elektromos kapuval. Utcafronton akár 5–6 autó számára parkolóöböl, az udvaron több ütemben kialakított, 300 m² feletti, szegélyezett térkőburkolat.
A kert növényzete tudatosan telepített (örökzöldek, tujasor, sövény, fenyők, diófák, díszcserjék, évelők), öntözése automata rendszerrel és számos csatlakozási ponttal megoldott; a vizet fúrt kút + nagy teljesítményű szivattyú biztosítja. A hátsó kiskapun át egy karbantartott fahídon keresztül a csatornapart pár lépésre elérhető.

Finanszírozás, jogi helyzet
1/1 tulajdon, tehermentes
•Finanszírozható: CSOK+, Otthon Start Program, piaci hitel

IR.ÁR: 155 000 000 Ft

Térkép

A hirdető elérhetősége

Tóth Gabriella

+36 30 627