Eladó Ház- házrész
Hirdetéskód: 9307185

-

Felújításhoz személyi kölcsönt keres? Kalkuláljon itt! →
FIX 3% Program

Ez a hirdetés megfelelhet a FIX 3%-os programnak.
Tudj meg többet a részletekről itt.

73.00 m2
ALAPTERÜLET
3
SZOBASZÁM
Egyéb anyag
ÉPÍTÉS
Gáz (cirkó)
FŰTÉS
  • CSOK igénybe vehető igen
  • Belső szintek 1
  • Tetőtér beépíthető nem
  • Kilátás Utcai
  • Tájolás Északkelet
  • Ingatlan komfort Duplakomfortos
  • Parkolási lehetőség Önálló garázs
  • Építés éve 1970
  • Fűtés Gáz (cirkó)
  • Építőanyag Egyéb anyag
  • Erkély, terasz Terasz 11.00m2
  • Klíma nem
  • Szigetelt nem
  • Bútorozott igen
  • Akadálymentesített nem
  • Kábelszolgáltató T-com, One , Digi
  • Víz telken belül
  • Csatorna telken belül
  • Gáz telken belül
  • Villany telken belül

Energetikai besorolás: G

A+++
A++
A+
A
B
C
D
E
F
G
H
I

Az MBH Bank személyi kölcsön ajánlata

Fizetett hirdetés
1 millió Ft
6 évre
20 585 Ft/hó
THM: 14.5%
Részletek →
2 millió Ft
6 évre
41 169 Ft/hó
THM: 14.5%
Részletek →
3 millió Ft
6 évre
61 754 Ft/hó
THM: 14.5%
Részletek →

A tájékoztatás nem teljes körű és nem minősül ajánlattételnek.

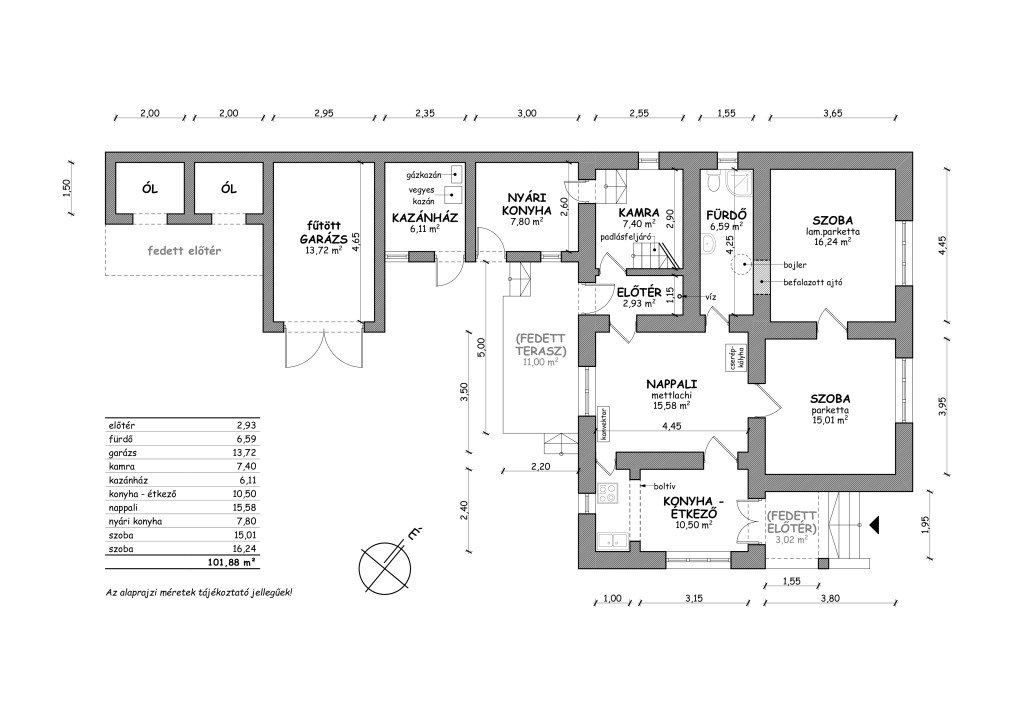
Az ingatlan leírása









VÁROSKÖZPONT KÖZELI , JÓ ADOTTSÁGÚ , KELLEMES KÖRNYEZETBEN , SZÉLES-SZELLŐS UTCÁBAN LÉVŐ KÁDÁRKOCKA ELADÓ !


Belvárostól autóval 2 percre , kellemes szomszédság közt várja új gazdáját , egy 70-ben épült, összkomfortos , jó szerkezeti állapotú , előkertes , minimálisan modernizált ( 3 db új redőnyözött ablak + egyik szoba lam. parketta ) ÉK-i tájolású , 73 m2-es kádárkocka , napos terasszal , nyári konyhával , fűtött garázzsal , 2. kocsibeállóval és gazdasági épületekkel , rendezett , gondozott 933 m2-es telken.


Lokáció : Békés vármegye , Békéscsaba , a központtól bő 1 km-re a Hétvezér utcában
Közeli városok : Gyula 15 , Békés 10 , Szarvas és Gyomaendrőd 40 km , Közvetlen M44-es autóút csatlakozás


Adottságai , tulajdonságai :
- beton alapra , tégla lábazattal és jelenleg is száraz vályog falazattal épült , fagerendás-sártapasztású födém- és tetőszerkezete is korát meghazudtoló állapotú , statikailag kifogástalan , ezt tanúsítja a hibátlan homlokzati kőporozás is
- a vályog falazat egész évben kellemes klímát biztosít
- virágoskertnek helyet adó előkerttel épült , a telek kerítéssel teljesen körbekerített
- 73 m2-es , 2 szoba-nappalis beosztású ( némi fantáziával 3+nappalissá alakítható ) , napos étkezőkonyhával , tusolós- WC-s fürdőszobával , kamrával , előtérrel + egy beépíthető fedett előtérrel , hátsó bejárata előtt 11 m2-es napos terasszal és a kamrából nyíló 7,8 m2-es nyári konyhával rendelkezik
- egyéb helyiségek , épületek : 6,11 m2-es külön bejáratú kazánház , 13,7 m2-es fűtött garázs , góré , számos különböző ( pl. kutyakenelnek is alkalmas ) tároló helyiség , a kocsibejáróval szemben könnyűszerkezetes betonozott 23,5 m2-es garázs-műhely épület
- normál , 3 m-es a belmagasság , szellős terek jellemzik
- fűtését gáz- és vegyes cirkó fűtés , gázkonvektor és egy gyönyörű cserépkályha látja el
- a meleg vizet kedvezményes éjszakai áramról működő villanybojler biztosítja
- 16 Amper ( 32 Amperig díjmentesen bővíthető ) + éjszakai áram , műa. csőben futó villamos hálózat
- az épületek mentén járdázott , a kocsibejáró betonozott , kúpcserepek kenve
- a hátsó udvar , kerítéssel szeparált , gyümölcsösnek , konyhakertnek kiváló , a terület fúrt kútról gazdaságosan locsolható
- az udvarban , utcán : szórtan örökzöldek és termő gyümölcsfák találhatóak


1 km-es sugarú körön belül : kórház , ALDI , benzinkút , liget-játszótér , óvoda , ált. és középiskolák , orvosi centrum , számos szolgáltató , szoc. intézmény , sportolási lehetőségek , a belvárosban , a belvárosban szinte minden megtalálható


Ajánlom : fiataloknak , 1-2 gyermekes családnak és energikus idősebbeknek is egyaránt , akik nem ijednek meg a felújítástól , saját ízlésük szerint kialakított otthonban éreznék igazán jól magukat !


Finanszírozható : OSP ( 3 % ) , CSOK+ , Babaváró , munkás és piaci hitel ill. ezek kombinációjának segítségével ( díjmentes bankfüggetlen hitelügyintéző , a felújításhoz megbízható kivitelező igény esetén biztosított , a jogi háttérrel , energikussal és szinte minden egyéb esetlegesen szükséges szakemberrel együtt


Térképszelvénye banki szempontból lényeges részeiben kifogástalan


1/1-es tulajdon , tehermentes


IR.ÁR: 39,99 M Ft


Érd. és személyes megtekintés kérhető a 06-30-627-7452-es számon
H-P : 9-19 , Sz: 9-14 óra között












 
 
 
 
 




 









 
 
 






Térkép

Ingatlan adásvétel ügyvédi díja
179 955 Ft
a hirdetésben szereplő ár alapján
  • A vételár 0,45%-a
  • Szerződéscsomag teljeskörű képviselettel
  • Ingyenes tulajdoni lap ellenőrzés
  • Az ÁFA-t már tartalmazza
Érdekel az ajánlat →
A tájékoztatás nem teljes körű és nem minősül ajánlattételnek. Minimum díj: 150 000 Ft, maximum díj: 600 000 Ft. A díj kizárólag lakóingatlan adásvételére vonatkozik.

A hirdető elérhetősége

Tóth Gabriella

+36 30 627