Eladó Ház- házrész
Hirdetéskód: 9321683
Otthon Centrum - Debrecen - Kálvin tér
Felújításhoz személyi kölcsönt keres? Kalkuláljon itt! →125.00 m2
ALAPTERÜLET4
SZOBASZÁMnincs megadva
ÉPÍTÉSnincs megadva
FŰTÉS- CSOK igénybe vehető nem
- Tetőtér beépíthető nem
- Építés éve 2026
- Klíma nem
- Szigetelt nem
A+++
A++
A+
A
B
C
D
E
F
G
H
I
Az ingatlan leírása
Balmazújvároson hőszivattyús, amerikai konyhás - tágas nappalival rendelkező 3 hálószobás, új építésű családi ház eladó!
Közelében, üzletek, helyi buszmegálló, iskola, óvoda. Kiváló választás, ha Debrecen közeli településen szeretné megtalálni új otthonát.
Megbízható igényes kivitelezési munka, 2026 II- III. negyedévi átadással.
Minőségi kivételezés mellett nagy hangsúly kerül az esztétikus megjelenésre is.
A családi ház paraméterei:
- telek mérete: 486 nm
- a ház hasznos alapterülte: 125 nm
- falazata: 30 cm -es Phorotherm tégla+ 15 cm vastag külső szigetelés
- 3 rétegű hőszigetelt, kívül színes műanyag nyílászárók
- beépített, elektromos alumínium redőnyök
- gazdaságos, hőszivattyús rendszer biztosítja a használati meleg vizet és az otthon melegét melyhez a padlófűtés biztosítja a kellemes hőérzetet. hűtését nagyteljesítményű klíma biztosítja
- antracit szinű, 3 rétegű, hőszigetelt üvegezéssel rendelkező, műanyag nyílászárók teszik világossá a teret, melyekhez beépített elektromos redőnyök készülnek
- új, épített kerítés, térkövezett járda és gépkocsi beállók.
- tágas világos terek és ideális térkihasználás jellemzi
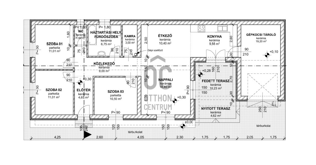
- fedett terasszal kapcsolatos konyha- étkező- nappali, 3 kényelmes méretű hálószoba, fürdőszoba és külön WC, mosókonyha és széles közlekedő
- lakótérrel kapcsolatos 19nm- s garázs
- az építkezés előrehaladott állapotban van, de még saját elképzelései szerint alakíthatja a belső színvilágot (burkolat, szaniter, falszín még választható)
A városból Debrecen gyorsan, dugómentesen megközelíthető, akár saját gépkocsival, akár a folyamatosan fejlődő tömegközlekedéssel.
Azoknak akik szeretik a kertvárosi, zöld környezetet, és fontos a nagyváros közelsége is.
Hívjon, foglaljon időpontot a megtekintéshez!
Hajdú-Bihar, Debrecen, Balmazújváros, ház, kert, eladó, új, modern, hőszivattyú, energiatakarékos, család, BMW, otthon,
Angol leírás
Közelében, üzletek, helyi buszmegálló, iskola, óvoda. Kiváló választás, ha Debrecen közeli településen szeretné megtalálni új otthonát.
Megbízható igényes kivitelezési munka, 2026 II- III. negyedévi átadással.
Minőségi kivételezés mellett nagy hangsúly kerül az esztétikus megjelenésre is.
A családi ház paraméterei:
- telek mérete: 486 nm
- a ház hasznos alapterülte: 125 nm
- falazata: 30 cm -es Phorotherm tégla+ 15 cm vastag külső szigetelés
- 3 rétegű hőszigetelt, kívül színes műanyag nyílászárók
- beépített, elektromos alumínium redőnyök
- gazdaságos, hőszivattyús rendszer biztosítja a használati meleg vizet és az otthon melegét melyhez a padlófűtés biztosítja a kellemes hőérzetet. hűtését nagyteljesítményű klíma biztosítja
- antracit szinű, 3 rétegű, hőszigetelt üvegezéssel rendelkező, műanyag nyílászárók teszik világossá a teret, melyekhez beépített elektromos redőnyök készülnek
- új, épített kerítés, térkövezett járda és gépkocsi beállók.
- tágas világos terek és ideális térkihasználás jellemzi
- fedett terasszal kapcsolatos konyha- étkező- nappali, 3 kényelmes méretű hálószoba, fürdőszoba és külön WC, mosókonyha és széles közlekedő
- lakótérrel kapcsolatos 19nm- s garázs
- az építkezés előrehaladott állapotban van, de még saját elképzelései szerint alakíthatja a belső színvilágot (burkolat, szaniter, falszín még választható)
A városból Debrecen gyorsan, dugómentesen megközelíthető, akár saját gépkocsival, akár a folyamatosan fejlődő tömegközlekedéssel.
Azoknak akik szeretik a kertvárosi, zöld környezetet, és fontos a nagyváros közelsége is.
Hívjon, foglaljon időpontot a megtekintéshez!
Hajdú-Bihar, Debrecen, Balmazújváros, ház, kert, eladó, új, modern, hőszivattyú, energiatakarékos, család, BMW, otthon,
Angol leírás