Eladó Ház- házrész
Hirdetéskód: 9275027

-

Felújításhoz személyi kölcsönt keres? Kalkuláljon itt! →
204.00 m2
ALAPTERÜLET
5
SZOBASZÁM
Tégla
ÉPÍTÉS
Hőszivattyú
FŰTÉS
  • Belső szintek 1
  • Tetőtér beépíthető igen
  • Kilátás Kertre néző
  • Tájolás Délnyugat
  • Ingatlan komfort Duplakomfortos
  • Parkolási lehetőség Önálló garázs
  • Fűtés Hőszivattyú
  • Építőanyag Tégla
  • Erkély, terasz Terasz 61.00m2
  • Klíma igen
  • Szigetelt igen
  • Akadálymentesített igen
  • Víz telken belül
  • Csatorna telken belül
  • Gáz utcában
  • Villany telken belül

Energetikai besorolás: A+

A+++
A++
A+
A
B
C
D
E
F
G
H
I

Az MBH Bank személyi kölcsön ajánlata

Fizetett hirdetés
1 millió Ft
6 évre
20 585 Ft/hó
THM: 14.5%
Részletek →
2 millió Ft
6 évre
41 169 Ft/hó
THM: 14.5%
Részletek →
3 millió Ft
6 évre
61 754 Ft/hó
THM: 14.5%
Részletek →

A tájékoztatás nem teljes körű és nem minősül ajánlattételnek.

Az ingatlan leírása

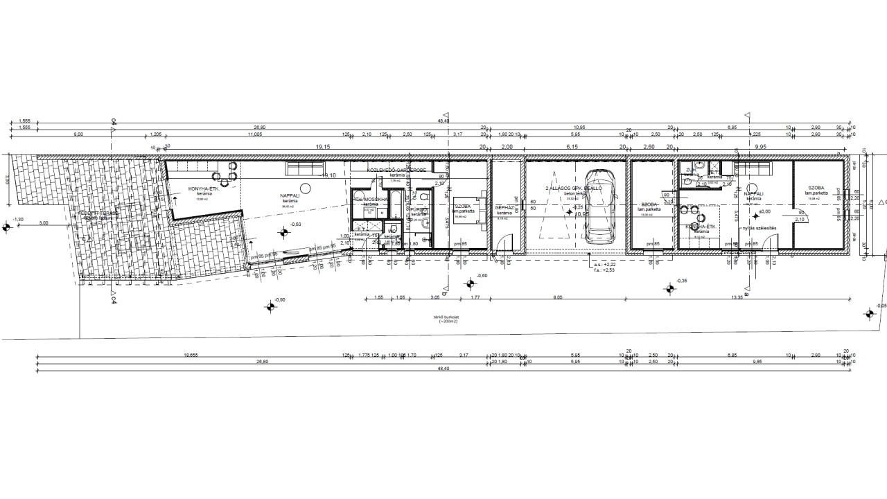
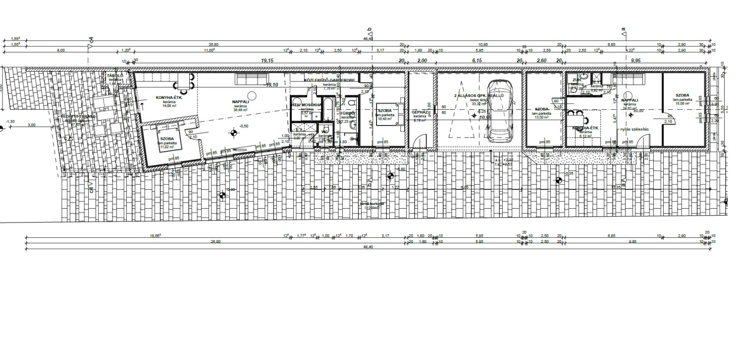
Balatonszárszón a vasúttól 300 m a strandtól 400 m-re. TELJESEN FELÚJÍTOTT! 2 apartmanból álló családiház, napelemmel (HMKE szaldós elszámolással), hőszivattyús hűtés-fűtés!


A ház 1357 m2-es telken található. A két apartman rész között 2 férőhelyes fedett autóbeálló és gépészeti helyiség határolja el egymástól  a lakrészeket.


Az 1-es utcafronti apartman 62,5 m2. 2 szoba (15; 13 m2), nappali-konyha-étkező (31 m2) és zuhanyzós fürdőszobából áll.


A 2-es hátsó lakrész 90 m2 + 61 m2 terasz. 1 szoba (16,5 m2), nappali-konyha-étkező (50 m2), háztartási helyiség, fürdőszoba (káddal és épített zuhanyzóval), kézmosó-WC helyiségekből áll.


Ez a rész a terasz irányába könnyedén tovább bővíthető egy 11 m2-es szobával. Ennek a változatnak az alaprajza is megtalálható a hirdetésben a képek között. Padlófűtési kör be lett építve, villanyszerelés, csövezés ennek megfelelően elkészült. A területet a ház egységes tetőszerkezete fedi, így igény esetén a főfalak felhúzásával létre jön a plusz szoba.


Az épület teljes felújításon esett át, ennek elkészülte után még nem lakták az ingatlant.


Számos extrával is felszerelték vagy előkészítették azok beszerelését.


Felújítás: Új függesztett álmennyezet készült gipszkartonból. Külső homlokzaton 10 cm vastag hőszigetelés, belül további 5 cm ásványgyapot szigetelés, a szarufaközök/födémek 15 cm szigetelése mellett az álmennyezet fölé 10 cm ásványgyapot szigetelés került, a sátortető ferdesíkja is szigetelve lett, a padlástér pakolható, későbbiekben akár beépíthető.


Teljesen új gépészeti rendszer (víz, szennyvíz, csapadékvíz, fűtés, hűtés).


Hőszivattyú CONCEPT SPLIT levegő-víz hőszivattyús hűtő-, hűtő rendszer, mennyezetbe épített fan coil-okkal, illetve padlófűtéssel egyedi vezérléssel (kis apartman 12kW  a nagyobbik pedig 16 kW teljesítménnyel).


Új villamos energia hálózat méretlen EON fővezetékkel együtt, (3x40A lekötött áramerőséggel).


Teljesen új gyengeáramú vezetékezés.


Extrák: Napelem rendszer, Solar Edge 16 kW / 22,96 kWp teljesítménnyel beépített napelemenkénti optimalizálással, HMKE szaldós elszámolással engedélyeztetve.


Redőny vagy zsalugáter az ablakokon szúnyoghálóval.


Extrák vagy fejlesztések későbbi megvalósításának előkészítései:


- terasz beszögellésnél 11 m2 szoba kialakításának lehetősége, (padlófűtési kör be lett építve, villanyszerelés, csövezés ennek megfelelően elkészült, az alaprajz a hirdetés fotói között megtalálható)


- riasztó és kamera rendszer telepítéséhez falon belüli védőcsövezés


- teraszra előkészített kiállások: jakuzzi elhelyezéséhez, szauna elhelyezéséhez, zuhanyzó-WC építéséhez.


- a terasz folytatásaként a kertben medence építéséhez kiállások előkészítve.


Ha bármilyen kérdésed lenne az ingatlannal kapcsolatban, ne habozz felvenni velünk a kapcsolatot. Ügyfeleink bizalommal fordulhatnak hozzánk, hiszen készséggel állunk rendelkezésükre. Az ingatlan bemutatása mellett a mi célunk az, hogy segítsük megtalálni az ideális otthont. Akár készpénzből akár államilag támogatott vagy szabad piaci hitelt szeretnél felvenni a vásárláshoz, tanácsadó kollégánk díjmentes, banksemleges ügyintézéssel áll rendelkezésre. Igény esetén ügyvédi segítséget is ajánlunk a teljes ügymenet jogi lebonyolításához.

Térkép

A hirdető elérhetősége

Érdi Ingatlan Iroda

Verő Ákos
+36 70 679