Eladó Ház- házrész
Hirdetéskód: 9255921
Openhouse Miskolc Szentpáli utcai Ingatlaniroda
Felújításhoz személyi kölcsönt keres? Kalkuláljon itt! →
Ez a hirdetés megfelelhet a FIX 3%-os programnak.
Tudj meg többet a részletekről itt.
99.00 m2
ALAPTERÜLET4
SZOBASZÁMnincs megadva
ÉPÍTÉSGáz (cirkó)
FŰTÉS- CSOK igénybe vehető nem
- Tetőtér beépíthető nem
- Építés éve 2026
- Fűtés Gáz (cirkó)
- Klíma nem
- Szigetelt nem
A+++
A++
A+
A
B
C
D
E
F
G
H
I
Az ingatlan leírása
Az Openhouse Siófok kínálatában eladó a #177936 hivatkozási számú balatonszabadi családi ház.
Ha unod a zsúfolt part menti utcákat, de nem akarsz messzire menni a Balatontól, akkor ez a Balatonszabadiban található modern családi ház neked készült.
Csak 4 km a Balaton-part, pár perc autóval, mégis minden nap csend és tiszta levegő vár hazaérve.
A ház nem tucatáru – tégla építésű, szigetelt, 3 rétegű nyílászárókkal, gáz-cirkó padlófűtéssel, hőszivattyúval (H tarifa) és hűtő-fűtő klímával készült.
Energiahatékony, átgondolt, és a rezsi sem fog meglepetést okozni.
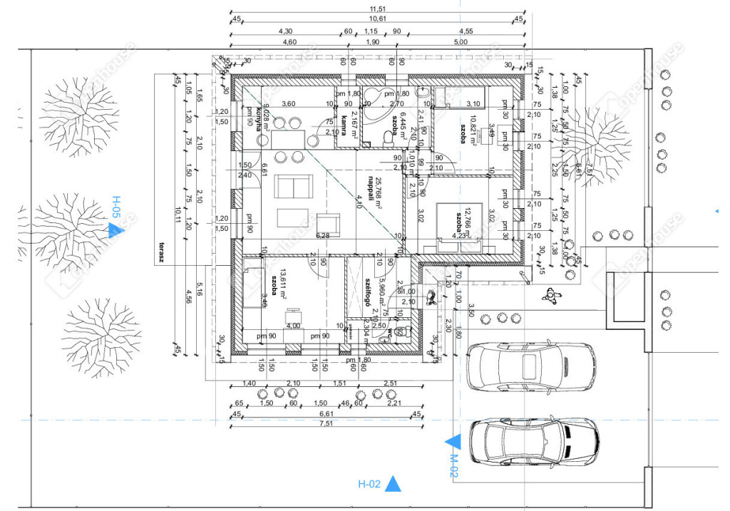
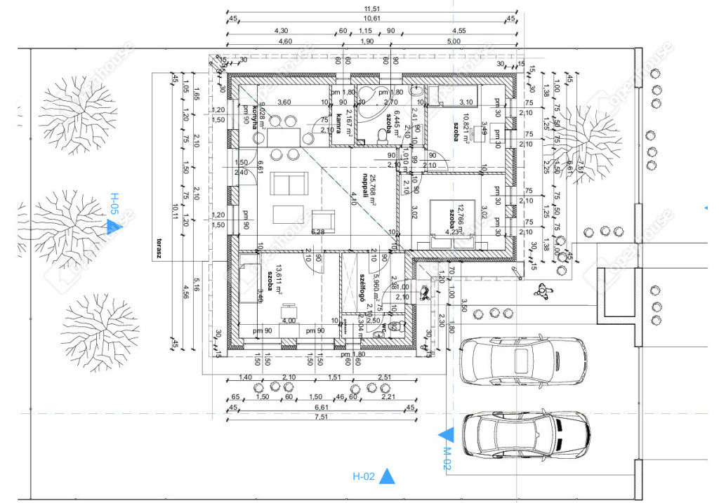
A központi tere egy világos, amerikai konyhás nappali, ahol együtt lehet főzni, beszélgetni, nevetni – ez a ház igazi szíve.
Ehhez jön még 3 hálószoba, fürdő WC-vel, külön vendég-WC, kamra, dupla kocsibeálló és egy terasz, ahol esténként elfér egy pohár bor és egy kis balatoni szellő.
A környék pedig élhető: iskola, óvoda, és közvetlen buszjárat Siófokra – így nemcsak nyaralónak, hanem otthonnak is tökéletes.
Ez a ház nem csupán négy fal és egy tető – ez egy okosan megépített, szerethető otthon, ami készen áll, hogy valaki végre belakja.
Balatonszabadi. Csend. Modern kényelem. Balaton a közelben. Kell ennél több?
Ha felkeltette érdeklődését ez az eladó balatonszabadi családi ház, vagy bármely más családi ház és bővebb információt szeretne, keressen bizalommal.Hivatkozási szám: #177936
Az Openhouse Siófok tagjaként várom Önt az országos hálózatunk teljes kínálatával.
A családi ház vásárláshoz hitelt igényelne? Ingyenes hitelközvetítéssel segít Önnek bankfüggetlen hitelszakértőnk.
További szolgáltatásainkkal (pl. értékbecslés, energetikai tanúsítvány, jogi háttér) is segítjük Önt a vásárlásban.
Az otthon érték. Az ingatlan üzlet.
Az energetikai tanúsítvány készítése folyamatban van, amint rendelkezésre áll, úgy azzal a hirdetés frissítésre kerül.
Irányár: 94900000 Ft
Ha unod a zsúfolt part menti utcákat, de nem akarsz messzire menni a Balatontól, akkor ez a Balatonszabadiban található modern családi ház neked készült.
Csak 4 km a Balaton-part, pár perc autóval, mégis minden nap csend és tiszta levegő vár hazaérve.
A ház nem tucatáru – tégla építésű, szigetelt, 3 rétegű nyílászárókkal, gáz-cirkó padlófűtéssel, hőszivattyúval (H tarifa) és hűtő-fűtő klímával készült.
Energiahatékony, átgondolt, és a rezsi sem fog meglepetést okozni.
A központi tere egy világos, amerikai konyhás nappali, ahol együtt lehet főzni, beszélgetni, nevetni – ez a ház igazi szíve.
Ehhez jön még 3 hálószoba, fürdő WC-vel, külön vendég-WC, kamra, dupla kocsibeálló és egy terasz, ahol esténként elfér egy pohár bor és egy kis balatoni szellő.
A környék pedig élhető: iskola, óvoda, és közvetlen buszjárat Siófokra – így nemcsak nyaralónak, hanem otthonnak is tökéletes.
Ez a ház nem csupán négy fal és egy tető – ez egy okosan megépített, szerethető otthon, ami készen áll, hogy valaki végre belakja.
Balatonszabadi. Csend. Modern kényelem. Balaton a közelben. Kell ennél több?
Ha felkeltette érdeklődését ez az eladó balatonszabadi családi ház, vagy bármely más családi ház és bővebb információt szeretne, keressen bizalommal.Hivatkozási szám: #177936
Az Openhouse Siófok tagjaként várom Önt az országos hálózatunk teljes kínálatával.
A családi ház vásárláshoz hitelt igényelne? Ingyenes hitelközvetítéssel segít Önnek bankfüggetlen hitelszakértőnk.
További szolgáltatásainkkal (pl. értékbecslés, energetikai tanúsítvány, jogi háttér) is segítjük Önt a vásárlásban.
Az otthon érték. Az ingatlan üzlet.
Az energetikai tanúsítvány készítése folyamatban van, amint rendelkezésre áll, úgy azzal a hirdetés frissítésre kerül.
Irányár: 94900000 Ft