Eladó Ház- házrész
Hirdetéskód: 9276718
OTP Ingatlanpont Siófok
Felújításhoz személyi kölcsönt keres? Kalkuláljon itt! →
Ez a hirdetés megfelelhet a FIX 3%-os programnak.
Tudj meg többet a részletekről itt.
330.00 m2
ALAPTERÜLET3
SZOBASZÁMnincs megadva
ÉPÍTÉSGáz (cirkó)
FŰTÉS- CSOK igénybe vehető nem
- Tetőtér beépíthető nem
- Építés éve 1997
- Fűtés Gáz (cirkó)
- Klíma nem
- Szigetelt nem
A+++
A++
A+
A
B
C
D
E
F
G
H
I
Az ingatlan leírása
Balaton déli part, BALATONMÁRIAFÜRDŐ belterületén ELADÓ egy STRANDKÖZELI felújítandó ingatlan. Parkolás az ingatlan előtt és udvarában is lehetséges.
Az ingatlan méreténél és kialakításánál fogva sok lehetőséget kínál.
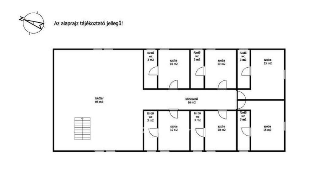
Földszintjén kiszolgáló és tároló helyiségek, egy kisebb lakás fürdővel, és 2 WC találhatók. Hozzáépítésre került még egy fedett terasz is. Tetőterében egy közös, tágas amerikaikonyhás nappaliból nyíló folyosó vezet a 6 különálló egységhez, amit hotelszobaként használtak: minden szobához tartozik egy zuhanyzó WC-vel. Tetőszerkezete ép: zsindellyel és a fedett terasz cseréppel fedett. A földszinti 2 db WC akadálymentesített.
Kivett hétvégi ház és gazdasági épületként szerepel a tulajdoni lapon.
Udvarán jelenleg egy kb.20 m3-es műanyag medence áll a hozzá tartozó szerkezetekkel együtt. Mellette fúrt kút, ami a medence töltésére és locsolásra is szolgálhat.
Balatonmáriafürdőn iskola, óvoda, körzeti orvos, gyógyszertár, boltok, éttermek találhatók. A híres FLORIDA fagyizót sem hagyják ki az ide látogatók, kirándulók.
A település egyre felkapottabb kiépített, gondozott központi és szabad strandjai okán. Forgalmas mólóján kirándulókkal és horgászokkal találkozhatunk. Horgászati lehetőség még a Nyugati Övcsatorna, ami keresztülszeli a falut. Kikötőjéből sétahajó indul hajózási szezonban a Balaton északi partjára: Badacsonyba, Keszthelyre...stb.
További információkért és a megtekintésért hívjon telefonon a hét bármelyik napján!
Az ingatlan méreténél és kialakításánál fogva sok lehetőséget kínál.
Földszintjén kiszolgáló és tároló helyiségek, egy kisebb lakás fürdővel, és 2 WC találhatók. Hozzáépítésre került még egy fedett terasz is. Tetőterében egy közös, tágas amerikaikonyhás nappaliból nyíló folyosó vezet a 6 különálló egységhez, amit hotelszobaként használtak: minden szobához tartozik egy zuhanyzó WC-vel. Tetőszerkezete ép: zsindellyel és a fedett terasz cseréppel fedett. A földszinti 2 db WC akadálymentesített.
Kivett hétvégi ház és gazdasági épületként szerepel a tulajdoni lapon.
Udvarán jelenleg egy kb.20 m3-es műanyag medence áll a hozzá tartozó szerkezetekkel együtt. Mellette fúrt kút, ami a medence töltésére és locsolásra is szolgálhat.
Balatonmáriafürdőn iskola, óvoda, körzeti orvos, gyógyszertár, boltok, éttermek találhatók. A híres FLORIDA fagyizót sem hagyják ki az ide látogatók, kirándulók.
A település egyre felkapottabb kiépített, gondozott központi és szabad strandjai okán. Forgalmas mólóján kirándulókkal és horgászokkal találkozhatunk. Horgászati lehetőség még a Nyugati Övcsatorna, ami keresztülszeli a falut. Kikötőjéből sétahajó indul hajózási szezonban a Balaton északi partjára: Badacsonyba, Keszthelyre...stb.
További információkért és a megtekintésért hívjon telefonon a hét bármelyik napján!