Eladó Ház- házrész
Hirdetéskód: 9229075

OTP Ingatlanpont Siófok

432 m2
ALAPTERÜLET
11
SZOBASZÁM
nincs megadva
ÉPÍTÉS
nincs megadva
FŰTÉS
  • CSOK igénybe vehető nem
  • Tetőtér beépíthető nem
  • Építés éve 2009
  • Klíma nem
  • Szigetelt nem
Energetikai besorolás: Nincs meghatározva
A+++
A++
A+
A
B
C
D
E
F
G
H
I

Az ingatlan leírása

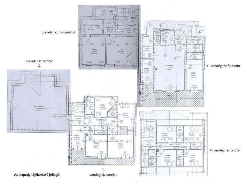
Balaton déli part, keleti medence, BALATONKENESE, 309 m2 panzió, 73 m2 családi ház, 60 m2 vendéglő, 1.482 m2 telek eladó. A vízparthoz közeli ingatlan kiváló befektetési akár a vendéglátás továbbvitelére, akár annak továbbfejlesztésére, de nagyobb családok számára állandó otthonként és nyaralóként is kivételes lehetőség. A 2009-ben épült három szintes vendégház 8 apartmannal és a földszinten egy nappali + 2 szobás lakással rendelkezik. A visszatérő vendégek teljes ellátását a telken épült kisvendéglő biztosíthatja, a korábban épült családi ház pedig jó megoldás lehet az üzemeltetők számára. A kiegészítő épületek átalakítása vagy bontása ugyanakkor számos további lehetőséget rejt magában. A jól megtervezett, praktikus kialakítású panzió fűtése gázkazánnal és vegyes tüzelésű kazánnal is megoldható, a megfelelő hőmérsékletről korszerű falhűtő és falfűtő rendszer gondoskodik. Az ingatlan értékét napkollektor és 8 autó elhelyezésére alkalmas, zárt, kamerával felszerelt parkoló növeli. A folyamatosan karban tartott, kiváló minőségű ingatlan egyedülálló befektetés egy jól működő, egész évben nyitva tartó panzió továbbvitelére, de tökéletes választás lehet céges üdülő működtetésére vagy egyéb üzleti vállalkozásra is. A lokáció tekintetében egyedülálló, ritka lehetőség. Az ingatlan megvásárlásához OTP Otthon Start Lakáshitel is igényelhető! Bővebb információért keressen telefonon! M317673

Térkép

A hirdető elérhetősége

OTP Ingatlanpont Siófok

Lestyán László Józsefné Lakati Melinda
+36 70 455