Eladó Ház- házrész
Hirdetéskód: 9215343
OTP Ingatlanpont Csongrád
535.00 m2
ALAPTERÜLET11
SZOBASZÁMnincs megadva
ÉPÍTÉSnincs megadva
FŰTÉS- CSOK igénybe vehető nem
- Tetőtér beépíthető nem
- Építés éve 1995
- Klíma nem
- Szigetelt nem
A+++
A++
A+
A
B
C
D
E
F
G
H
I
Az ingatlan leírása
Strandközelben, a Fürdőtelepen EXKLUZÍV ingatlan ELADÓ Balatonfüreden.
Balatonfüred egyik legkedveltebb részén, a strandok és a Tagore-sétány közvetlen közelében kínáljuk megvételre ezt a kiváló adottságokkal rendelkező, 1995-ben épült ingatlant, amely egyszerre biztosít kényelmes otthont és komoly befektetési potenciált.
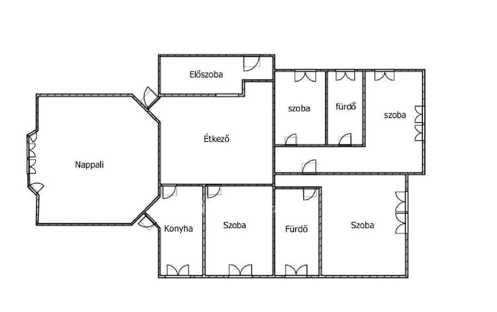
A 1187 nm-es, összközműves telken elhelyezkedő, szuterén + földszint + tetőtér kialakítású épület masszív tégla falazattal, vasbeton födémmel és szigetelt homlokzattal készült. Az ingatlan két utcára nyitott, elektromos kapuval ellátott bejáratokkal, valamint 8 gépkocsi számára felszíni parkolóhelyet és garázst biztosít.
A TETŐTÉRBEN kialakított 6 vendégszoba jelenleg szálláshelyként funkcionál, így az ingatlan nemcsak családi rezidenciaként, hanem jövedelmező vendégházként is kiválóan hasznosítható. Főbb műszaki és kényelmi felszereltség: központi gázcirkós fűtés puffertartállyal, radiátoros hőleadással, korszerű levegő hőszivattyús hűtő/fűtő rendszerek a lakóegységekben, két fűtött medence elektromos vezérlésű fedéssel és közel 360 nm épített, díszburkolattal ellátott napozóterasz - hideg/melegvizes kültéri zuhanyzók a medencék mellett, tágas szaletli villanybojlerrel, mosogatóval, hűtő-fűtő klímák, nagy teljesítményű wifi és Vodafone kábeltévé, riasztó- és kamerarendszer, kültéri világítás mozgásérzékelővel, öntözőrendszer, ivóvíz minőségű fúrt kút nagynyomású szivattyúval, hangulatos cserépkályha. Földszinti elrendezés és funkciók: különálló, 2 szobás apartman konyhával, étkezővel, fürdőszobával, közvetlen teraszkapcsolattal a medencékhez és tágas, kb. 30 fő befogadására alkalmas étkező, teljesen felszerelt konyhával, kazánház a fűtés és melegvíz ellátás számára, vasalószoba és raktárhelyiségek.
Az ingatlan belső tereit kerámialap, parketta és laminált burkolatok teszik változatossá, a műanyag nyílászárók redőnnyel felszereltek. Az esztétikai és műszaki állapot kiváló, az alaprajzi elrendezés átgondolt és jól hasznosítható.
Ez a balatoni villa ideális választás mindazok számára, akik egy elegáns, tágas otthont keresnek, vagy szálláshely-üzemeltetésben, turisztikai befektetésben gondolkodnak.
Exclusive Villa with Guesthouse in Balatonfüred. Two Heated Pools & Prime Location.
An exceptional investment opportunity in the heart of Balatonfüred, just a short walk from the Tagore Promenade and the beach.
This 3-level villa (built on a 1,187 NM plot) combines modern comfort with premium leisure facilities: 6 guest rooms with air conditioning, 2 heated pools with automatic covers & a 360 NM sun terrace, Spacious garden with pavilion, BBQ area and outdoor shower, 8 parking spaces + garage, secured with electric gates. High-speed WiFi, CCTV & alarm system, irrigation system, private well. Perfect both as a luxury residence and as a profitable guesthouse with existing demand.
Balatonfüred, the most sought-after town on Lake Balaton, offers outstanding investment security and a unique lifestyle.
Exklusive Villa mit Gästehaus in Balatonfüred. Zwei beheizte Pools in Top-Lage
Eine außergewöhnliche Immobilie im Herzen von Balatonfüred, nur wenige Gehminuten von der Tagore-Promenade und den Stränden entfernt.
Das dreigeschossige Anwesen (Grundstücksgröße: 1.187 NM) bietet modernes Wohnen und erstklassige Freizeitmöglichkeiten: 6 Gästezimmer mit Klimaanlage, 2 beheizte Pools mit automatischer Abdeckung & 360 NM Sonnenterrasse, Großzügiger Garten mit Pavillon, Grillbereich und Außendusche, 8 Stellplätze + Garage, elektrische Tore, High-Speed-WLAN, Kamera- & Alarmsystem, Bewässerungsanlage, eigener Brunnen, Ideal als Luxusresidenz oder als ertragreiches Gästehaus mit stabiler Nachfrage.
Balatonfüred, die gefragteste Stadt am Plattensee, steht für Sicherheit, Wertbeständigkeit und einzigartigen Lebensstil.
Balatonfüred egyik legkedveltebb részén, a strandok és a Tagore-sétány közvetlen közelében kínáljuk megvételre ezt a kiváló adottságokkal rendelkező, 1995-ben épült ingatlant, amely egyszerre biztosít kényelmes otthont és komoly befektetési potenciált.
A 1187 nm-es, összközműves telken elhelyezkedő, szuterén + földszint + tetőtér kialakítású épület masszív tégla falazattal, vasbeton födémmel és szigetelt homlokzattal készült. Az ingatlan két utcára nyitott, elektromos kapuval ellátott bejáratokkal, valamint 8 gépkocsi számára felszíni parkolóhelyet és garázst biztosít.
A TETŐTÉRBEN kialakított 6 vendégszoba jelenleg szálláshelyként funkcionál, így az ingatlan nemcsak családi rezidenciaként, hanem jövedelmező vendégházként is kiválóan hasznosítható. Főbb műszaki és kényelmi felszereltség: központi gázcirkós fűtés puffertartállyal, radiátoros hőleadással, korszerű levegő hőszivattyús hűtő/fűtő rendszerek a lakóegységekben, két fűtött medence elektromos vezérlésű fedéssel és közel 360 nm épített, díszburkolattal ellátott napozóterasz - hideg/melegvizes kültéri zuhanyzók a medencék mellett, tágas szaletli villanybojlerrel, mosogatóval, hűtő-fűtő klímák, nagy teljesítményű wifi és Vodafone kábeltévé, riasztó- és kamerarendszer, kültéri világítás mozgásérzékelővel, öntözőrendszer, ivóvíz minőségű fúrt kút nagynyomású szivattyúval, hangulatos cserépkályha. Földszinti elrendezés és funkciók: különálló, 2 szobás apartman konyhával, étkezővel, fürdőszobával, közvetlen teraszkapcsolattal a medencékhez és tágas, kb. 30 fő befogadására alkalmas étkező, teljesen felszerelt konyhával, kazánház a fűtés és melegvíz ellátás számára, vasalószoba és raktárhelyiségek.
Az ingatlan belső tereit kerámialap, parketta és laminált burkolatok teszik változatossá, a műanyag nyílászárók redőnnyel felszereltek. Az esztétikai és műszaki állapot kiváló, az alaprajzi elrendezés átgondolt és jól hasznosítható.
Ez a balatoni villa ideális választás mindazok számára, akik egy elegáns, tágas otthont keresnek, vagy szálláshely-üzemeltetésben, turisztikai befektetésben gondolkodnak.
Exclusive Villa with Guesthouse in Balatonfüred. Two Heated Pools & Prime Location.
An exceptional investment opportunity in the heart of Balatonfüred, just a short walk from the Tagore Promenade and the beach.
This 3-level villa (built on a 1,187 NM plot) combines modern comfort with premium leisure facilities: 6 guest rooms with air conditioning, 2 heated pools with automatic covers & a 360 NM sun terrace, Spacious garden with pavilion, BBQ area and outdoor shower, 8 parking spaces + garage, secured with electric gates. High-speed WiFi, CCTV & alarm system, irrigation system, private well. Perfect both as a luxury residence and as a profitable guesthouse with existing demand.
Balatonfüred, the most sought-after town on Lake Balaton, offers outstanding investment security and a unique lifestyle.
Exklusive Villa mit Gästehaus in Balatonfüred. Zwei beheizte Pools in Top-Lage
Eine außergewöhnliche Immobilie im Herzen von Balatonfüred, nur wenige Gehminuten von der Tagore-Promenade und den Stränden entfernt.
Das dreigeschossige Anwesen (Grundstücksgröße: 1.187 NM) bietet modernes Wohnen und erstklassige Freizeitmöglichkeiten: 6 Gästezimmer mit Klimaanlage, 2 beheizte Pools mit automatischer Abdeckung & 360 NM Sonnenterrasse, Großzügiger Garten mit Pavillon, Grillbereich und Außendusche, 8 Stellplätze + Garage, elektrische Tore, High-Speed-WLAN, Kamera- & Alarmsystem, Bewässerungsanlage, eigener Brunnen, Ideal als Luxusresidenz oder als ertragreiches Gästehaus mit stabiler Nachfrage.
Balatonfüred, die gefragteste Stadt am Plattensee, steht für Sicherheit, Wertbeständigkeit und einzigartigen Lebensstil.