Eladó Ház- házrész
Hirdetéskód: 9212584
OTP Ingatlanpont - Takács Zsuzsanna
166 m2
ALAPTERÜLET6
SZOBASZÁMnincs megadva
ÉPÍTÉSnincs megadva
FŰTÉS- CSOK igénybe vehető nem
- Tetőtér beépíthető nem
- Építés éve 1970
- Klíma nem
- Szigetelt nem
A+++
A++
A+
A
B
C
D
E
F
G
H
I
Az ingatlan leírása
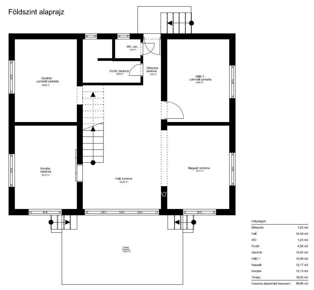
Balatonföldvár központjában kiváló állapotú, igényesen átalakított, műszakilag teljesen felújított, minden igényt kielégítő családi ház eladó. A sík, összközműves telek mérete 899 nm. A szabadtéri időtöltéshez nagy füves terület áll rendelkezésre, de a hamisciprus sövény segít megőrizni a kert privát szféráját. A ház kétszintes, tetőtér beépítéssel. A földszinten található a gépesített étkezős konyha, mely tavaly teljes körű felújításon esett át, továbbá a nappali, 2 hálószoba (ezek közül az egyik jelenleg gardróbként funkcionál), WC és zuhanyozós fürdőszoba. A konyha és a nappali közötti közösségi tér faltól falig erkélyajtóval kapcsolódik a tágas, fedett teraszhoz. A beépített tetőtérben található további 4 hálószoba erkélykapcsolattal, zuhanyozós fürdő és külön WC. A ház összes hasznos alapterülete 142 nm. A ház mögött, önálló felépítményben kapott helyet a garázs/tároló és a gépészeti helyiség kazánnal, melegvíz tartállyal, és egy komplett zuhanyozós fürdőszobával. A ház használati meleg víz ellátása, és a földszint radiátoros fűtése kazánról történik, a tetőtér kellemes hőmérsékletéről minden szobában hűtő-fűtő mono split klíma gondoskodik. A telek hátsó részében egy további fedett terasz, étkező, tároló áll rendelkezésre. 2016-ban a ház teljes felújítása során háromrétegű üvegezésű, hőszigetelt műanyag nyílászárók kerültek beépítésre, a földszinten elektromos redőnyökkel és szúnyoghálóval ellátva. A külső párkányok fekete gránitból készültek. A homlokzat 15 cm hőszigetelést kapott. A kert locsolását öntözőrendszer biztosítja. Minden helyiségben igényes, minőségi anyagok kerültek felhasználásra, a ház kifogástalan állapotú, azonnal költözhető. Kiváló választás - akár nagyobb családoknak - állandó lakóhelyként vagy nyaralóként egyaránt. A földvári Keleti Strand 650 m-re található, a szántódi ALDI, Rossmann, Spar, dm és további üzletek 1 km-en belül. Keressen bizalommal, és tekintse meg ezt a nagyszerű családi házat!
Az OTP Ingatlanpont, mint egyetlen közvetlen banki hátterű ingatlanközvetítő társaság teljes körű ügyintézéssel áll az eladók és a vevők rendelkezésére! A kínálatunkból választott ingatlan finanszírozásához minősített fogyasztóbarát, piaci és kedvezményes hitel- és lízingkonstrukciókat kínálunk (lakásvásárlási hitel, CSOK plusz, szabad felhasználású hitel, babaváró hitel, céges hitelek, pályázatok). Az adásvételi szerződés megkötéséhez igény szerint megbízható ügyvédi közreműködést biztosítunk, és segítséget nyújtunk az adásvételhez kapcsolódó egyéb ügyek intézéséhez. Ha az új ingatlana megvásárlásához a jelenlegi ingatlanát el kell adnia, abban is szívesen segítünk.
Az OTP Ingatlanpont, mint egyetlen közvetlen banki hátterű ingatlanközvetítő társaság teljes körű ügyintézéssel áll az eladók és a vevők rendelkezésére! A kínálatunkból választott ingatlan finanszírozásához minősített fogyasztóbarát, piaci és kedvezményes hitel- és lízingkonstrukciókat kínálunk (lakásvásárlási hitel, CSOK plusz, szabad felhasználású hitel, babaváró hitel, céges hitelek, pályázatok). Az adásvételi szerződés megkötéséhez igény szerint megbízható ügyvédi közreműködést biztosítunk, és segítséget nyújtunk az adásvételhez kapcsolódó egyéb ügyek intézéséhez. Ha az új ingatlana megvásárlásához a jelenlegi ingatlanát el kell adnia, abban is szívesen segítünk.