Eladó Ház- házrész
Hirdetéskód: 9289374

-

Felújításhoz személyi kölcsönt keres? Kalkuláljon itt! →
FIX 3% Program

Ez a hirdetés megfelelhet a FIX 3%-os programnak.
Tudj meg többet a részletekről itt.

65.00 m2
ALAPTERÜLET
3
SZOBASZÁM
Tégla
ÉPÍTÉS
Elektromos
FŰTÉS
  • CSOK igénybe vehető igen
  • Belső szintek 2
  • Kilátás Udvari
  • Tájolás Dél
  • Ingatlan komfort Összkomfortos
  • Parkolási lehetőség Udvari beálló
  • Építés éve 2021
  • Fűtés Elektromos
  • Építőanyag Tégla
  • Erkély, terasz Erkély 6.00m2
  • Klíma igen
  • Szigetelt igen
  • Bútorozott igen
  • Akadálymentesített nem
  • Víz telken belül
  • Csatorna nincs
  • Gáz nincs
  • Villany telken belül
Energetikai besorolás: Nincs meghatározva
A+++
A++
A+
A
B
C
D
E
F
G
H
I

Az MBH Bank személyi kölcsön ajánlata

Fizetett hirdetés
1 millió Ft
6 évre
20 585 Ft/hó
THM: 14.5%
Részletek →
2 millió Ft
6 évre
41 169 Ft/hó
THM: 14.5%
Részletek →
3 millió Ft
6 évre
61 754 Ft/hó
THM: 14.5%
Részletek →

A tájékoztatás nem teljes körű és nem minősül ajánlattételnek.

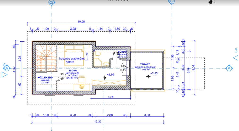
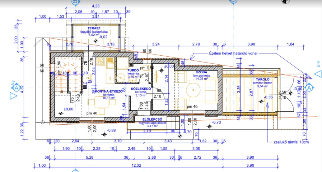
Az ingatlan leírása

Többféle pénztermelő tevékenység céljára hasznosítható ingatlant kínálok megvételre Alsóörsön. Mivel forgalmas út mellett fekszik, üzleti hasznosításra a legalkalmasabb. Lehet itt kertészet, gazdabolt, szépészeti szolgáltatások: fodrászat, műköröm, kozmetika, masszázs, természetgyógyászati rendelő, de bármilyen magánorvosi rendelőnek, irodának (ügyvédi, ingatlanközvetőtő, könyelő, építész, stb.) is alkalmas. Emellett parkosítás után használható szobakiadásra is, hiszen 4-6 fő kényelmesen elhelyezhető a házban. Az épület teljesen új. Főbb szerkezeti adatok: vasbeton sávalap, 30 cm Porotherm külső téglafalak, rajtuk 10 cm vastag Nikecell hőszigetelés, vasbetongerendás födém, ácsolt vörösfenyő nyeregtető, rajta cserép fedés, műanyag hőszigetelt nyílászárók, belül fa ajtók. Fűtése 2 db klímával és padlóban elhelyezett infrafűtéssel lehetséges, a meleg vizet villanybojler szolgáltatja. Összes hasznos alapterülete 65 m2. A földszinten előtér, szoba, konyha-étkező, WC, fürdőszoba és terasz található. A tetőtér egy légterű, csupán a fürdőszoba került leválasztásra. Itt is található egy nagyméretű délkeleti tájolású erkély. A közművek közül víz, villany (2x32 A) került bekötésre, a szennyvíz egyedi emésztőbe ürül. A kert 750 m2, gépkocsival két kapun is bejárható, ezért az ügyfelek folyamatos ki-be közlekedése könnyen megoldható. Olyan tevékenység is végezhető az ingatlanon, mely kerti kipakolást, tárolást igényel. További információkért, megtekintés miatt kérem, keresse Magasmarti Anikót a Csudijó-Stúdió Kft-nél.

Térkép

A hirdető elérhetősége

Csudijó Ingatlan

+36 70 380