Eladó Ház- házrész
Hirdetéskód: 9222129
Fővállalkozó Balla és Balla Kft
Ez a hirdetés megfelelhet a FIX 3%-os programnak.
Tudj meg többet a részletekről itt.
81.00 m2
ALAPTERÜLET3
SZOBASZÁMnincs megadva
ÉPÍTÉSnincs megadva
FŰTÉS- CSOK igénybe vehető nem
- Tetőtér beépíthető nem
- Építés éve 2026
- Klíma nem
- Szigetelt nem
A+++
A++
A+
A
B
C
D
E
F
G
H
I
Az ingatlan leírása
Zöldövezeti nyugalom, belvárosi kényelem: Kulcsrakész új építésű otthon alacsony rezsivel!
Eladásra kínálunk egy minden igényt kielégítő, A+ energetikai besorolású, kulcsrakész állapotban átadásra kerülő ingatlant, amely kiváló közlekedés mellett, mégis csendes zöldövezetben épül. Az ingatlanhoz saját, lekerített kert és külön bejárat tartozik, biztosítva a teljes intimitást.
! -LEFOGLALHATÓ:
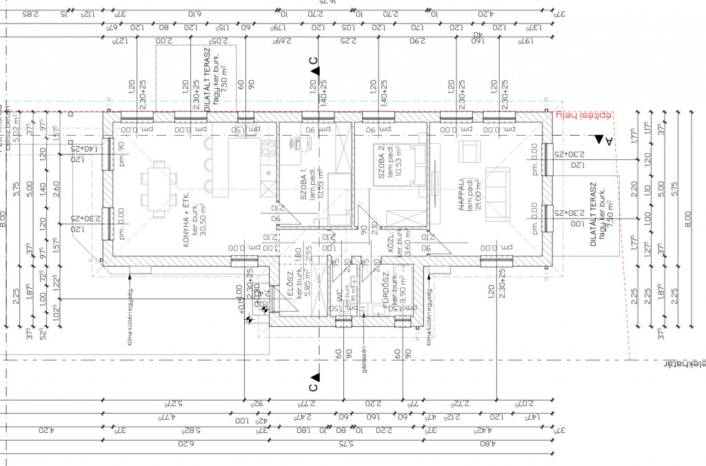
- "A" ikerházrész: 81 m2, ár: 79.900.000 Ft
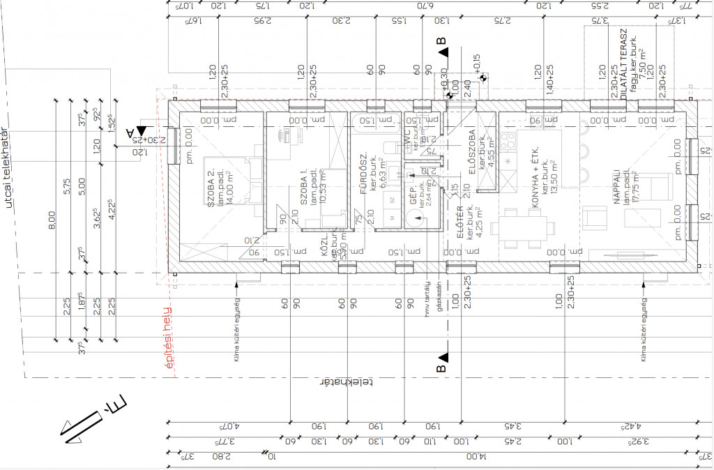
- "B" ikerházrész: 88 m2, ár: 85.900.000 Ft
HELYSZÍN ÉS KÖRNYEZET:
Az ingatlan kertvárosi zöldövezetben található, mégis közel a központhoz. Minden fontos intézmény és szolgáltatás karnyújtásnyira: iskola, óvoda, posta, vasútállomás és Tesco gyorsan elérhető. Ideális választás családoknak és ingázóknak egyaránt.
PRÉMIUM MŰSZAKI TARTALOM :
A ház Viablokk pórusbetonból épül, amely kiváló hő- és hangszigetelő, valamint tűzgátló tulajdonságokkal rendelkezik. A kiemelkedő energiahatékonyságot a 25 cm-es födémszigetelés és a korszerű gépészet garantálja.
Fűtés/Hűtés: Kombi kondenzációs gázkazán padlófűtéssel, rádiós termosztáttal, kiegészítve inverteres klímával és kedvezményes H-tarifás mérővel.
Nyílászárók: 3 rétegű, 7 légkamrás ablakok beépített szúnyoghálóval és redőnnyel. Üveges, biztonsági záras bejárati ajtó.
Tetőszerkezet: Terrán antracit tetőrendszer, színazonos szinterezett alumínium csatornával.
DIZÁJN ÉS KÉNYELEM:
Az ingatlan modern, letisztult megjelenést kap, antracit kiegészítőkkel.
- Külső: 3D antracit kerítésrendszer az utcafronton, elektromos kapuval, tereprendezett kerttel.
- Belső: LED világításrendszer kiépítése a házon belül és kívül. Schneider kapcsolók és konnektorok egyéni igény szerinti elhelyezéssel.
EGYÉNILEG VÁLASZTHATÓ BURKOLATOK ÉS SZANITEREK:
Alakítsa saját ízlésére új otthonát! A vételár tartalmazza a választható anyagokat az alábbi nagyvonalú keretösszegekig:
- Hideg- és melegburkolatok, parketta: 75.000 Ft/m²-ig választható.
- Dekor beltéri nyílászárók: 80.000 Ft/db értékig.
- Szaniterek: 380.000 Ft összértékben.
KERT ÉS UDVAR:
Minden lakáshoz önálló, privát kert tartozik, ahol tetszés szerint kialakítható garázs vagy kerti sütögető. Az udvar körbekerítve, kertrendezéssel kerül átadásra.
ÁTADÁS ÉS RÉSZLETEK:
Állapot: Kulcsrakész, összközműves.
Várható átadás: 2026. nyár vége.
Rezsi: Rendkívül alacsony fenntartási költség a kiváló szigetelésnek és gépészetnek köszönhetően.
Eladásra kínálunk egy minden igényt kielégítő, A+ energetikai besorolású, kulcsrakész állapotban átadásra kerülő ingatlant, amely kiváló közlekedés mellett, mégis csendes zöldövezetben épül. Az ingatlanhoz saját, lekerített kert és külön bejárat tartozik, biztosítva a teljes intimitást.
! -LEFOGLALHATÓ:
- "A" ikerházrész: 81 m2, ár: 79.900.000 Ft
- "B" ikerházrész: 88 m2, ár: 85.900.000 Ft
HELYSZÍN ÉS KÖRNYEZET:
Az ingatlan kertvárosi zöldövezetben található, mégis közel a központhoz. Minden fontos intézmény és szolgáltatás karnyújtásnyira: iskola, óvoda, posta, vasútállomás és Tesco gyorsan elérhető. Ideális választás családoknak és ingázóknak egyaránt.
PRÉMIUM MŰSZAKI TARTALOM :
A ház Viablokk pórusbetonból épül, amely kiváló hő- és hangszigetelő, valamint tűzgátló tulajdonságokkal rendelkezik. A kiemelkedő energiahatékonyságot a 25 cm-es födémszigetelés és a korszerű gépészet garantálja.
Fűtés/Hűtés: Kombi kondenzációs gázkazán padlófűtéssel, rádiós termosztáttal, kiegészítve inverteres klímával és kedvezményes H-tarifás mérővel.
Nyílászárók: 3 rétegű, 7 légkamrás ablakok beépített szúnyoghálóval és redőnnyel. Üveges, biztonsági záras bejárati ajtó.
Tetőszerkezet: Terrán antracit tetőrendszer, színazonos szinterezett alumínium csatornával.
DIZÁJN ÉS KÉNYELEM:
Az ingatlan modern, letisztult megjelenést kap, antracit kiegészítőkkel.
- Külső: 3D antracit kerítésrendszer az utcafronton, elektromos kapuval, tereprendezett kerttel.
- Belső: LED világításrendszer kiépítése a házon belül és kívül. Schneider kapcsolók és konnektorok egyéni igény szerinti elhelyezéssel.
EGYÉNILEG VÁLASZTHATÓ BURKOLATOK ÉS SZANITEREK:
Alakítsa saját ízlésére új otthonát! A vételár tartalmazza a választható anyagokat az alábbi nagyvonalú keretösszegekig:
- Hideg- és melegburkolatok, parketta: 75.000 Ft/m²-ig választható.
- Dekor beltéri nyílászárók: 80.000 Ft/db értékig.
- Szaniterek: 380.000 Ft összértékben.
KERT ÉS UDVAR:
Minden lakáshoz önálló, privát kert tartozik, ahol tetszés szerint kialakítható garázs vagy kerti sütögető. Az udvar körbekerítve, kertrendezéssel kerül átadásra.
ÁTADÁS ÉS RÉSZLETEK:
Állapot: Kulcsrakész, összközműves.
Várható átadás: 2026. nyár vége.
Rezsi: Rendkívül alacsony fenntartási költség a kiváló szigetelésnek és gépészetnek köszönhetően.