Eladó Ház- házrész
Hirdetéskód: 9192813
GDN Ingatlanhálózat - Nádor
Felújításhoz személyi kölcsönt keres? Kalkuláljon itt! →
Ez a hirdetés megfelelhet a FIX 3%-os programnak.
Tudj meg többet a részletekről itt.
124.00 m2
ALAPTERÜLET5
SZOBASZÁMnincs megadva
ÉPÍTÉSnincs megadva
FŰTÉS- CSOK igénybe vehető nem
- Tetőtér beépíthető nem
- Klíma nem
- Szigetelt nem
A+++
A++
A+
A
B
C
D
E
F
G
H
I
Az ingatlan leírása
ELADÓ ALBERTIRSÁN, egy KÖZPONTI, ÖSSZKÖZMŰVES, ASZFALTOZOTT UTCÁBAN ÚJ ÉPÍTÉSŰ, FÖLDSZINTES, AKADÁLYMENTES, AZONNAL BEKÖLTÖZHETŐ családi ház (kétlakásos társasház) SAJÁT KERTTEL, KÜLÖN BEJÁRATTAL. KÉT GENERÁCIÓNAK IS ALKALMAS, KIEMELKEDŐ MŰSZAKI TARTALOMMAL + H tarifával.
1. lakás GARÁZS épülettel
- Elrendezés: 4 hálószoba + nappali + 2 fürdő + kamra + háztartási helyiség
- Lakótér: 127 m2
- Terasz: 22 m2, 600m2-es SAJÁT KERT
- Külön épület: 37 m2, KÉTÁLLÁSOS GARÁZS
- Teljes hasznos nettó terület: 175 m2 (127 + 37 + 11)
- Ár: 118 M Ft
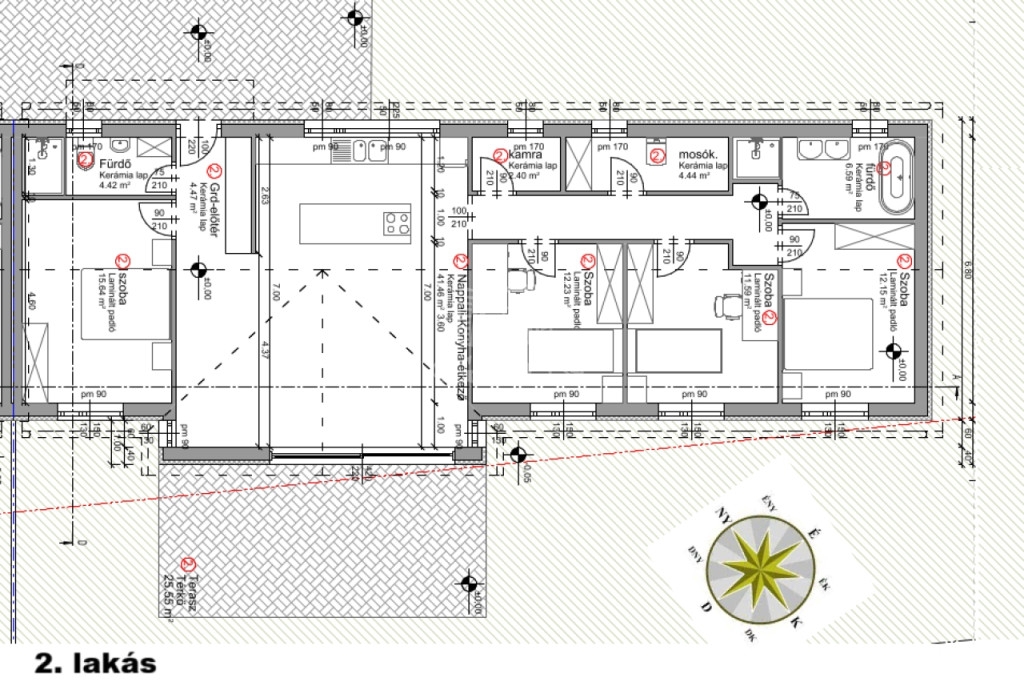
2. lakás
- Elrendezés: 4 hálószoba + nappali + 2 fürdő + kamra + háztartási helyiség
- Lakótér: 124 m2
- Terasz: 26 m2, 730m2-es SAJÁT KERT
- Teljes hasznos nettó terület: 137 m2 (124 + 13)
- Ár: 98 M Ft
Szerkezet és hőszigetelés:
- Főfal: Leier 30 NF tégla
- Válaszfalak: Leier 20 S és 10 tégla
- Padló alatti szigetelés: EPS 100 (10 cm)
- Külső nyílászárók: fehér műanyag, 3 rétegű üvegezéssel
- Födémszigetelés: 30 cm ásványgyapot
- Fa tetőszerkezet, tetőhéjazat: Bramac betoncserép
- Homlokzati szigetelés: 10 cm EPS
- Lábazati szigetelés: 5 cm + barna szemcsés díszvakolat
Gépészet és komfort:
VILLANYSZERELÉS: 3x16 A +1x25A H tarifás kiépítéssel.
- Hőszivattyú: japán Fujitsu High Power fűtésre és melegvíz-ellátásra
- Hidegburkolatos helyiségekben PADLÓFŰTÉS
- Szobákban és nappaliban digitális vezérlésű, HŰTŐ-FŰTŐ Galletti Flat FANCOILOK
- Fürdőszobánként 1 db törölközőszárító fali radiátor
Vízszerelés:
- 2 db fürdőszoba: fürdőnként törölközőszárítós RADIÁTOR; RAVAK ROSA II akril SAROKKÁD + zuhanyzó; GEBERIT WC falsík mögötti tartály nyomólappal.
A másik fürdőben zuhanyzó, + GEBERIT WC.
Elhelyezkedés és megközelítés
- ÖNÁLLÓ MEGKÖZELÍTHETŐSÉG, SAJÁT MÉRŐÓRÁK
- Vasútállomás: 15 perc séta / 2 perc autó
- Óvoda: ~900 m, bevásárlás: ~1 km
- Budapest: ~35 km
Praktikus, MINDENKI számára jól használható terek, korszerű gépészet és igényes szerkezet – MEGBÍZHATÓ, ÉRTÉKÁLLÓ választás.
Amennyiben felkeltette a meghirdetett ingatlan az érdeklődését, keressen bizalommal.
Kihagyhatatlan ajánlatok: CSOK+, kedvezményes kamatozású lakáshitelek.
Az ország szinte összes bankjának a hiteleit is kínáljuk, egyedi, általunk igénybe vehető kedvezményekkel, díjmentes ügyintézéssel. ...TOVÁBBI, TÖBBEZRES INGATLAN KÍNÁLAT: - GDN azonosító: 388701
1. lakás GARÁZS épülettel
- Elrendezés: 4 hálószoba + nappali + 2 fürdő + kamra + háztartási helyiség
- Lakótér: 127 m2
- Terasz: 22 m2, 600m2-es SAJÁT KERT
- Külön épület: 37 m2, KÉTÁLLÁSOS GARÁZS
- Teljes hasznos nettó terület: 175 m2 (127 + 37 + 11)
- Ár: 118 M Ft
2. lakás
- Elrendezés: 4 hálószoba + nappali + 2 fürdő + kamra + háztartási helyiség
- Lakótér: 124 m2
- Terasz: 26 m2, 730m2-es SAJÁT KERT
- Teljes hasznos nettó terület: 137 m2 (124 + 13)
- Ár: 98 M Ft
Szerkezet és hőszigetelés:
- Főfal: Leier 30 NF tégla
- Válaszfalak: Leier 20 S és 10 tégla
- Padló alatti szigetelés: EPS 100 (10 cm)
- Külső nyílászárók: fehér műanyag, 3 rétegű üvegezéssel
- Födémszigetelés: 30 cm ásványgyapot
- Fa tetőszerkezet, tetőhéjazat: Bramac betoncserép
- Homlokzati szigetelés: 10 cm EPS
- Lábazati szigetelés: 5 cm + barna szemcsés díszvakolat
Gépészet és komfort:
VILLANYSZERELÉS: 3x16 A +1x25A H tarifás kiépítéssel.
- Hőszivattyú: japán Fujitsu High Power fűtésre és melegvíz-ellátásra
- Hidegburkolatos helyiségekben PADLÓFŰTÉS
- Szobákban és nappaliban digitális vezérlésű, HŰTŐ-FŰTŐ Galletti Flat FANCOILOK
- Fürdőszobánként 1 db törölközőszárító fali radiátor
Vízszerelés:
- 2 db fürdőszoba: fürdőnként törölközőszárítós RADIÁTOR; RAVAK ROSA II akril SAROKKÁD + zuhanyzó; GEBERIT WC falsík mögötti tartály nyomólappal.
A másik fürdőben zuhanyzó, + GEBERIT WC.
Elhelyezkedés és megközelítés
- ÖNÁLLÓ MEGKÖZELÍTHETŐSÉG, SAJÁT MÉRŐÓRÁK
- Vasútállomás: 15 perc séta / 2 perc autó
- Óvoda: ~900 m, bevásárlás: ~1 km
- Budapest: ~35 km
Praktikus, MINDENKI számára jól használható terek, korszerű gépészet és igényes szerkezet – MEGBÍZHATÓ, ÉRTÉKÁLLÓ választás.
Amennyiben felkeltette a meghirdetett ingatlan az érdeklődését, keressen bizalommal.
Kihagyhatatlan ajánlatok: CSOK+, kedvezményes kamatozású lakáshitelek.
Az ország szinte összes bankjának a hiteleit is kínáljuk, egyedi, általunk igénybe vehető kedvezményekkel, díjmentes ügyintézéssel. ...TOVÁBBI, TÖBBEZRES INGATLAN KÍNÁLAT: - GDN azonosító: 388701