Eladó Ház- házrész
Hirdetéskód: 9306630

-

Felújításhoz személyi kölcsönt keres? Kalkuláljon itt! →
FIX 3% Program

Ez a hirdetés megfelelhet a FIX 3%-os programnak.
Tudj meg többet a részletekről itt.

130.00 m2
ALAPTERÜLET
3
SZOBASZÁM
Tégla
ÉPÍTÉS
Hőszivattyú
FŰTÉS
  • CSOK igénybe vehető igen
  • Belső szintek 1
  • Tetőtér beépíthető nem
  • Tájolás Kelet
  • Ingatlan komfort Duplakomfortos
  • Parkolási lehetőség Önálló garázs
  • Építés éve 2027
  • Fűtés Hőszivattyú
  • Építőanyag Tégla
  • Erkély, terasz Terasz
  • Klíma igen
  • Szigetelt igen
  • Bútorozott nem
  • Víz telken belül
  • Csatorna telken belül
  • Gáz telken belül
  • Villany telken belül

Energetikai besorolás: A+

A+++
A++
A+
A
B
C
D
E
F
G
H
I

Az MBH Bank személyi kölcsön ajánlata

Fizetett hirdetés
1 millió Ft
6 évre
20 585 Ft/hó
THM: 14.5%
Részletek →
2 millió Ft
6 évre
41 169 Ft/hó
THM: 14.5%
Részletek →
3 millió Ft
6 évre
61 754 Ft/hó
THM: 14.5%
Részletek →

A tájékoztatás nem teljes körű és nem minősül ajánlattételnek.

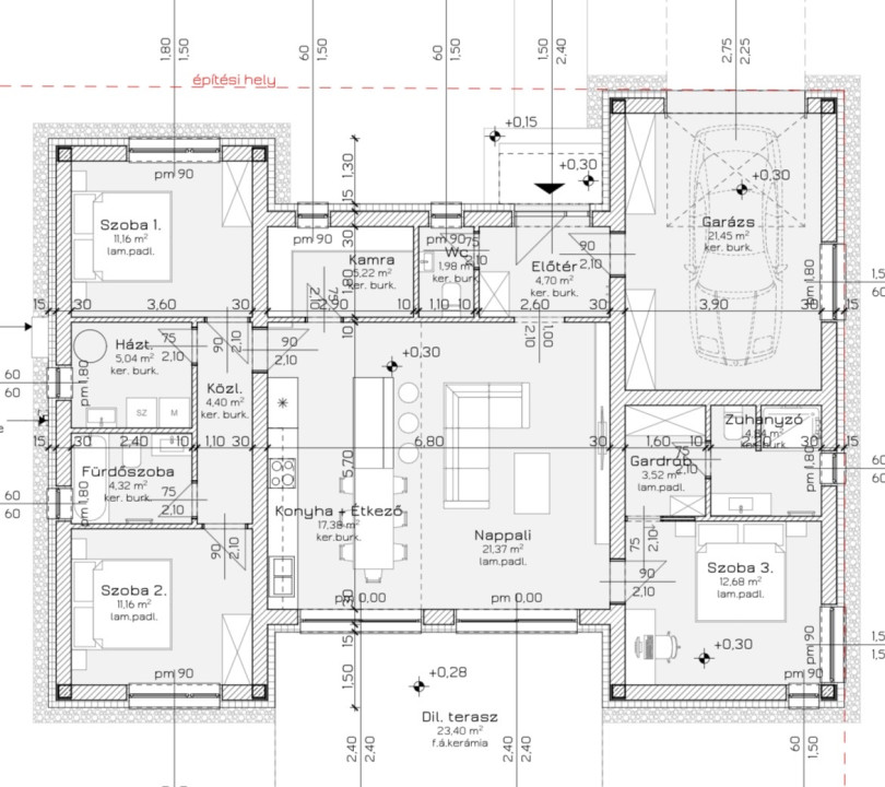
Az ingatlan leírása

Albertirsán kínálunk megvételre egy kivételes minőségben épülő, modern családi otthont, amely a letisztult design és a korszerű műszaki megoldások tökéletes harmóniáját képviseli.

A nettó 129,22 m²-es lakótér minden részletében a kényelmet és az élhető, tágas tereket szolgálja. A nappali–konyha–étkező egysége a ház központi élettere, ahol a természetes fény és az átgondolt térszervezés különleges atmoszférát teremt. A három külön nyíló szoba ideális privát teret biztosít a család minden tagja számára, míg a gardrób, kamra és háztartási helyiség a praktikumot emeli magasabb szintre.

Az ingatlan kialakítása során kiemelt figyelmet fordítottak az energiahatékonyságra és a hosszú távú fenntarthatóságra. A korszerű hőszivattyús rendszer padlófűtéssel gondoskodik az egyenletes hőérzetről, amelyet egy 3,5 kW-os hűtő-fűtő klíma egészít ki, biztosítva az ideális komfortot minden évszakban.
Az ingatlanhoz tartozó telek 525m2, amely központi elhelyezkedésű.

A minőségi anyaghasználat már az első pillanatban érezhető: a 30 cm-es tégla falazat és a vastag hőszigetelés kiváló hőtartást garantál, míg a háromrétegű, antracit színű nyílászárók modern megjelenést és kimagasló hang- és hőszigetelést biztosítanak. A homlokzat elegáns megjelenését gördülőszemcsés vakolat és dekor kőburkolat teszi teljessé.

A belső terek személyre szabhatók: a burkolatok és a beltéri ajtók többféle színben választhatók, a falak pedig pasztell árnyalatokban alakíthatók az új tulajdonos ízléséhez igazodva.

A garázs kényelmes parkolást biztosít, míg az átgondolt alaprajz a mindennapi élet minden igényére választ ad.

Várható átadás: 2027.második negyedév.

Ez az ingatlan ideális választás azok számára, akik nem szeretnének kompromisszumot kötni a minőség, a modern technológia és az esztétikum terén.

A beruházás mögött egy megbízható, tapasztalt kivitelező áll, akivel irodánk már több mint egy évtizede dolgozik együtt. A számos sikeresen megvalósított projekt és elégedett ügyfél garanciát jelent a magas minőségre, a precíz kivitelezésre és a határidők betartására.

Irodánk teljes körű ügyintézéssel és bankfüggetlen pénzügyi tanácsadással áll rendelkezésére.

Amennyiben egy igazán különleges otthont keres, ne hagyja ki ezt a lehetőséget – keressen bizalommal!

Térkép

Ingatlan adásvétel ügyvédi díja
504 000 Ft
a hirdetésben szereplő ár alapján
  • A vételár 0,45%-a
  • Szerződéscsomag teljeskörű képviselettel
  • Ingyenes tulajdoni lap ellenőrzés
  • Az ÁFA-t már tartalmazza
Érdekel az ajánlat →
A tájékoztatás nem teljes körű és nem minősül ajánlattételnek. Minimum díj: 150 000 Ft, maximum díj: 600 000 Ft. A díj kizárólag lakóingatlan adásvételére vonatkozik.

A hirdető elérhetősége

Fedél Ingatlaniroda

+36 20 478