Eladó Ház- házrész
Hirdetéskód: 9325435
Duna House - Új-Lak Bázis Kft.
Felújításhoz személyi kölcsönt keres? Kalkuláljon itt! →
Ez a hirdetés megfelelhet a FIX 3%-os programnak.
Tudj meg többet a részletekről itt.
91.00 m2
ALAPTERÜLET5
SZOBASZÁMnincs megadva
ÉPÍTÉSGáz (cirkó)
FŰTÉS- CSOK igénybe vehető nem
- Tetőtér beépíthető nem
- Építés éve 2021
- Fűtés Gáz (cirkó)
- Klíma nem
- Szigetelt nem
A+++
A++
A+
A
B
C
D
E
F
G
H
I
Az ingatlan leírása
ELADÓ ÚJSZERŰ 4 SZOBÁS ÖNÁLLÓ CSALÁDI HÁZ ALBERTIRSÁN!
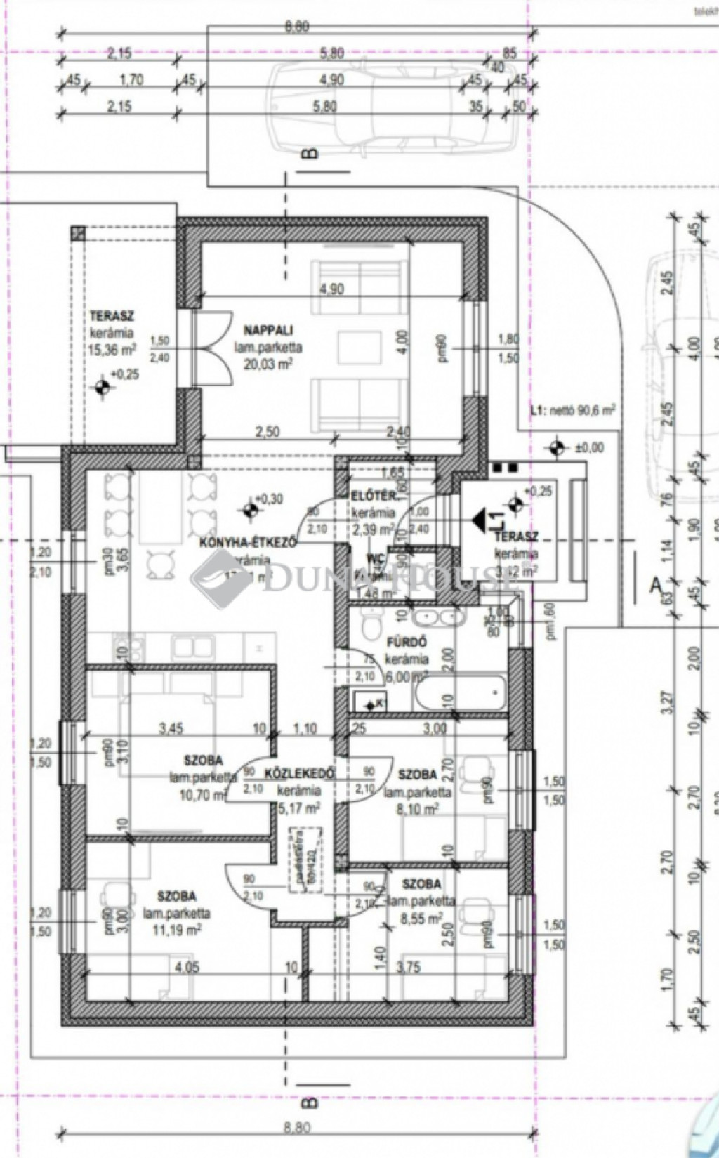
Eladásra kínálunk Albertirsán egy 91 m2 hasznos alapterületű önálló családi házat 528 m2-es telken.
Helyiségeket tekintve kialakításra került 4 darab hálószoba, amerikai-konyhás nappali, fürdő WC-vel és egy külön WC, előtér.
A hasznos alapterületen kívül egy részben fedett 15 m2-es terasz és egy 3,4 m2-es szélfogó került kialakításra.
Műszaki leírás:
Az épület beton alapra, téglából, fa födém és tetőszerkezettel, betoncseréppel épült.
12 cm lábazatai, 15 cm homlokzati, 30 cm födémszigetelés.
6 légkamrás 3 üveges fehér műanyag nyílászárók.
Fűtését és melegvíz ellátását kondenzációs gázkazán látja el.
A hőleadók radiátorok, a fürdőszobában törölközőszárító, ezen kívül felszerelésre került egy hűtő-fűtő klíma is.
A kedvezőbb energiahatékonyság érdekében, napelemrendszer került kiépítésre.
Az udvar 528 m2, önálló, rendezett, körbekerített.
Parkosítása jelenleg is zajlik, locsolórendszer kerül kiépítésre és a gyepszőnyeg telepítése is elkezdődött.
A telek alkalmas több autó parkolására és egy lemezből, beton alapra készült tárolóhelyiség is rendelkezésre áll.
ÖRÖMMEL ÁLLOK RENDELKEZÉSÉRE A DUNA HOUSE KÍNÁLATÁBAN MEGTALÁLHATÓ ÖSSZES INGATLANNAL KAPCSOLATBAN.
HÉTVÉGÉN IS VÁROM MEGTISZTELŐ HÍVÁSÁT!
Az energetikai tanúsítvány készítése folyamatban van, amint rendelkezésre áll, úgy azzal a hirdetés frissítésre kerül.
Eladásra kínálunk Albertirsán egy 91 m2 hasznos alapterületű önálló családi házat 528 m2-es telken.
Helyiségeket tekintve kialakításra került 4 darab hálószoba, amerikai-konyhás nappali, fürdő WC-vel és egy külön WC, előtér.
A hasznos alapterületen kívül egy részben fedett 15 m2-es terasz és egy 3,4 m2-es szélfogó került kialakításra.
Műszaki leírás:
Az épület beton alapra, téglából, fa födém és tetőszerkezettel, betoncseréppel épült.
12 cm lábazatai, 15 cm homlokzati, 30 cm födémszigetelés.
6 légkamrás 3 üveges fehér műanyag nyílászárók.
Fűtését és melegvíz ellátását kondenzációs gázkazán látja el.
A hőleadók radiátorok, a fürdőszobában törölközőszárító, ezen kívül felszerelésre került egy hűtő-fűtő klíma is.
A kedvezőbb energiahatékonyság érdekében, napelemrendszer került kiépítésre.
Az udvar 528 m2, önálló, rendezett, körbekerített.
Parkosítása jelenleg is zajlik, locsolórendszer kerül kiépítésre és a gyepszőnyeg telepítése is elkezdődött.
A telek alkalmas több autó parkolására és egy lemezből, beton alapra készült tárolóhelyiség is rendelkezésre áll.
ÖRÖMMEL ÁLLOK RENDELKEZÉSÉRE A DUNA HOUSE KÍNÁLATÁBAN MEGTALÁLHATÓ ÖSSZES INGATLANNAL KAPCSOLATBAN.
HÉTVÉGÉN IS VÁROM MEGTISZTELŐ HÍVÁSÁT!
Az energetikai tanúsítvány készítése folyamatban van, amint rendelkezésre áll, úgy azzal a hirdetés frissítésre kerül.