Eladó Föld, kert, tanya
Hirdetéskód: 9240478
Dunaharaszti, Dózsa György út 45. (OTPIP)
230.00 m2
ALAPTERÜLET5
SZOBASZÁMnincs megadva
ÉPÍTÉSElektromos
FŰTÉS- CSOK igénybe vehető nem
- Tetőtér beépíthető nem
- Építés éve 2011
- Fűtés Elektromos
- Klíma nem
- Szigetelt nem
A+++
A++
A+
A
B
C
D
E
F
G
H
I
Az ingatlan leírása
ÖNÁLLÓ TANYA*****4,5 HEKTÁROS AKÁC ERDŐVEL*****3 GENERÁCIÓNAK IS *****HITELEZHETŐ!!!!
Eladásra kínálok Pest vármegyében, Budapesttől 20 percre egy 2011-ben újonnan épült tanyát 4,5 hektáros területen, 25 éves akác erdővel, családi házzal, gondnoki épülettel, lovas és állattartó épületekkel.
A Taksony - Bugyi közti főútvonalról egy kb.2 km-es erdőkkel övezett döngölt,sima földúton jutunk álmaink tanyájára. Az elvonulás szigete, távol és mégis közel, elszeparálva, mégis védetten, a szomszédos tanyák biztonságos közelségében.
A terület bekerített, külső,belső riasztókkal védett, az erdő mellett sok gyümölcsfa, nagy veteményeskert, bio gazdálkodás található,számos rendezett, tiszta óllal, fatárolóval.
Az ingatlan épületei:
1. FŐÉPÜLET
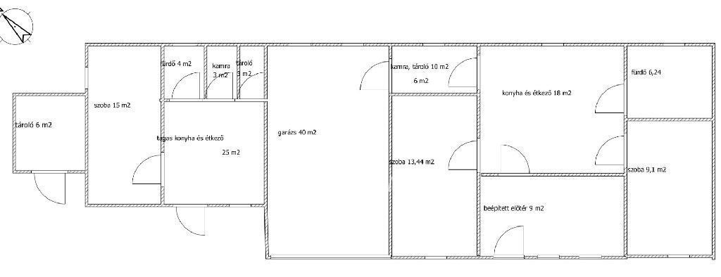
1. Lakás: 1 szoba, fürdőszoba, konyha étkezővel, tároló,kamra, padlófűtéssel.(50 m2)
2. Lakás, főépület: garázs elektromos kapuval,2 szoba, diófa konyhabútor elszívóval, elektromos indukciós tűzhellyel, sütővel, étkezővel, tároló, kádas fürdőszoba.Elektromos redőnyök, diófa ajtók, mindenhol padlófűtés.(100m2)
2 .ÉPÜLET
1.Lakás: 2 szoba, fürdőszoba, konyha étkezővel,tárolóval
2. Helyiség: tároló, hűtőszoba, saját felhasználásra állatfeldolgozó konyha rozsdamentes felszereléssel
3. Garázs: kb. 80 m2 ablakokkal,garázsajtóval
Egyéb építmények:
6 disznóól, 1 lótartásra szolgáló ól, 1 nagy tyúkól, 1 juhoknak akol fatárolók
1 villanyóra ház, szerszámtároló, gyönyörű épített Makovecz stílusú hatalmas szaletli
Gáz a telekhatáron. A fűtésről a közel 5 hektáros akácerdő gondoskodik.Ennek értéke 60-80 millió forint. Az ingatlan tehermentes, 1/1 tulajdonban.
Minden olyan, mint amilyet megálmodik az ember, ha egy igazi nagybetűs tanyára vágyik!!!! Modern, esztétikus, tiszta, rendezett, az állatok kommunikálnak, köszönnek, szaladnak a gazdi után, fantasztikus a milliő!! Elvarázsol!!!
Az OTP Bankcsoport teljeskörü hitelügyintézéssel és ügyvédi háttérrel segíti a leendő vevőt a vásárlás megkönnyítésére.
Kérdéseivel forduljon hozzám bizalommal.
Referenciaszám: M319375
Eladásra kínálok Pest vármegyében, Budapesttől 20 percre egy 2011-ben újonnan épült tanyát 4,5 hektáros területen, 25 éves akác erdővel, családi házzal, gondnoki épülettel, lovas és állattartó épületekkel.
A Taksony - Bugyi közti főútvonalról egy kb.2 km-es erdőkkel övezett döngölt,sima földúton jutunk álmaink tanyájára. Az elvonulás szigete, távol és mégis közel, elszeparálva, mégis védetten, a szomszédos tanyák biztonságos közelségében.
A terület bekerített, külső,belső riasztókkal védett, az erdő mellett sok gyümölcsfa, nagy veteményeskert, bio gazdálkodás található,számos rendezett, tiszta óllal, fatárolóval.
Az ingatlan épületei:
1. FŐÉPÜLET
1. Lakás: 1 szoba, fürdőszoba, konyha étkezővel, tároló,kamra, padlófűtéssel.(50 m2)
2. Lakás, főépület: garázs elektromos kapuval,2 szoba, diófa konyhabútor elszívóval, elektromos indukciós tűzhellyel, sütővel, étkezővel, tároló, kádas fürdőszoba.Elektromos redőnyök, diófa ajtók, mindenhol padlófűtés.(100m2)
2 .ÉPÜLET
1.Lakás: 2 szoba, fürdőszoba, konyha étkezővel,tárolóval
2. Helyiség: tároló, hűtőszoba, saját felhasználásra állatfeldolgozó konyha rozsdamentes felszereléssel
3. Garázs: kb. 80 m2 ablakokkal,garázsajtóval
Egyéb építmények:
6 disznóól, 1 lótartásra szolgáló ól, 1 nagy tyúkól, 1 juhoknak akol fatárolók
1 villanyóra ház, szerszámtároló, gyönyörű épített Makovecz stílusú hatalmas szaletli
Gáz a telekhatáron. A fűtésről a közel 5 hektáros akácerdő gondoskodik.Ennek értéke 60-80 millió forint. Az ingatlan tehermentes, 1/1 tulajdonban.
Minden olyan, mint amilyet megálmodik az ember, ha egy igazi nagybetűs tanyára vágyik!!!! Modern, esztétikus, tiszta, rendezett, az állatok kommunikálnak, köszönnek, szaladnak a gazdi után, fantasztikus a milliő!! Elvarázsol!!!
Az OTP Bankcsoport teljeskörü hitelügyintézéssel és ügyvédi háttérrel segíti a leendő vevőt a vásárlás megkönnyítésére.
Kérdéseivel forduljon hozzám bizalommal.
Referenciaszám: M319375