Eladó Lakás
Hirdetéskód: 9183425

OTP Ingatlanpont Siófok

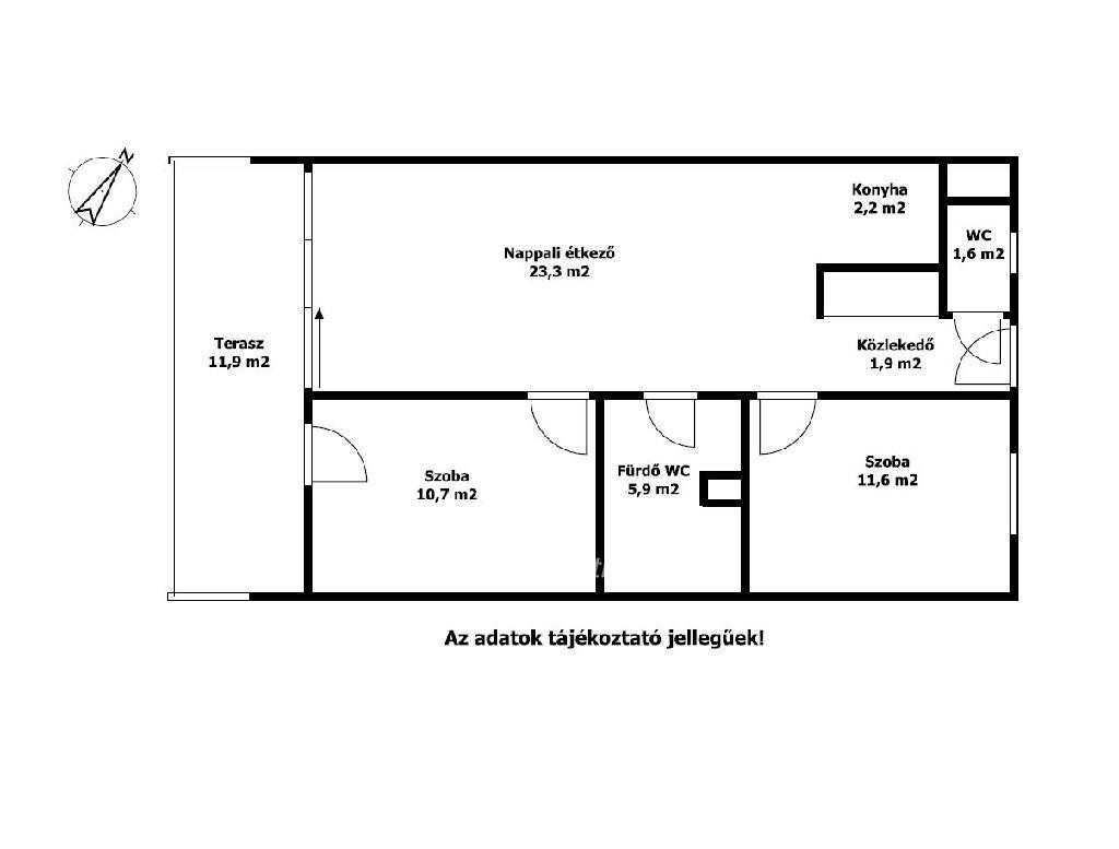
66 m2
ALAPTERÜLET
3
SZOBASZÁM
nincs megadva
ÉPÍTÉS
nincs megadva
FŰTÉS
  • CSOK igénybe vehető nem
  • Tetőtér beépíthető nem
  • Építés éve 2017
  • Klíma nem
  • Szigetelt nem
Energetikai besorolás: Nincs meghatározva
A+++
A++
A+
A
B
C
D
E
F
G
H
I

Az ingatlan leírása

Balaton déli part Siófok 66 m2 lakás eladó. A balatoni panorámás ingatlan az Ezüstparton, vízparti társasüdülő 1. emeletén helyezkedik el, nyugati tájolással. A magas minőségű belsőépítészeti megoldásokkal, teljesen felszerelt és gépesített konyhabútorral, minden bútorral, berendezéssel együtt kerül értékesítésre, melyet a vételár tartalmaz. A bekerített területen belül a lakáshoz tartozik egy felszíni parkolóhely, ennek árát is tartalmazza a vételár. Az első emeleten a lakáshoz vásárolható egy 2,7 m2-es tároló. Az emeleti lakás megközelítése lifttel biztosított. A lakótérhez és a nyugati oldali hálóhoz kapcsolódó 12 m2-es erkélyről csodálatos panoráma látható. A társasüdülő környezete parkosított, az építészeti megoldások igényes kivitelűek. A társasüdülő saját kijárattal rendelkezik a szabad strandra. A fűtés és meleg víz ellátás kondenzációs kombi gázkazánról megoldott, a lakótér klimatizált. A homlokzati nyílászárók korszerű szerkezetek, elektromos redőnyökkel kiépítve. Bővebb információért keressen telefonon!

Térkép

A hirdető elérhetősége

OTP Ingatlanpont Siófok

Katona Tamás
+36 70 442